Apartamento T3 para Venda em São Martinho
680.000 €
Tipo
Apartamento
Negócio
Venda
Ano de Construção
2025
Quartos
3
Casas de Banho
2
Área Bruta
124 m²
Área Útil
115 m²
Condição
Novo
Certificado Energético
Isento
Apartamento T3 à Venda – Conforto e Qualidade em Cada Detalhe
Apresentamos este magnífico apartamento T3 situado no terceiro andar de um Edifício Moderno na prestigiada zona dos Barreiros, no Funchal. Localizado a poucos minutos de pastelarias, cafés, supermercados e todos os serviços essenciais, este imóvel combina conforto, design contemporâneo e uma excelente acessibilidade, com transportes públicos e vias rápidas nas proximidades.
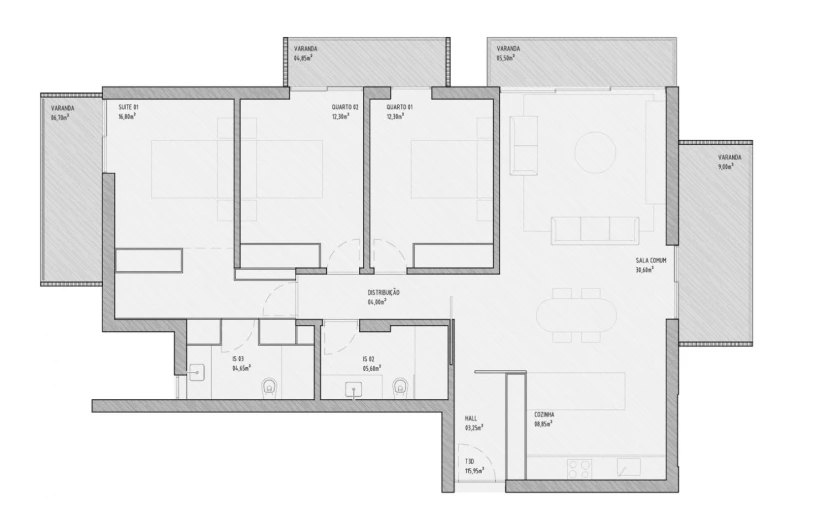
O apartamento é composto por um hall de entrada acolhedor, uma ampla sala comum e uma cozinha em open space totalmente equipada com eletrodomésticos Bosch – incluindo placa de indução com exaustor integrado, forno, micro-ondas, frigorífico, máquina de lavar loiça e máquina de lavar roupa. A área social conta ainda com quatro varandas, que oferecem ótima luz natural e uma vista desafogada.
A zona privada é composta por uma suite com closet, dois quartos espaçosos, casa de banho na suite e casa de banho social, todas com acabamentos de alta qualidade e design moderno.
Principais características e acabamentos:
Pavimento multicamadas em madeira de cor carvalho nas áreas principais
Casas de banho e lavandaria com pavimento cerâmico
Cozinha moderna com tampos e revestimentos em Silestone White Storm
Portas e roupeiros lacados a branco com ferragens em inox
Caixilharia em alumínio preto anodizado com vidros duplos
Porta de segurança com painel Dekor
Ar condicionado e sistema de bomba de calor A+, com poupança energética superior a 75%
Pré-instalação para carregamento de veículos elétricos
Certificação acústica e isolamento térmico de elevada eficiência
Este apartamento dispõe ainda de lugar de estacionamento coberto, arrecadação privada e acesso a zonas jardinadas de uso comum, garantindo funcionalidade e bem-estar.
Com uma localização estratégica e acabamentos Premium, este T3 é a escolha ideal para quem procura um lar moderno, espaçoso e com qualidade superior no Funchal.
Agende a sua visita e descubra um novo padrão de conforto e elegância.
Tratamos de todo o processo bancário.
Imobiliária com Licença de Mediação de Crédito atribuída pelo Banco de Portugal Nº3772
Aegis Realty, a sua imobiliária de confiança!
O apartamento é composto por um hall de entrada acolhedor, uma ampla sala comum e uma cozinha em open space totalmente equipada com eletrodomésticos Bosch – incluindo placa de indução com exaustor integrado, forno, micro-ondas, frigorífico, máquina de lavar loiça e máquina de lavar roupa. A área social conta ainda com quatro varandas, que oferecem ótima luz natural e uma vista desafogada.
A zona privada é composta por uma suite com closet, dois quartos espaçosos, casa de banho na suite e casa de banho social, todas com acabamentos de alta qualidade e design moderno.
Principais características e acabamentos:
Pavimento multicamadas em madeira de cor carvalho nas áreas principais
Casas de banho e lavandaria com pavimento cerâmico
Cozinha moderna com tampos e revestimentos em Silestone White Storm
Portas e roupeiros lacados a branco com ferragens em inox
Caixilharia em alumínio preto anodizado com vidros duplos
Porta de segurança com painel Dekor
Ar condicionado e sistema de bomba de calor A+, com poupança energética superior a 75%
Pré-instalação para carregamento de veículos elétricos
Certificação acústica e isolamento térmico de elevada eficiência
Este apartamento dispõe ainda de lugar de estacionamento coberto, arrecadação privada e acesso a zonas jardinadas de uso comum, garantindo funcionalidade e bem-estar.
Com uma localização estratégica e acabamentos Premium, este T3 é a escolha ideal para quem procura um lar moderno, espaçoso e com qualidade superior no Funchal.
Agende a sua visita e descubra um novo padrão de conforto e elegância.
Tratamos de todo o processo bancário.
Imobiliária com Licença de Mediação de Crédito atribuída pelo Banco de Portugal Nº3772
Aegis Realty, a sua imobiliária de confiança!
Localização
São Martinho, Funchal, Ilha da Madeira
Informação do anúncio
ID do anúncio
1409881
Referência Externa
AG1249/2025
Atualizado em
15/10/2025 08:39:39
Anunciante
Chamada para a rede móvel nacional
AEGIS REALTY
AMI 13062
Referência do imóvel:
AG1249/2025
Apartamento T3 para Venda em São Martinho