Apartamento T2 para Venda em Tavarede Foto 1
Apartamento T2 para Venda em Tavarede Foto 2
Apartamento T2 para Venda em Tavarede Foto 3

Apartamento T2 para Venda em Tavarede

295.000 €

Tipo
Apartamento
Negócio
Venda
Quartos
2
Casas de Banho
2
Área Bruta
96 m²
Condição
Novo
Certificado Energético
Em validação

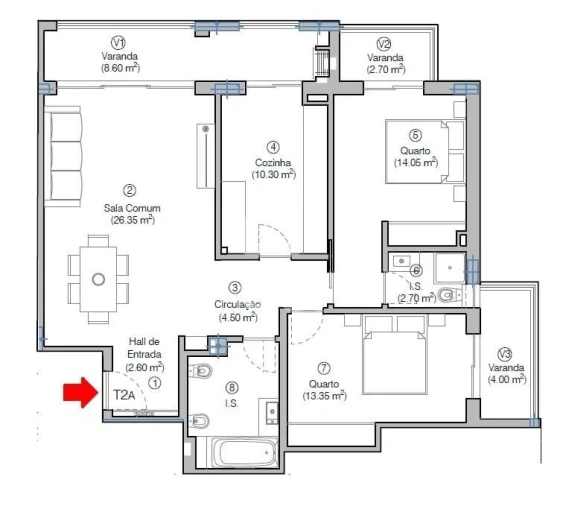
Apartamento T2 c/ lugar de parque - Quinta Santa Maria - Figueira da Foz

Gostaria de adquirir um apartamento T2, na deslumbrante cidade de Figueira da Foz? Esta é a sua oportunidade!
Com 15m2 de varandas, conta com uma cozinha, um quarto, uma suíte, uma sala e WC de serviço.
Na sub-cave tem ao seu dispor um lugar de parque.

Este apartamento está em fase de construção, estando a sua conclusão prevista para 2027

Garanta que este apartamento será o seu futuro imóvel, ainda a tempo de dar um toque pessoal.
Acabamentos

REVESTIMENTOS DE TETOS INTERIORES:
Tetos falsos pintados a tinta plástica.

REVESTIMENTOS DE PAREDES INTERIORES:
Paredes em geral acabadas a estuque pintado a tinta plástica.
Paredes de instalações sanitárias acabadas a ladrilho cerâmico.

REVESTIMENTO DE PAVIMENTOS:
Pavimento de varandas em cerâmico.
Pavimentos de instalações sanitárias em ladrilho cerâmico.
Pavimento das cozinhas em ladrilho cerâmico com rodapé lacado branco.
Pavimento de quartos, salas e circulações comuns em flutuante laminado com rodapé lacado branco.

CARPINTARIAS:
Porta da entrada de segurança com acabamento exterior a imitar madeira e interior lacado branco.
Portas interiores lacadas a branco.
Roupeiros com portas lacadas a branco e interiores revestidos a melamina.
Frentes de armário para ocultação de quadros com portas lacadas a branco.

CAIXILHARIAS:
Vãos de porta e janela exteriores em caixilharia com corte térmico incluindo vidro duplo.

A informação que consta neste website é meramente indicativa e não tem carácter contratual. Poderá, por motivos técnicos, comerciais ou legais, ser sujeita a alterações sem aviso prévio.

Compracasa é uma Rede Imobiliária integrada exclusivamente por associados da APEMIP (Associação dos Profissionais e Empresas de Mediação Imobiliária de Portugal), garantia de profissionalismo e de proteção dos direitos dos consumidores e utilizadores.

A APEMIP ocupa hoje uma posição destacada no mercado imobiliário nacional, quer pela aposta contínua na afirmação do papel do profissional de mediação imobiliária na nossa sociedade, quer pela conquista de uma maior quota no mercado de transações de imóveis, na linha do lema Fortalecer a Mediação, Dinamizar a Economia e Servir os Consumidores.

Por seu lado, a UCI (União de Créditos Imobiliários) é uma Instituição Financeira especialista na concessão de crédito à habitação a particulares através dos profissionais do sector imobiliário. A UCI resulta da joint venture entre dois dos maiores grupos financeiros da Europa: o Grupo Santander, o Grupo BNP Paribas. Desta união surge o compromisso de ajudar a desenvolver o sector da mediação imobiliária, colocando ao seu alcance as melhores ferramentas que possibilitem potenciar o negócio imobiliário.

Neste sentido é perfeitamente lógico que estas duas entidades de referência do sector da mediação imobiliária (APEMIP e a UCI) tenham, em Junho de 2004, celebrado um acordo de colaboração dando origem à ComprarCasa Rede Imobiliária da Apemip.

ComprarCasa inicia a sua atividade comercial em Agosto de 2004 assente na missão de Ser a Maior e Melhor Rede Imobiliária Nacional oferecendo múltiplos serviços a mediadores imobiliários, baseados no conceito de marca comum, possibilitando e potenciando sinergias que se transformem em valores acrescentados para o mercado, nomeadamente para si que pretende vender, comprar, arrendar ou trespassar um determinado imóvel.

Política da Qualidade ComprarCasa Coimbra

ComprarCasa Coimbra tem como compromisso prestar um serviço de excelência aos diversos intervenientes no sector da mediação imobiliária, disponibilizando para tal as melhores ferramentas que possibilitam potenciar o negócio imobiliário. Este conceito de negócio, apesar de original, tem valores tradicionais na sua génese:

Profissionalismo; Empenho; Capacidade e Competência.

A política adotada pela ComprarCasa Coimbra consiste em trabalhar, sob um Sistema de Gestão da Qualidade, económico, eficaz e dinâmico, documentado e verificado regularmente para melhorar continuamente a sua adequação e eficácia, renovando-se sistematicamente com vista à melhoria contínua de desempenho da empresa, garantindo desta forma o ajustamento às necessidades dos clientes internos e externos, possibilitando-lhe a obtenção do objetivo de oferecer ao cliente um serviço de qualidade e valor acrescentado.

A política de qualidade da Rede ComprarCasa proporciona um marco de referência ao estabelecer e rever periodicamente os objetivos da Rede e ao garantir o cumprimento dos requisitos da norma, Legislação, Regulamentação, Sistema da Qualidade implementado e outros requisitos aplicáveis à atividade.

ComprarCasa Coimbra. A melhor forma de encontrar a casa ideal.

Localização

Tavarede, Figueira da Foz, Coimbra

Informação do anúncio

ID do anúncio 1419926
Referência Externa 385/A/00744
Atualizado em 22/10/2025 02:13:29
ComprarCasa Coimbra AMI 17415
Referência do imóvel: 385/A/00744
Phone
Chamada para a rede móvel nacional
ComprarCasa Coimbra AMI 17415
Referência do imóvel: 385/A/00744
Phone
Chamada para a rede móvel nacional
1 / 3
Apartamento T2 para Venda em Tavarede Foto 1
Apartamento T2 para Venda em Tavarede Foto 2
Apartamento T2 para Venda em Tavarede Foto 3
Apartamento T2 para Venda em Tavarede
Clicky