Moradia T3+1 NOVA Moderna em construção em Aradas-Aveiro
Moradia T3+1NOVA Moderna em construção em Aradas-Aveiro
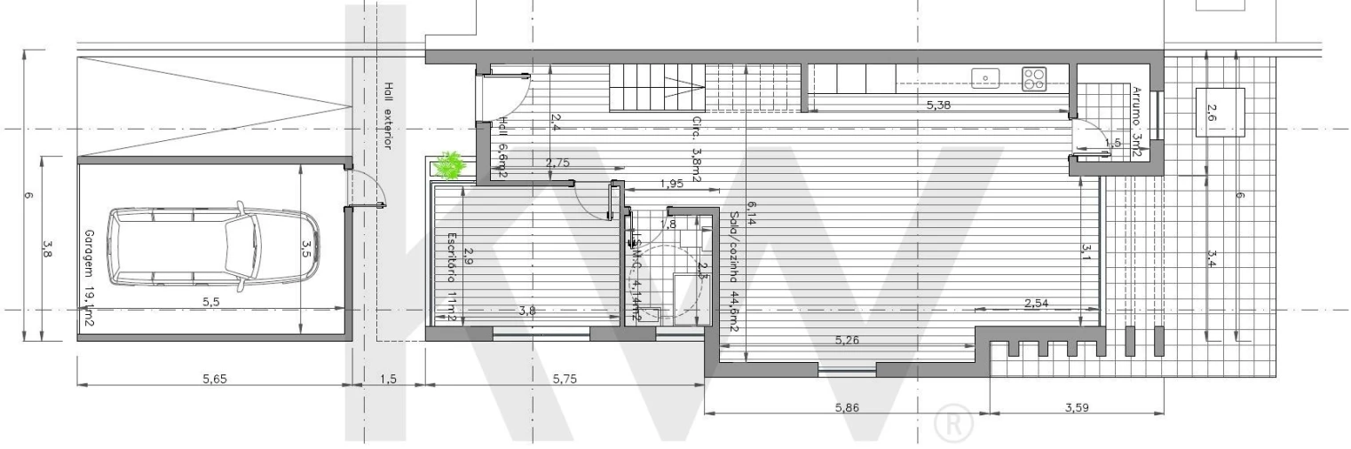
Esta agradável Moradia T3 é dividida por 2 pisos, sendo que, ao nível do r/chão encontramos a zona social, distribuída por:
- um amplo hall de entrada;
- um escritório;
- uma espaçosa sala de estar e jantar em open space com a cozinha;
- um compartimento para arrumação;
- casa de banho completa.
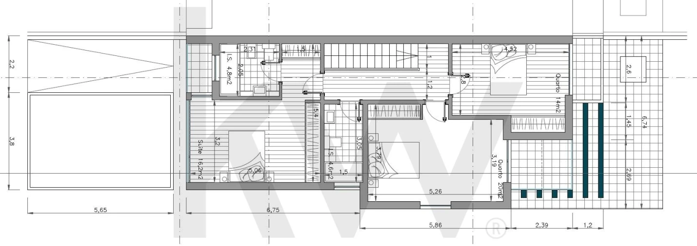
Ao nível do 1º piso, encontramos:
a zona privada da moradia, composta por 3 quartos, um deles em suíte com casa de banho completa, todos com armário embutido, e uma casa de banho completa de apoio aos restantes dois quartos.
Na zona exterior, encontramos:
uma garagem fechada, um lugar de garagem e os anexos da moradia.
Se procura uma moradia moderna em zona tranquila, a 10 minutos do centro de Aveiro, este é o imóvel que procura, entre em contacto com a nossa Equipa e agende já a sua visita.
Este site utiliza cookies. Ao navegar no site estará a consentir a sua utilização. Para mais informações sobre os cookies pode consultar a
política de privacidade.