Consultor imobiliário em Caseiros Imóveis - AMI: 17994
Comprar
Arrendar
8 Quartos
1 WCs
Área bruta : 325 m²
Ampla casa de campo típica da serra algarvia totalmente legalizada, com logradouro, forno exterior e terreno. Potencial para habitação ou investimento em turismo espaço rural. Com uma área total de 323m2 e terreno de 1400m2, esta casa de campo tem fácil acesso a água canalizada (sem necessidade de furo) e eletricidade. Excelentes acessos por estrada, tem também a vantagem de não ter nenhuma outra casa geminada. O terreno em frente oferece umas vistas lindas sobre a serra, podendo ser utilizado para horta ou para simples usufruto da sua beleza. A localização é particularmente interessante para quem procura o sossego e a vida no campo, silêncio e privacidade - a casa é isolada e a fachada não confronta com nenhuma outra. Encontra-se a poucos metros da Via Algarviana (rota de percursos pedestres do Algarve - https://viaalgarviana.org/), podendo ser também um potencial investimento para turismo em espaço rural. Se necessita de apoio no desenvolvimento do projeto de recuperação/construção, fornecemos todos os serviços necessários. *TEMOS LISTAGENS SECRETAS* Procura mas não está a encontrar o imóvel certo para si? Deseja investir no imobiliário? Quer vender a sua propriedade mas não quer ficar exposto ao mercado? Contacte-nos – temos listagens secretas, promovidas apenas a clientes qualificados! Queremos concretizar sonhos e por isso estamos em constante atualização e formação para que o nosso serviço seja de excelência, privilegiando a qualidade à quantidade, com foco na personalização e dedicação em todas as fases do seu projeto. Queremos marcar a diferença e daí o nosso compromisso com o ambiente: inovando na forma de projetar e construir, no modo de comunicar, e pretendemos ser um aliado na transição para uma vida mais sustentável e consciente para o bem de todos, para o bem da nossa casa e do nosso futuro! Contamos consigo?
AMI: 17994
Ref. Externa: CAS_159
Id: 1164119
Inicie sessão para guardar este imóvel e aceder à sua lista de favoritos em qualquer dispositivo.
425.000 €
3 Quartos
3 WCs
Área bruta : 130 m²
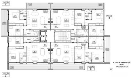
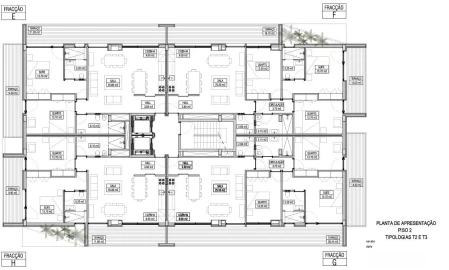
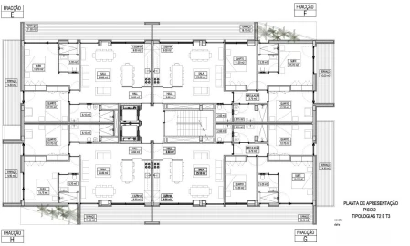
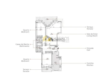
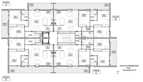
Modernos e luminosos apartamentos T3, inseridos num condomínio fechado com piscina, localizados em zona calma e mas com excelentes acessos, constituídos por: - 3 quartos com armários embutidos; - sala e cozinha em open-space totalmente equipada; - varandas; - 3 casas de banho, uma das quais em suite; - garagem com tomadas elétricas para carreamento de veículos elétricos; - excelente exposição solar, A/C, painel solar, vidros duplos, vídeo-porteiro. O empreendimento localiza-se a 5 minutos do Aeroporto Internacional de Faro e a 10 minutos da praia e do centro da cidade de Faro. Junto à Universidade do Algarve e do Hospital Particular do Algarve, e em plena zona de expansão urbanística, a sua localização beneficia de bons acessos aos centros urbanos e, simultaneamente, do sossego e o desafogo de espaços verdes de uma área sub-urbana. O PROJETO Com um arquitetura contemporânea e distinta dos edifícios circundantes, o acesso ao edifício é feito através de rampa/acesso particular encontrando-se inserido num amplo e desafogado espaço verde. Com vistas de 365º possui uma excelente exposição solar, não tendo qualquer obstáculo visual. O logradouro possui um maravilhoso jardim com piscina e zona de estar, com máxima exposição solar, sendo a privacidade tida em especial consideração, o prédio é ladeado por vegetação e jardim. Trata-se de um condomínio privado com estacionamento privativo no exterior bem como estacionamento coberto na cave. O acesso às unidades habitacionais é feito através de um átrio amplo e aberto, possuindo dois elevadores e escadaria de acesso pelo interior. A piscina é acedida pelo pátio exterior através de escadaria. A zona de estar situa-se um piso acima do parqueamento exterior. A entrada para o edifício é caracterizada por um amplo lobby central, completamente aberto, sendo um local de eleição para convívio. Possui ainda uma sala multi-usos à disposição dos moradores e condomínio. A piscina, zona de estar e jardins, são comuns a todos os moradores. TIPOLOGIAS DISPONÍVEIS Cada piso é caracterizado por um hall com elevador e escada de acesso totalmente encerrada, dois apartamentos tipologia T2 e dois tipologia T3. Todos os apartamentos possuem varandas privadas e óptima exposição solar. Todos os apartamentos possuem cozinha em «open space», partilhada com a sala de estar, com acabamentos e equipamentos modernos. Os apartamentos T2 possuem duas casas de banho sendo uma em suite, e para os apartamentos T3 estão consideradas 3 casas de banho, uma das quais em suite. O isolamento acústico exterior e entre apartamentos garante uma maior privacidade e conforto. Aparelhos de ar condicionado tipo multisplit incluídos. Painéis solares na cobertura garantem a produção de água quente, e estão previstas tomadas eléctricas na garagem para carregamento de veículos elétricos. As portas interiores poderão ser lacadas ou revestidas a madeira, a definir conforme caderno de encargos. As portas de entrada serão metálicas com fechadura de segurança e vídeo-porteiro incluídos. Janelas em alumínio termo lacado com vidro duplo, e estores eléctricos para um maior conforto. Cozinhas em open-space e totalmente equipadas, com armários lacados ou revestidos à cor da madeira, e tampos em pedra ou similar; frigorifico, forno, micro-ondas (opcional), placa vitrocerâmica e exaustor; máquina de lavar loiça e de roupa. Todas as divisões habitáveis, incluindo quartos e sala, possuem vãos envidraçados à proporção certa tendo em conta a optimização da iluminação e ventilação naturais. Estão previstos roupeiros embutidos em todos os quartos, o pavimento pode ser de parquet/flutuante, cerâmico ou betão afagado tratado. As casas de banho seguem na mesma linha contemporânea, com móveis e sanitas suspensos, e duche espaçoso com resguardo em vidro temperado; torneiras misturadoras encastradas; azulejos ou estuque hidrofugado nas paredes e pavimento cerâmico *TEMOS LISTAGENS SECRETAS* Procura mas não está a encontrar o imóvel certo para si? Deseja investir no imobiliário? Quer vender a sua propriedade mas não quer ficar exposto ao mercado? Contacte-nos – temos listagens secretas, promovidas apenas a clientes qualificados! Queremos concretizar sonhos e por isso estamos em constante atualização e formação para que o nosso serviço seja de excelência, privilegiando a qualidade à quantidade, com foco na personalização e dedicação em todas as fases do seu projeto. Queremos marcar a diferença e daí o nosso compromisso com o ambiente: inovando na forma de projetar e construir, no modo de comunicar, e pretendemos ser um aliado na transição para uma vida mais sustentável e consciente para o bem de todos, para o bem da nossa casa e do nosso futuro! Contamos consigo?
AMI: 17994
Ref. Externa: CAS_157_T3
Id: 1164116
Inicie sessão para guardar este imóvel e aceder à sua lista de favoritos em qualquer dispositivo.
375.000 €
2 Quartos
2 WCs
Área bruta : 130 m²
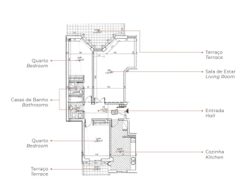
Modernos e luminosos apartamentos T2, inseridos num condomínio fechado com piscina, localizados em zona calma e mas com excelentes acessos, constituídos por: - 2 quartos com armários embutidos; - sala e cozinha em open-space totalmente equipada; - varandas; - 2 casas de banho, uma das quais em suite; - garagem com tomadas elétricas para carreamento de veículos elétricos; - excelente exposição solar, A/C, painel solar, vidros duplos, vídeo-porteiro. O empreendimento localiza-se a 5 minutos do Aeroporto Internacional de Faro e a 10 minutos da praia e do centro da cidade de Faro. Junto à Universidade do Algarve e do Hospital Particular do Algarve, e em plena zona de expansão urbanística, a sua localização beneficia de bons acessos aos centros urbanos e, simultaneamente, do sossego e o desafogo de espaços verdes de uma área sub-urbana. O PROJETO Com um arquitetura contemporânea e distinta dos edifícios circundantes, o acesso ao edifício é feito através de rampa/acesso particular encontrando-se inserido num amplo e desafogado espaço verde. Com vistas de 365º possui uma excelente exposição solar, não tendo qualquer obstáculo visual. O logradouro possui um maravilhoso jardim com piscina e zona de estar, com máxima exposição solar, sendo a privacidade tida em especial consideração, o prédio é ladeado por vegetação e jardim. Trata-se de um condomínio privado com estacionamento privativo no exterior bem como estacionamento coberto na cave. O acesso às unidades habitacionais é feito através de um átrio amplo e aberto, possuindo dois elevadores e escadaria de acesso pelo interior. A piscina é acedida pelo pátio exterior através de escadaria. A zona de estar situa-se um piso acima do parqueamento exterior. A entrada para o edifício é caracterizada por um amplo lobby central, completamente aberto, sendo um local de eleição para convívio. Possui ainda uma sala multi-usos à disposição dos moradores e condomínio. A piscina, zona de estar e jardins, são comuns a todos os moradores. TIPOLOGIAS DISPONÍVEIS Cada piso é caracterizado por um hall com elevador e escada de acesso totalmente encerrada, dois apartamentos tipologia T2 e dois tipologia T3. Todos os apartamentos possuem varandas privadas e óptima exposição solar. Todos os apartamentos possuem cozinha em «open space», partilhada com a sala de estar, com acabamentos e equipamentos modernos. Os apartamentos T2 possuem duas casas de banho sendo uma em suite, e para os apartamentos T3 estão consideradas 3 casas de banho, uma das quais em suite. O isolamento acústico exterior e entre apartamentos garante uma maior privacidade e conforto. Aparelhos de ar condicionado tipo multisplit incluídos. Painéis solares na cobertura garantem a produção de água quente, e estão previstas tomadas eléctricas na garagem para carregamento de veículos elétricos. As portas interiores poderão ser lacadas ou revestidas a madeira, a definir conforme caderno de encargos. As portas de entrada serão metálicas com fechadura de segurança e vídeo-porteiro incluídos. Janelas em alumínio termo lacado com vidro duplo, e estores eléctricos para um maior conforto. Cozinhas em open-space e totalmente equipadas, com armários lacados ou revestidos à cor da madeira, e tampos em pedra ou similar; frigorifico, forno, micro-ondas (opcional), placa vitrocerâmica e exaustor; máquina de lavar loiça e de roupa. Todas as divisões habitáveis, incluindo quartos e sala, possuem vãos envidraçados à proporção certa tendo em conta a optimização da iluminação e ventilação naturais. Estão previstos roupeiros embutidos em todos os quartos, o pavimento pode ser de parquet/flutuante, cerâmico ou betão afagado tratado. As casas de banho seguem na mesma linha contemporânea, com móveis e sanitas suspensos, e duche espaçoso com resguardo em vidro temperado; torneiras misturadoras encastradas; azulejos ou estuque hidrofugado nas paredes e pavimento cerâmico *TEMOS LISTAGENS SECRETAS* Procura mas não está a encontrar o imóvel certo para si? Deseja investir no imobiliário? Quer vender a sua propriedade mas não quer ficar exposto ao mercado? Contacte-nos – temos listagens secretas, promovidas apenas a clientes qualificados! Queremos concretizar sonhos e por isso estamos em constante atualização e formação para que o nosso serviço seja de excelência, privilegiando a qualidade à quantidade, com foco na personalização e dedicação em todas as fases do seu projeto. Queremos marcar a diferença e daí o nosso compromisso com o ambiente: inovando na forma de projetar e construir, no modo de comunicar, e pretendemos ser um aliado na transição para uma vida mais sustentável e consciente para o bem de todos, para o bem da nossa casa e do nosso futuro! Contamos consigo?
AMI: 17994
Ref. Externa: CAS_157_T2
Id: 1164112
Inicie sessão para guardar este imóvel e aceder à sua lista de favoritos em qualquer dispositivo.
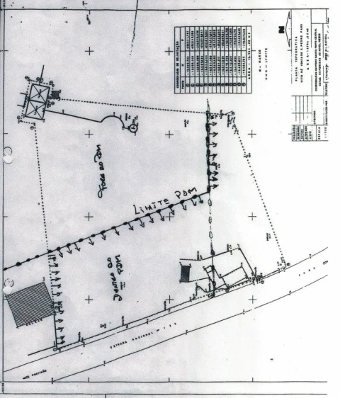
4.000.000 €
Área de terreno : 16580 m²
Excelente localização para grande loja, grande frente estrada. Está prevista a criação de uma estrada de acesso pela frente do terreno. Terreno com 16.580 m2 na entrada de Faro, junto à EN 125 ao lado da Staples e perto do Fórum Algarve. O número dos lotes referentes ao terreno são o 15, 16 e 17. Nas plantas está a indicação da zona com viabilidade de construção. A restante área é considerada agrícola. *TEMOS LISTAGENS SECRETAS* Procura mas não está a encontrar o imóvel certo para si? Deseja investir no imobiliário? Quer vender a sua propriedade mas não quer ficar exposto ao mercado? Contacte-nos – temos listagens secretas, promovidas apenas a clientes qualificados! Queremos concretizar sonhos e por isso estamos em constante atualização e formação para que o nosso serviço seja de excelência, privilegiando a qualidade à quantidade, com foco na personalização e dedicação em todas as fases do seu projeto. Queremos marcar a diferença e daí o nosso compromisso com o ambiente: inovando na forma de projetar e construir, no modo de comunicar, e pretendemos ser um aliado na transição para uma vida mais sustentável e consciente para o bem de todos, para o bem da nossa casa e do nosso futuro! Contamos consigo?
AMI: 17994
Ref. Externa: CAS_025
Id: 1164105
Inicie sessão para guardar este imóvel e aceder à sua lista de favoritos em qualquer dispositivo.
250.000 €
Área de terreno : 2000 m²
Terreno em Quelfes com 2000 m2 com projeto aprovado para construção de uma moradia T4 térrea, com piscina. Principais características: - 301 m2 de área de implantação - 67 m2 de área de implantação da piscina - Arquitetura moderna - Jardim - Grandes vãos envidraçados que permitem a entrada de muita luz e vistas desafogadas Localizada a 5 minutos de Olhão e a 15 minutos de Faro, numa urbanização onde impera a paz e o sossego. Tenha a sua casa de sonho, usufruindo do melhor de viver no campo, mas perto de tudo! Contacte já! *TEMOS LISTAGENS SECRETAS* Procura mas não está a encontrar o imóvel certo para si? Deseja investir no imobiliário? Quer vender a sua propriedade mas não quer ficar exposto ao mercado? Contacte-nos - temos listagens secretas, promovidas apenas a clientes qualificados! Queremos concretizar sonhos e por isso estamos em constante atualização e formação para que o nosso serviço seja de excelência, privilegiando a qualidade à quantidade, com foco na personalização e dedicação em todas as fases do seu projeto. Queremos marcar a diferença e daí o nosso compromisso com o ambiente: inovando na forma de projetar e construir, no modo de comunicar, e pretendemos ser um aliado na transição para uma vida mais sustentável e consciente para o bem de todos, para o bem da nossa casa e do nosso futuro! Contamos consigo?
AMI: 17994
Ref. Externa: CAS_064
Id: 1164102
Inicie sessão para guardar este imóvel e aceder à sua lista de favoritos em qualquer dispositivo.
4.600.000 €
Área de terreno : 9108 m²
Terreno urbano em Olhão com área de 9100m2, com projecto pré-aprovado para para construção de condomínio com 80 apartamentos, piscina e campo de ténis. Localizado na zona de expansão da cidade, trata-se de um excelente investimento. Contacte-nos e saiba mais. *TEMOS LISTAGENS SECRETAS* Procura mas não está a encontrar o imóvel certo para si? Deseja investir no imobiliário? Quer vender a sua propriedade mas não quer ficar exposto ao mercado? Contacte-nos - temos listagens secretas, promovidas apenas a clientes qualificados! Queremos concretizar sonhos e por isso estamos em constante atualização e formação para que o nosso serviço seja de excelência, privilegiando a qualidade à quantidade, com foco na personalização e dedicação em todas as fases do seu projeto. Queremos marcar a diferença e daí o nosso compromisso com o ambiente: inovando na forma de projetar e construir, no modo de comunicar, e pretendemos ser um aliado na transição para uma vida mais sustentável e consciente para o bem de todos, para o bem da nossa casa e do nosso futuro! Contamos consigo?
AMI: 17994
Ref. Externa: CAS_104
Id: 1164099
Inicie sessão para guardar este imóvel e aceder à sua lista de favoritos em qualquer dispositivo.
Área de terreno : 28600 m²
Terreno com 28600m2 na bela localidade de Santa Catarina da Fonte do Bispo no Barrocal Algarvio. Ruína com 61m2 com possibilidade de construir até 300m2. Terreno com luz e água da rede. Não tem esgotos. Aproveite a oportunidade de construir a sua casa de campo de sonho! *TEMOS LISTAGENS SECRETAS* Procura mas não está a encontrar o imóvel certo para si? Deseja investir no imobiliário? Quer vender a sua propriedade mas não quer ficar exposto ao mercado? Contacte-nos - temos listagens secretas, promovidas apenas a clientes qualificados! Queremos concretizar sonhos e por isso estamos em constante atualização e formação para que o nosso serviço seja de excelência, privilegiando a qualidade à quantidade, com foco na personalização e dedicação em todas as fases do seu projeto. Queremos marcar a diferença e daí o nosso compromisso com o ambiente: inovando na forma de projetar e construir, no modo de comunicar, e pretendemos ser um aliado na transição para uma vida mais sustentável e consciente para o bem de todos, para o bem da nossa casa e do nosso futuro! Contamos consigo?
AMI: 17994
Ref. Externa: CAS_096
Id: 1164091
Inicie sessão para guardar este imóvel e aceder à sua lista de favoritos em qualquer dispositivo.
382.646 €
3 Quartos
3 WCs
Área bruta : 130 m²
Novos apartamentos T3 com área total aproximada entre os 128m2 e os 137m2, desde 382.646€ e localizados numa nova urbanização em Olhão. Dispõem de superfícies generosas e amplas varandas, alguns com vista desafogada sobre a Ria Formosa. Cada apartamento é dotado de uma ampla sala comum, com cozinha integrada e equipada, instalações sanitárias, algumas em suite, e quartos com roupeiros. Os apartamentos têm estacionamento, e arrecadações que estão distribuídos pelo nível da cave. O CONDOMÍNIO: Condomínio de arquitetura moderna. Situado na cidade de Olhão e que é um dos pontos mais centrais e encantadores da região do Algarve. Seja bem-vindo! EXTERIORES: Um condomínio com piscinas em osmose com o seu ambiente. Distingue-se por um belo equilíbrio entre o design moderno dos edifícios e o ambiente natural dos jardins da residência. As suas linhas elegantes são um atrativo e revelam as vastas e exuberantes áreas ajardinadas ao ar livre que são uma extensão dos novos apartamentos. As fachadas criam um ambiente dinâmico e misturam-se num jardim cuja versatilidade permite a cada um, sozinho ou em grupo, aproveitar ao máximo o seu espaço, ou simplesmente observar a partir da varanda as variações da paisagem ao longo do dia ou das estações. Desfrute de um ambiente agradável e amigável, onde a natureza se desdobra em muitas formas, particularmente através da vegetação do jardim paisagístico da residência. A CIDADE: A Cidade de Olhão está localizada em pleno coração do Parque Natural da Ria Formosa, um ecossistema único pela sua fauna e flora, os seus incríveis bancos de areia, o seu extenso areal dourado e as suas ilhas barreira Ficará maravilhado com todo o espetáculo natural que a Ria proporciona à cidade. Nos diversos bares e cafés com convidativas esplanadas, poderá desfrutar da Ria, o seu nascer e pôr-do-sol fantásticos, e a tranquilidade única que ela nos traz. Contacte-nos e conheça a sua nova casa! *TEMOS LISTAGENS SECRETAS* Procura mas não está a encontrar o imóvel certo para si? Deseja investir no imobiliário? Quer vender a sua propriedade mas não quer ficar exposto ao mercado? Contacte-nos - temos listagens secretas, promovidas apenas a clientes qualificados! Queremos concretizar sonhos e por isso estamos em constante atualização e formação para que.
AMI: 17994
Ref. Externa: CAS_017_C
Id: 1164087
Inicie sessão para guardar este imóvel e aceder à sua lista de favoritos em qualquer dispositivo.
322.000 €
2 Quartos
2 WCs
Área bruta : 92 m²
Novos apartamentos T2 área total de 92.50m2, e preço 322.000,00, localizados numa nova urbanização em Olhão. Dispõem de superfícies generosas e amplas varandas, alguns com vista desafogada sobre a Ria Formosa. Cada apartamento é dotado de uma ampla sala comum, com cozinha integrada e equipada, instalações sanitárias, algumas em suite, e quartos com roupeiros. Os apartamentos têm estacionamento, e arrecadações que estão distribuídos pelo nível da cave. O CONDOMÍNIO: Condomínio de arquitetura moderna. Situado na cidade de Olhão e que é um dos pontos mais centrais e encantadores da região do Algarve. Seja bem-vindo! EXTERIORES: Um condomínio com piscinas em osmose com o seu ambiente. Distingue-se por um belo equilíbrio entre o design moderno dos edifícios e o ambiente natural dos jardins da residência. As suas linhas elegantes são um atrativo e revelam as vastas e exuberantes áreas ajardinadas ao ar livre que são uma extensão dos novos apartamentos. As fachadas criam um ambiente dinâmico e misturam-se num jardim cuja versatilidade permite a cada um, sozinho ou em grupo, aproveitar ao máximo o seu espaço, ou simplesmente observar a partir da varanda as variações da paisagem ao longo do dia ou das estações. Desfrute de um ambiente agradável e amigável, onde a natureza se desdobra em muitas formas, particularmente através da vegetação do jardim paisagístico da residência. A CIDADE: A Cidade de Olhão está localizada em pleno coração do Parque Natural da Ria Formosa, um ecossistema único pela sua fauna e flora, os seus incríveis bancos de areia, o seu extenso areal dourado e as suas ilhas barreira Ficará maravilhado com todo o espetáculo natural que a Ria proporciona à cidade. Nos diversos bares e cafés com convidativas esplanadas, poderá desfrutar da Ria, o seu nascer e pôr-do-sol fantásticos, e a tranquilidade única que ela nos traz. Contacte-nos e conheça a sua nova casa! *TEMOS LISTAGENS SECRETAS* Procura mas não está a encontrar o imóvel certo para si? Deseja investir no imobiliário? Quer vender a sua propriedade mas não quer ficar exposto ao mercado? Contacte-nos - temos listagens secretas, promovidas apenas a clientes qualificados!
AMI: 17994
Ref. Externa: CAS_017_B
Id: 1164086
Inicie sessão para guardar este imóvel e aceder à sua lista de favoritos em qualquer dispositivo.
481.607 €
4 Quartos
3 WCs
Área bruta : 160 m²
Novos apartamentos T4 com área total aproximada de 158m2 com preços a partir de 481.607€, localizados numa nova urbanização em Olhão. Dispõem de superfícies generosas e amplas varandas, alguns com vista desafogada sobre a Ria Formosa. Cada apartamento é dotado de uma ampla sala comum, com cozinha integrada e equipada, instalações sanitárias, algumas em suite, e quartos com roupeiros. Os apartamentos têm estacionamento, e arrecadações que estão distribuídos pelo nível da cave. O CONDOMÍNIO: Condomínio de arquitetura moderna. Situado na cidade de Olhão e que é um dos pontos mais centrais e encantadores da região do Algarve. Seja bem-vindo! EXTERIORES: Um condomínio com piscinas em osmose com o seu ambiente. Distingue-se por um belo equilíbrio entre o design moderno dos edifícios e o ambiente natural dos jardins da residência. As suas linhas elegantes são um atrativo e revelam as vastas e exuberantes áreas ajardinadas ao ar livre que são uma extensão dos novos apartamentos. As fachadas criam um ambiente dinâmico e misturam-se num jardim cuja versatilidade permite a cada um, sozinho ou em grupo, aproveitar ao máximo o seu espaço, ou simplesmente observar a partir da varanda as variações da paisagem ao longo do dia ou das estações. Desfrute de um ambiente agradável e amigável, onde a natureza se desdobra em muitas formas, particularmente através da vegetação do jardim paisagístico da residência. A CIDADE: A Cidade de Olhão está localizada em pleno coração do Parque Natural da Ria Formosa, um ecossistema único pela sua fauna e flora, os seus incríveis bancos de areia, o seu extenso areal dourado e as suas ilhas barreira Ficará maravilhado com todo o espetáculo natural que a Ria proporciona à cidade. Nos diversos bares e cafés com convidativas esplanadas, poderá desfrutar da Ria, o seu nascer e pôr-do-sol fantásticos, e a tranquilidade única que ela nos traz. Contacte-nos e conheça a sua nova casa! *TEMOS LISTAGENS SECRETAS* Procura mas não está a encontrar o imóvel certo para si? Deseja investir no imobiliário? Quer vender a sua propriedade mas não quer ficar exposto ao mercado? Contacte-nos - temos listagens secretas, promovidas apenas a clientes qualificados! Queremos concretizar sonhos e por isso estamos em constante atualização e formação para que o nosso serviço seja de ex.
AMI: 17994
Ref. Externa: CAS_017_D
Id: 1164084
Inicie sessão para guardar este imóvel e aceder à sua lista de favoritos em qualquer dispositivo.
Inicie sessão para ocultar este imóvel das suas pesquisas e manter a sua lista de resultados organizada.
Caseiros Imóveis
Consultor imobiliário em Caseiros Imóveis - AMI: 17994
Compre créditos para poder destacar os seus imóveis! Desta forma eles são os primeiros a aparecer nas pesquisas e têm uma maior chance de serem vistos pelos utilizadores.
Guardar favoritos
Este imóvel foi guardados nos seus favoritos com sucesso.
Para poder guardar pesquisa deverá ter a sua sessão iniciada.
Caso não tenha uma conta, deverá criar uma.
A sua pesquisa foi guardada com sucesso!
© Copyright 2023 | CASACERTA. All rights reserved
Este site utiliza cookies. Ao navegar no site estará a consentir a sua utilização.
Para mais informações sobre os cookies pode consultar a
política de privacidade.