Apartamento T4 para Venda em Quelfes
481.607 €
Tipo
Apartamento
Negócio
Venda
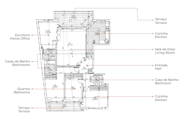
Quartos
4
Casas de Banho
3
Área Bruta
160 m²
Área Útil
158 m²
Condição
Novo
Certificado Energético
A
Apartamento em Quelfes
Novos apartamentos T4 com área total aproximada de 158m2 com preços a partir de 481.607€, localizados numa nova urbanização em Olhão.
Dispõem de superfícies generosas e amplas varandas, alguns com vista desafogada sobre a Ria Formosa. Cada apartamento é dotado de uma ampla sala comum, com cozinha integrada e equipada, instalações sanitárias, algumas em suite, e quartos com roupeiros. Os apartamentos têm estacionamento, e arrecadações que estão distribuídos pelo nível da cave.
O CONDOMÍNIO:
Condomínio de arquitetura moderna. Situado na cidade de Olhão e que é um dos pontos mais centrais e encantadores da região do Algarve. Seja bem-vindo!
EXTERIORES:
Um condomínio com piscinas em osmose com o seu ambiente. Distingue-se por um belo equilíbrio entre o design moderno dos edifícios e o ambiente natural dos jardins da residência. As suas linhas elegantes são um atrativo e revelam as vastas e exuberantes áreas ajardinadas ao ar livre que são uma extensão dos novos apartamentos.
As fachadas criam um ambiente dinâmico e misturam-se num jardim cuja versatilidade permite a cada um, sozinho ou em grupo, aproveitar ao máximo o seu espaço, ou simplesmente observar a partir da varanda as variações da paisagem ao longo do dia ou das estações.
Desfrute de um ambiente agradável e amigável, onde a natureza se desdobra em muitas formas, particularmente através da vegetação do jardim paisagístico da residência.
A CIDADE:
A Cidade de Olhão está localizada em pleno coração do Parque Natural da Ria Formosa, um ecossistema único pela sua fauna e flora, os seus incríveis bancos de areia, o seu extenso areal dourado e as suas ilhas barreira Ficará maravilhado com todo o espetáculo natural que a Ria proporciona à cidade. Nos diversos bares e cafés com convidativas esplanadas, poderá desfrutar da Ria, o seu nascer e pôr-do-sol fantásticos, e a tranquilidade única que ela nos traz.
Contacte-nos e conheça a sua nova casa!
*TEMOS LISTAGENS SECRETAS*
Procura mas não está a encontrar o imóvel certo para si? Deseja investir no imobiliário? Quer vender a sua propriedade mas não quer ficar exposto ao mercado? Contacte-nos - temos listagens secretas, promovidas apenas a clientes qualificados!
Queremos concretizar sonhos e por isso estamos em constante atualização e formação para que o nosso serviço seja de ex.
Dispõem de superfícies generosas e amplas varandas, alguns com vista desafogada sobre a Ria Formosa. Cada apartamento é dotado de uma ampla sala comum, com cozinha integrada e equipada, instalações sanitárias, algumas em suite, e quartos com roupeiros. Os apartamentos têm estacionamento, e arrecadações que estão distribuídos pelo nível da cave.
O CONDOMÍNIO:
Condomínio de arquitetura moderna. Situado na cidade de Olhão e que é um dos pontos mais centrais e encantadores da região do Algarve. Seja bem-vindo!
EXTERIORES:
Um condomínio com piscinas em osmose com o seu ambiente. Distingue-se por um belo equilíbrio entre o design moderno dos edifícios e o ambiente natural dos jardins da residência. As suas linhas elegantes são um atrativo e revelam as vastas e exuberantes áreas ajardinadas ao ar livre que são uma extensão dos novos apartamentos.
As fachadas criam um ambiente dinâmico e misturam-se num jardim cuja versatilidade permite a cada um, sozinho ou em grupo, aproveitar ao máximo o seu espaço, ou simplesmente observar a partir da varanda as variações da paisagem ao longo do dia ou das estações.
Desfrute de um ambiente agradável e amigável, onde a natureza se desdobra em muitas formas, particularmente através da vegetação do jardim paisagístico da residência.
A CIDADE:
A Cidade de Olhão está localizada em pleno coração do Parque Natural da Ria Formosa, um ecossistema único pela sua fauna e flora, os seus incríveis bancos de areia, o seu extenso areal dourado e as suas ilhas barreira Ficará maravilhado com todo o espetáculo natural que a Ria proporciona à cidade. Nos diversos bares e cafés com convidativas esplanadas, poderá desfrutar da Ria, o seu nascer e pôr-do-sol fantásticos, e a tranquilidade única que ela nos traz.
Contacte-nos e conheça a sua nova casa!
*TEMOS LISTAGENS SECRETAS*
Procura mas não está a encontrar o imóvel certo para si? Deseja investir no imobiliário? Quer vender a sua propriedade mas não quer ficar exposto ao mercado? Contacte-nos - temos listagens secretas, promovidas apenas a clientes qualificados!
Queremos concretizar sonhos e por isso estamos em constante atualização e formação para que o nosso serviço seja de ex.
Localização
Quelfes, Olhão, Faro
Informação do anúncio
ID do anúncio
1164084
Referência Externa
CAS_017_D
Atualizado em
15/04/2025 14:52:13
Anunciante
Chamada para a rede móvel nacional
Caseiros Imóveis
AMI 17994
Referência do imóvel:
CAS_017_D
Apartamento T4 para Venda em Quelfes