Lista
Comprar
Arrendar
2 Quartos
3 WCs
Área bruta : 110 m²
Moradia T2 (2 suítes) recentemente remodelada, onde o conforto, o aproveitamento dos espaços e funcionalidade foram cuidadosamente pensados. Localizada numa rua tranquila de Valbom, com comércio, serviços e transportes na envolvente. A poucos minutos do Porto. A moradia, estruturalmente em pedra, distribui-se por dois pisos, com os espaços bem definidos e organizados. Rés do chão: Sala de estar e jantar Cozinha moderna, totalmente equipada (exaustor, placa, forno, micro-ondas, combinado e máquina lavar loiça) WC serviço Andar: Acessível por escada esculturada em caracol, que lhe confere charme 2 Suítes, com roupeiros Acesso a um terraço Exterior Pátio com acessível pela cozinha Lavandaria Moradia com Ar Condicionado e caixilharia Oscilo-batente e estores térmicos e elétricos. A remodelação cuidada permitiu a obtenção de uma classificação energética 'B-'. Nota: Não tem garagem
AMI: 15797
Ref. Externa: 0775
Id: 1597092
Inicie sessão para guardar este imóvel e aceder à sua lista de favoritos em qualquer dispositivo.
4 Quartos
4 WCs
Área bruta : 277 m²
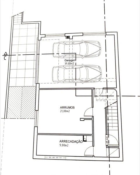
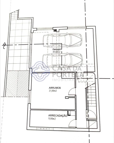
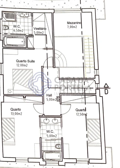
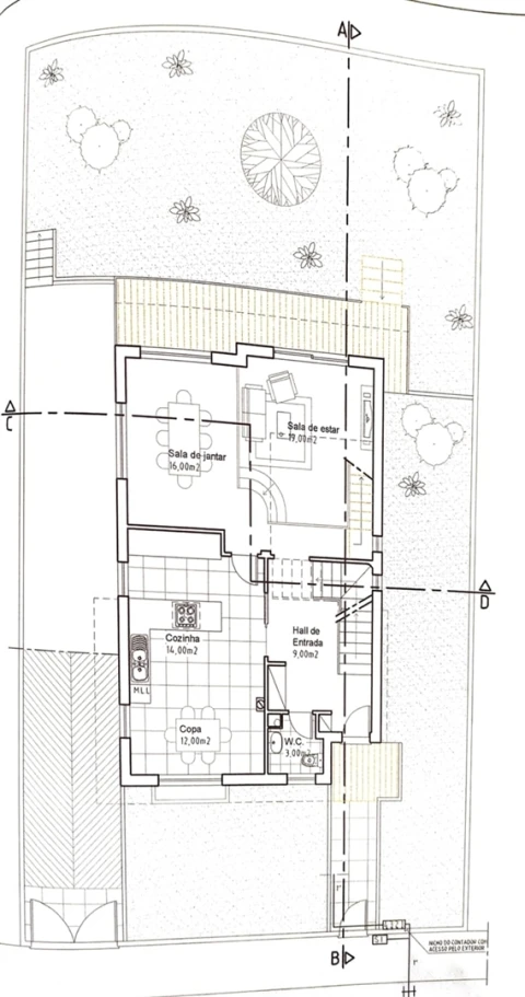
MORADIA NA COOPERATIVA DOS FUNCIONÁRIOS JUDICIAIS. Moradia T4 mais aproveitamento de sótão, de 2 frentes, com orientação solar nascente / poente. Inserida numa urbanização tranquila, com excelente localização, próxima à entrada do IC29/A43 e a 4 min do Porto. Na envolvente temos o Continente de São Cosme, Hospital Fernando Pessoa, o Centro Tecnológico 'Metyis', comércio, serviços, transportes e, futuramente, a futura estação Metro da Lagoa GDM A moradia desenvolve-se da seguinte forma: Cave: Garagem para 3 carros, com portões automáticos Acesso direto ao rés do chão Rés do chão: Sala com recuperador de calor Escritório / quarto com ligação ao pátio e jardim Cozinha com ligação ao pátio e jardim WC de serviço Andar: 1 Suite com roupeiro embutido e wc com base de duche 2 quartos com roupeiros embutidos WC de apoio aos quartos com banheira Sótão: Espaço polivalente (escritório / quarto), com luz direta WC de apoio com base de duche Área exterior: Pátio / jardim Telheiro com churrasqueira e forno a lenha Lavandaria Outras Características relevantes: - Ar Condicionado na Sala e Suíte - Aquecimento Eléctrico em toda a casa - Páineis Solares com Produção e Bateria
AMI: 15797
Ref. Externa: 0776
Id: 1597093
Inicie sessão para guardar este imóvel e aceder à sua lista de favoritos em qualquer dispositivo.
6 Quartos
3 WCs
Área útil : 290 m²
Moradia T6, de quatro frentes, inserida num lote de 760 m², localizada na Rua Luís de Camões, em Valbom, a poucos minutos do Palácio do Freixo e com rápidos acessos ao Porto. Com uma área bruta de construção de 350 m² e 290 m² de área útil, esta moradia destaca-se pelas dimensões generosas, excelente exposição solar e uma distribuição funcional, ideal para famílias numerosas ou para quem procura espaço, conforto e privacidade. Distribuição: Rés do chão: 2 quartos Áreas sociais amplas e bem iluminadas com sala e cozinha ambas com duas frentes e com ligação direta ao exterior e jardim Wc completo com luz direta 1.º piso: 4 quartos, um deles em suíte Casa de banho completa Com acesso ao sótão A moradia dispõe ainda de garagem fechada, zonas exteriores ajardinadas e espaço suficiente para lazer, jardim ou outros projetos futuros. A localização combina tranquilidade residencial com proximidade a serviços, comércio, escolas e vias rápidas, tornando esta propriedade uma solução versátil tanto para habitação própria como para quem procura um imóvel diferenciado numa zona em valorização.
AMI: 7917
Ref. Externa: 807261001
Id: 1591859
Inicie sessão para guardar este imóvel e aceder à sua lista de favoritos em qualquer dispositivo.
2 Quartos
2 WCs
Área bruta : 94 m²
Andar Moradia T2 renovado com 3 frentes, em Valbom, Gondomar. Conclusão prevista para Março 2026. Imóvel completamente reconstruído, composto por: - Open Space: Sala e Cozinha - Quarto c/ roupeiro - Suíte - 2 wcs (um na suíte) - Arrumo - 1 lugar estacionamento coberto (zona comum) Características em destaque: Revestida a capoto Caixilharia Alumínio termolacado térmico Vidros duplos Tetos falsos c/ focos LED Pré-instalação A/C Proximidade: Junta Freguesia / Farmácia / Bancos Escolas Todo tipo de comércio / restauração Venha Conhecer! Para mais informações, contacte-nos. A CityCasas é uma mediadora imobiliária devidamente autorizada pelo Instituto dos Mercados Públicos, do Imobiliário e da Construção (IMPIC), detentora da licença n.º 18846. Na CityCasas, acreditamos que encontrar a casa certa é muito mais do que uma transação, é um passo importante na construção do seu futuro. Por isso, oferecemos acompanhamento gratuito e totalmente personalizado com o compromisso de o guiar em cada decisão, com confiança, clareza e proximidade. Trabalhamos com parcerias sólidas e selecionadas junto de diversas entidades, para que tenha acesso às melhores oportunidades e condições do mercado, sem complicações e com total transparência. A nossa missão é simples: transformar cada cliente num parceiro de longa duração. Para nós, o momento da escritura não é o fim, mas o início de uma relação de confiança e tranquilidade. Queremos que se sinta seguro, valorizado e acompanhado, porque a sua satisfação é, para nós, a melhor forma de sucesso. Contacte-nos para agendar a sua visita ou solicitar mais informações. A nossa equipa experiente e dedicada está disponível todos os dias, pronta para o receber com o profissionalismo e a atenção que merece. CityCasas - Estamos sempre ao seu lado!
AMI: 18846
Ref. Externa: HAB_750
Id: 1591734
Inicie sessão para guardar este imóvel e aceder à sua lista de favoritos em qualquer dispositivo.
2 Quartos
2 WCs
Área bruta : 94 m²
Andar Moradia T2 renovado com 3 frentes, em Valbom, Gondomar. Conclusão prevista para Março 2026. Imóvel completamente reconstruído, composto por: - Open Space: Sala e Cozinha - Quarto c/ roupeiro - Suíte - 2 wcs (um na suíte) - Arrumo - 1 lugar estacionamento coberto (zona comum) Características em destaque: Revestida a capoto Caixilharia Alumínio termolacado térmico Vidros duplos Tetos falsos c/ focos LED Pré-instalação A/C Proximidade: Junta Freguesia / Farmácia / Bancos Escolas Todo tipo de comércio / restauração Venha Conhecer! Para mais informações, contacte-nos. A CityCasas é uma mediadora imobiliária devidamente autorizada pelo Instituto dos Mercados Públicos, do Imobiliário e da Construção (IMPIC), detentora da licença n.º 18846. Na CityCasas, acreditamos que encontrar a casa certa é muito mais do que uma transação, é um passo importante na construção do seu futuro. Por isso, oferecemos acompanhamento gratuito e totalmente personalizado com o compromisso de o guiar em cada decisão, com confiança, clareza e proximidade. Trabalhamos com parcerias sólidas e selecionadas junto de diversas entidades, para que tenha acesso às melhores oportunidades e condições do mercado, sem complicações e com total transparência. A nossa missão é simples: transformar cada cliente num parceiro de longa duração. Para nós, o momento da escritura não é o fim, mas o início de uma relação de confiança e tranquilidade. Queremos que se sinta seguro, valorizado e acompanhado, porque a sua satisfação é, para nós, a melhor forma de sucesso. Contacte-nos para agendar a sua visita ou solicitar mais informações. A nossa equipa experiente e dedicada está disponível todos os dias, pronta para o receber com o profissionalismo e a atenção que merece. CityCasas - Estamos sempre ao seu lado!
AMI: 18846
Ref. Externa: HAB_749
Id: 1591735
Inicie sessão para guardar este imóvel e aceder à sua lista de favoritos em qualquer dispositivo.
4 Quartos
4 WCs
Área bruta : 258 m²
Moradia T4 de quatro frentes, localizada em Jovim, Gondomar, inserida num terreno com 535m2. A 5 min do centro de Gondomar e a 1.1km da marginal do Rio Douro. A 10 min do Porto. Moradia constituída por cave, rés do chão, andar e aproveitamento de sótão. Imóvel composto por: Cave: Espaço com pé direito baixo. Rés-do-chão: Hall de entrada Sala com lareira e acesso a uma varanda. Cozinha de grande área, equipada com fogões a gás, elétrico e a lenha. Um quarto / escritório. Casa de banho completa, com banheira Lavandaria, com acesso ao exterior Andar: 1 Suíte com roupeiro embutido e acesso a uma varanda. Casa de banho da suite de grandes dimensões. 2 quartos, tendo um deles roupeiro embutido e varanda. Casa de banho completa de apoio aos quartos. Sótão: Espaço amplo, arrumos WC de serviço Exterior: Logradouro Terreno Poço Alpendre para aparcamento de viaturas. Em anexo, uma cozinha equipada com churrasqueira. Em anexo, habitação T1 (necessita de obras) Outras Características: Ar condicionado Aquecimento central em toda a casa, tanto a gás como através do fogão a lenha Carpintaria com madeiras de qualidade e em excelente estado
AMI: 15797
Ref. Externa: 0774
Id: 1580689
Inicie sessão para guardar este imóvel e aceder à sua lista de favoritos em qualquer dispositivo.
3 Quartos
Área bruta : 297 m²
Moradia T3 de Luxo com Piscina em Ermentão ✨Apresentamos esta exclusiva moradia T3, onde o design contemporâneo se alia ao conforto e à eficiência energética. Localizada numa zona residencial tranquila de Ermentão, foi pensada ao detalhe para proporcionar uma experiência de habitação distinta.Características de excelência: Piscina privada, ideal para momentos de lazer e privacidade Painéis solares, garantindo eficiência e sustentabilidade Interiores amplos, luminosos e com acabamentos de elevada qualidade Arquitetura moderna e linhas elegantes Excelente exposição solar Ambiente reservado e sofisticadoUma casa que reflete um estilo de vida exclusivo, onde cada detalhe conta."Encontramos a CHAVE dos teus SONHOS"!HB - Grupo Habinédita"Encontramos a CHAVE dos teus SONHOS"!________________________________________________________Comprar com o GRUPO HABINÉDITA é comprar com SEGURANÇA!Com mais de 20 anos de história, a nossa marca está presente em 4 mercados estratégicos, com lojas abertas ao público: Baixa do Porto, Gondomar, Vila Nova de Gaia e São João da Madeira.Ao escolher fazer negócio com o GRUPO HABINÉDITA, vais perceber que:- Terás um agente devidamente formado, activo e identificado com o produto;- Terás uma empresa interessada em fazer o melhor negócio para todas as partes;- Terás parceiros financeiros que encontrarão a melhor solução para a tua nova casa;Com uma estrutura composta por pessoas activas e devidamente formadas para as diversas funções, a equipa do GRUPO HABINÉDITA trata de todos os processos como se fossem o primeiro! Nada pode falhar nesta parceria e como tal todos os cuidados são poucos.RELAÇÃO: esta parceria terá de ter uma base sólida… CONFIANÇA. Vamos comunicar muito. Vamos entender o que procuras. Vamos, certamente, perceber as tuas expectativas. Vamos estar sempre contigo!BUROCRACIA: esquece! A equipa do GRUPO HABINÉDITA trata de tudo por ti. Temos na equipa uma advogada e uma Directora Processual, 100% disponíveis para tratar de toda a documentação. Todos os nossos processos são estudados ao pormenor para que a FELICIDADE máxima seja atingida com TRANQUILIDADE, no dia da escritura!ESCRITURA: Sejas proprietário ou comprador…esquece as preocupações de todo o processo. O SONHO está prestes a tornar-se em REALIDADE e tudo vai correr na PERFEIÇÃO! Tudo porque nós no GRUPO HABINÉDITA…"Encontramos a CHAVE dos teus SONHOS"
AMI: 13250
Ref. Externa: HBG1748
Id: 1580606
Inicie sessão para guardar este imóvel e aceder à sua lista de favoritos em qualquer dispositivo.
2 Quartos
2 WCs
Área útil : 90 m²
Se procura um lar onde conforto, sofisticação e bem-estar se unem em perfeita harmonia, estes exclusivos Andares de Moradia T2, disponíveis em rés-do-chão ou 1.º andar, são a escolha certa. Totalmente renovados e equipados, foram pensados ao detalhe para responder às exigências da vida moderna. O projeto é composto por dois andares de moradia, cuidadosamente distribuídos entre zona social e zona privativa. A área privada integra uma suite elegante e um quarto amplo e confortável, garantindo privacidade e tranquilidade. A zona social destaca-se pela sala de estar/jantar e cozinha em conceito open space, criando um ambiente fluido, luminoso e convidativo. A cozinha encontra-se totalmente equipada, aliando funcionalidade a um design contemporâneo. No exterior, o imóvel dispõe de dois lugares de garagem - cobertos e arrumos/lavandaria adicionais, assegurando comodidade e soluções práticas de organização — tudo pensado para elevar a qualidade de vida no dia a dia. Inseridos numa localização privilegiada, estes andares de moradia beneficiam de excelente acessibilidade, estando próximos de escolas, comércio, serviços e zonas de lazer. O rápido acesso à A43 facilita as deslocações, tornando a rotina mais simples e eficiente. Uma oportunidade única para quem valoriza qualidade, conforto e elegância, seja para habitação própria ou investimento seguro. ANDARES DE MORADIA T2 DISPONÍVEIS: • Ref.: 3435/1 — 1º Piso 90m² + Lugar de garagem + Arrumos - 319.000,00€ • Ref.: 3435/RC — R/Chão 90m² + Lugar de garagem + Arrumos - 319.000,00€ ZONA SOCIAL COMPOSTA POR: ✔Hall de entrada com distribuição funcional com fluidez entre os espaços ✔Cozinha e sala em conceito Open Space ✔Cozinha totalmente equipada ✔Casa de banho completa de apoio à zona comum e ao quarto ZONA PRIVADA COMPOSTA POR: ✔Hall dos quartos ✔Suíte + Quarto amplo e confortável, ambos equipados com armários embutidos ✔Casa de banho completa (suite) ZONA EXTERIOR COMPOSTO POR: ✔Lugar de garagem - coberto ✔Zona de Arrumos/ Lavandaria CARACTERÍSTICAS ✔Totalmente Renovada e Equipada ✔Isolamento Térmico (Capoto) e Acústico ✔Cozinha totalmente equipada ✔Tetos Falsos com projetores de leds ✔Pré-instalação de ar-condicionado ✔Janelas com vidro Duplo ✔Caixilharia em Alumínio com corte térmico ✔Pavimentos vinílicos e cerâmicos de alta resistência ✔Armários embutidos ✔Lugar de Garagem ✔Garagem com portão automático ✔Facilidade de estacionamento exterior IMPORTANTE: Os andares de moradia encontram-se em fase final de acabamentos, havendo ainda a oportunidade exclusiva de personalização das mobílias da cozinha, permitindo ao futuro proprietário adaptar o espaço ao seu estilo e às suas preferências pessoais. Nas proximidades podemos encontrar várias infraestruturas que proporcionam uma melhor qualidade de vida: ✔Bons acessos a vias rápidas (A43) ✔Fácil acessibilidade à rede de transportes públicos (Autocarro) ✔Hospital Escola da Universidade Fernando Pessoa ✔Centro De Saúde De Valbom ✔PSP - Esquadra de Valbom ✔Bombeiros de Valbom ✔Piscinas Municipais de Valbom ✔Passadiços de Gramido ✔Parque infantil de Ribeira de Abade ✔Praça de táxis ✔Postos de abastecimentos ✔Ginásios ✔Farmácias ✔Escolas/ Colégios/ Infantários ✔Supermercados ✔Todo o tipo de comércio e serviços Para além deste imóvel, dispomos de mais opções que de certeza vão de encontra aquilo que pretende. O SEU SONHO COMEÇA AQUI!
AMI: 9559
Ref. Externa: 3435
Id: 1576033
Inicie sessão para guardar este imóvel e aceder à sua lista de favoritos em qualquer dispositivo.
3 Quartos
4 WCs
Área útil : 442 m²
Moradia T3 à venda em Jovim/Gondomar Descubra o seu novo lar com esta moradia em Jovim, Gondomar. Localizada apenas a 2KM da IC29/A43 e 1KM do centro Gondomar (Souto), é a combinação perfeita de conforto, conveniência e uma vista de tirar o fôlego. Esta moradia conta com dois pisos, mais cave e sótão cuidadosamente distribuídos, o que oferece uma versatilidade incrível. Na cave poderá encontrar uma garagem espaçosa para 2 carros, uma Lavandaria com cerca de 20m2, e um salão tipo adega regional com recuperador de calor, e escadaria de acesso ao interior da moradia. No primeiro piso encontrará uma cozinha equipada, com ar condicionado, pronta para criar momentos especiais em família. A sala de estar e jantar aconchegante e iluminada, convida a momentos relaxantes, especialmente com o calor adicional proporcionado pelo recuperador de calor e Ar condicionado, com duas Janelas este espaço oferece a oportunidade perfeita para desfrutar do ar fresco e sol em diferentes momentos do dia. Encontrará também uma despensa e um WC de serviço. O hall de acesso aos quartos é o ponto de partida para descobrir o conforto dos mesmos. Com três quartos no total, sendo dois deles suíte, cada quarto é um convite para o descanso e tranquilidade. Os três quartos, dois deles sao suites, têm varanda e Ar Condicionado, um deles usufrui de closet amplo. Poderá ainda encontrar uma casa de banho completa, acrescentando um toque moderno e fresco ao ambiente. Ainda dispõe de um sótão Amplo com recuperador de calor e Ar Condicionado. No exterior, é recebido por um Jardim, proporcionando um toque especial ao mesmo. A churrasqueira com forno a lenha é o local perfeito para reunir amigos e familiares em convívios. Um segundo Jardim com poço e arvore de fruto, Limoeiro e Laranjeira, um detalhe encantador que acrescenta um toque tradicional ao ambiente. Para complementar esta propriedade única, conta ainda com uma garagem no exterior para um carro, proporcionando um espaço adicional. Em suma, esta moradia oferece não apenas uma casa, mas um estilo de vida. A vista deslumbrante sobre a serra de Valongo, criando uma atmosfera acolhedora e serena. Exterior: Garagem para 1 carro 2 Jardins Poço com água potável Interior: Cave Garagem para 2 carros Adega com salamandra Lavandaria com bomba de calor Piso 1 Hall Entrada Cozinha totalmente equipada 1 wc Despensa Sala de estar e jantar Piso 2 1 Suite com closet 1 Suite 1 Quarto 1 wc Sótão: Sala de estar ampla. com salamandra e ar condicionado Todas as divisões usufruem de Ar condicionado e pré-instalação aquecimento central Toda a casa tem alarme e vidros duplos laminados antifurto em caixilharia PVC. e persianas elétricas. Agende uma visita para explorar pessoalmente as muitas possibilidades e encantos que a propriedade tem a oferecer. Chave Nova Sede Características específicas • Moradia independente • 2 andares • 442 m² área bruta, 376 m² úteis • T3 • 4 casas de banho • Lote de 440 m² • Terraço e varanda • Lugar de garagem incluído no preço • Segunda mão/bom estado • Armários embutidos • Arrecadação • Orientação Norte, Sul, Este • Construído em 2002 • Aquecimento individual: Bomba de calor/frio Equipamento • Ar condicionado • Jardim Certificado energético ◦ Classe energética: D
AMI: 7142
Ref. Externa: SD/04557
Id: 1572204
Inicie sessão para guardar este imóvel e aceder à sua lista de favoritos em qualquer dispositivo.
6 Quartos
7 WCs
Área bruta : 1360 m²
Moradia de Luxo com Elevada Privacidade, Piscinas Interior e Exterior e Jardins Tropicais | Gondomar. . Esta moradia de caráter exclusivo destaca-se pela privacidade, pelos amplos espaços exteriores e pela atmosfera tranquila que oferece, apesar de estar a poucos minutos do centro de Gondomar e dos principais acessos ao Porto. Com uma implantação generosa, jardins maduros e duas piscinas (interior e exterior), esta propriedade proporciona uma experiência residencial única, ideal para quem procura conforto, tranquilidade e uma vivência de alto padrão.. . A moradia desenvolve-se de forma ampla e bem organizada, com as diferentes zonas articuladas para garantir circulação confortável, luminosidade e total privacidade entre áreas sociais e privadas.. . No exterior, os jardins cuidadosamente desenhados incluem uma diversidade de palmeiras, oliveiras e vegetação decorativa, criando um ambiente tropical e intimista, raro nesta zona. A piscina exterior enquadra-se harmoniosamente com as áreas de lazer e descanso, enquanto a zona de apoio conta com cozinha ao ar livre, solário, espaços de convívio e uma churrasqueira coberta, perfeitos para desfrutar em qualquer estação do ano.. . No interior, a moradia apresenta áreas sociais generosas e luminosas, com ligação direta aos jardins e terraços. As salas de estar e de jantar oferecem um ambiente fluido, complementado por uma cozinha gourmet totalmente equipada com eletrodomésticos Miele, ilha central, garrafeira e despensa, valorizada por materiais de excelência como madeira de Sucupira e granito negro Zimbabwe.. . A zona privada dispõe de 5 suites, todas com excelentes dimensões e conforto. A Master Suite distingue-se pelos 38 m2, terraço privativo de 40 m2, closet e casa de banho com Jacuzzi, proporcionando um verdadeiro espaço de retiro e relaxamento.. . A moradia inclui ainda piscina interior aquecida, banho turco, sala de cinema e diversas áreas dedicadas ao bem-estar e entretenimento.. . Ao nível da tecnologia e eficiência, a propriedade oferece sistema de domótica, alarme com monitorização remota, CCTV, painéis solares, rega automática e três furos de água, além de ar condicionado e aquecimento central (radiadores murais e de pavimento) apoiados por caldeira a gasóleo.. . A garagem, com capacidade para 13 viaturas, inclui infraestrutura preparada para carregamento de veículos elétricos.. . Com proximidade privilegiada aos principais serviços e pontos de interesse — a 10 minutos do Estádio do Dragão e da Marina do Freixo, 4 minutos do Parque Urbano de Gondomar, 5 minutos do Hospital Fernando Pessoa e a 20 minutos das praias de Matosinhos e do Aeroporto — esta moradia combina exclusividade, conveniência e uma qualidade de vida ímpar.
AMI: 26075
Ref. Externa: QRE000111/13387
Id: 1571255
Inicie sessão para guardar este imóvel e aceder à sua lista de favoritos em qualquer dispositivo.
6 Quartos
2 WCs
Área bruta : 162 m²
Identificação do imóvel: ZMPT584319Moradia em São Cosme, Gondomar – Com Potencial de Reabilitação ou DesenvolvimentoCaracterísticas Gerais- Localização: São Cosme, Gondomar- Prédio inserido em terreno com 742 m² de área total- Imóvel em propriedade total, com andares de utilização independenteComposição do Prédio:- Edifício composto por 2 pisos:- Rés-do-chão: espaço destinado a comércio- 1.º andar: habitação T3- Utilizações independentes, permitindo exploração autónoma de cada pisoEstado e Potencial:- Prédio com possibilidade de reabilitação, mantendo a estrutura existente- Alternativamente, possibilidade de demolição para execução do projeto já existente, com PIP aprovado (construção de 9 frações).- Solução ideal tanto para quem procura reabilitar como para investidores e promotores imobiliáriosEnquadramento Urbanístico:- Inserido em zona urbana consolidada- Bons acessos e proximidade a comércio, serviços e transportes públicosOportunidade de Investimento:- Versatilidade de opções: reabilitação ou novo desenvolvimento- Potencial de valorização significativa- Imóvel com enquadramento legal favorável para intervenção3 razões para comprar com a Zome+ acompanhamentoCom uma preparação e experiência única no mercado imobiliário, os consultores Zome põem toda a sua dedicação em dar-lhe o melhor acompanhamento, orientando-o com a máxima confiança, na direção certa das suas necessidades e ambições.Daqui para a frente, vamos criar uma relação próxima e escutar com atenção as suas expectativas, porque a nossa prioridade é a sua felicidade! Porque é importante que sinta que está acompanhado, e que estamos consigo sempre.+ simplesOs consultores Zome têm uma formação única no mercado, ancorada na partilha de experiência prática entre profissionais e fortalecida pelo conhecimento de neurociência aplicada que lhes permite simplificar e tornar mais eficaz a sua experiência imobiliária.Deixe para trás os pesadelos burocráticos porque na Zome encontra o apoio total de uma equipa experiente e multidisciplinar que lhe dá suporte prático em todos os aspetos fundamentais, para que a sua experiência imobiliária supere as expectativas.+ felizO nosso maior valor é entregar-lhe felicidade!Liberte-se de preocupações e ganhe o tempo de qualidade que necessita para se dedicar ao que lhe faz mais feliz.Agimos diariamente para trazer mais valor à sua vida com o aconselhamento fiável de que precisa para, juntos, conseguirmos atingir os melhores resultados.Com a Zome nunca vai estar perdido ou desacompanhado e encontrará algo que não tem preço: a sua máxima tranquilidade!É assim que se vai sentir ao longo de toda a experiência: Tranquilo, seguro, confortável e... FELIZ!Notas:1. Caso seja um consultor imobiliário, este imóvel está disponível para partilha de negócio. Não hesite em apresentar aos seus clientes compradores e fale connosco para agendar a sua visita.2. Para maior facilidade na identificação deste imóvel, por favor, refira o respetivo ID ZMPT ou o respetivo agente que lhe tenha enviado a sugestão.
AMI: 17432
Ref. Externa: ZMPT584319
Id: 1567810
Inicie sessão para guardar este imóvel e aceder à sua lista de favoritos em qualquer dispositivo.
6 Quartos
2 WCs
Área bruta : 117 m²
Identificação do imóvel: ZMPT583775Venda conjunta de duas moradias urbanas iguais, cada uma de tipologia T3, distribuídas por dois pisos (cave e rés do chão), inseridas em zona tranquila e residencial de Valbom, com vista desafogada sobre o rio Douro.A organização interior inclui três quartos, cozinha, WC e cave ampla para arrumos, com bom potencial de reabilitação.Os imóveis enquadram-se no âmbito do Simplex Urbanístico, facilitando processos de reabilitação, alteração ou valorização, constituindo uma excelente oportunidade para investimento ou projeto habitacional.Uma das moradias encontra-se atualmente ocupada ao abrigo de contrato de arrendamento vitalício, sendo a outra devoluta, condição relevante para análise de rentabilidade e estratégia de aquisição.Áreas de cada moradia:- Área total do terreno: 108 m²- Área de implantação do edifício: 58,5 m²- Área bruta de construção: 117 m²- Área bruta privativa: 58,5 m²- Área bruta dependente (cave): 58,5 m²Pontos de interesse na área envolvente:- Rio Douro / zona ribeirinha – aprox. 100 m- Passadiços e percursos pedonais do Douro – aprox. 200 m- Transportes públicos – aprox. 300 m- Cais / Marina de Valbom – aprox. 500 m- Supermercados e comércio local – aprox. 500 m a 1 km- Parque Urbano de Valbom – aprox. 700 m- Escolas e infantários – aprox. 1 km- Farmácias e serviços de saúde – aprox. 1,5 km- Centro de Gondomar – aprox. 3 km- Centro do Porto – aprox. 8 kmExcelente oportunidade de investimento numa localização privilegiada junto ao rio Douro, com forte potencial de valorização. Ligue já para mais informações!3 razões para comprar com a Zome+ acompanhamentoCom uma preparação e experiência única no mercado imobiliário, os consultores Zome põem toda a sua dedicação em dar-lhe o melhor acompanhamento, orientando-o com a máxima confiança, na direção certa das suas necessidades e ambições.Daqui para a frente, vamos criar uma relação próxima e escutar com atenção as suas expectativas, porque a nossa prioridade é a sua felicidade! Porque é importante que sinta que está acompanhado, e que estamos consigo sempre.+ simplesOs consultores Zome têm uma formação única no mercado, ancorada na partilha de experiência prática entre profissionais e fortalecida pelo conhecimento de neurociência aplicada que lhes permite simplificar e tornar mais eficaz a sua experiência imobiliária.Deixe para trás os pesadelos burocráticos porque na Zome encontra o apoio total de uma equipa experiente e multidisciplinar que lhe dá suporte prático em todos os aspetos fundamentais, para que a sua experiência imobiliária supere as expectativas.+ felizO nosso maior valor é entregar-lhe felicidade!Liberte-se de preocupações e ganhe o tempo de qualidade que necessita para se dedicar ao que lhe faz mais feliz.Agimos diariamente para trazer mais valor à sua vida com o aconselhamento fiável de que precisa para, juntos, conseguirmos atingir os melhores resultados.Com a Zome nunca vai estar perdido ou desacompanhado e encontrará algo que não tem preço: a sua máxima tranquilidade!É assim que se vai sentir ao longo de toda a experiência: Tranquilo, seguro, confortável e... FELIZ!Notas:1. Caso seja um consultor imobiliário, este imóvel está disponível para partilha de negócio. Não hesite em apresentar aos seus clientes compradores e fale connosco para agendar a sua visita.2. Para maior facilidade na identificação deste imóvel, por favor, refira o respetivo ID ZMPT ou o respetivo agente que lhe tenha enviado a sugestão.
AMI: 17432
Ref. Externa: ZMPT583775
Id: 1567750
Inicie sessão para guardar este imóvel e aceder à sua lista de favoritos em qualquer dispositivo.
5 Quartos
1 WCs
Área bruta : 172 m²
Identificação do imóvel: ZMPT583891Apresentamos esta moradia T5 renovada, situada em Valbom, numa rua tranquila e muito próxima do rio Douro e dos passadiços ribeirinhos, ideais para caminhadas e atividades ao ar livre.Com 172 m² de área útil e 117 m² de área bruta dependente, esta moradia distingue-se pelas áreas interiores generosas, excelente exposição solar nascente/poente e um confortável espaço exterior com anexo e churrasqueira.A casa dispõe de aquecimento central e recuperador de calor, garantindo conforto durante todo o ano.A cozinha encontra-se totalmente mobilada e equipada, pronta a ser utilizada.No piso de cave, conta com:- Garagem- Lavandaria- Sala multifuncional (sala de jogos, escritório ou zona de lazer)No piso 0, conta com:- sala- cozinha com despensa- casa de banho de serviçoNo piso 1, conta com:- 3 quartos- 1 suite- casa de banho completaO espaço exterior é ideal para momentos em família e convívios, oferecendo privacidade e funcionalidade.A localização é um dos grandes destaques: A 5 minutos do rio Douro Próxima de transportes públicos Bons acessos ao Porto e às principais vias para norte e sul do país Zona residencial tranquila, com qualidade de vidaUma excelente oportunidade para quem procura espaço, conforto e proximidade à cidade, num ambiente equilibrado entre natureza e acessos urbanos.Para mais informações, entre em contacto comigo!---3 razões para comprar com a Zome+ acompanhamentoCom uma preparação e experiência única no mercado imobiliário, os consultores Zome põem toda a sua dedicação em dar-lhe o melhor acompanhamento, orientando-o com a máxima confiança, na direção certa das suas necessidades e ambições.Daqui para a frente, vamos criar uma relação próxima e escutar com atenção as suas expectativas, porque a nossa prioridade é a sua felicidade! Porque é importante que sinta que está acompanhado, e que estamos consigo sempre.+ simplesOs consultores Zome têm uma formação única no mercado, ancorada na partilha de experiência prática entre profissionais e fortalecida pelo conhecimento de neurociência aplicada que lhes permite simplificar e tornar mais eficaz a sua experiência imobiliária.Deixe para trás os pesadelos burocráticos porque na Zome encontra o apoio total de uma equipa experiente e multidisciplinar que lhe dá suporte prático em todos os aspetos fundamentais, para que a sua experiência imobiliária supere as expectativas.+ felizO nosso maior valor é entregar-lhe felicidade!Liberte-se de preocupações e ganhe o tempo de qualidade que necessita para se dedicar ao que lhe faz mais feliz.Agimos diariamente para trazer mais valor à sua vida com o aconselhamento fiável de que precisa para, juntos, conseguirmos atingir os melhores resultados.Com a Zome nunca vai estar perdido ou desacompanhado e encontrará algo que não tem preço: a sua máxima tranquilidade!É assim que se vai sentir ao longo de toda a experiência: Tranquilo, seguro, confortável e... FELIZ!Notas:1. Caso seja um consultor imobiliário, este imóvel está disponível para partilha de negócio. Não hesite em apresentar aos seus clientes compradores e fale connosco para agendar a sua visita.2. Para maior facilidade na identificação deste imóvel, por favor, refira o respetivo ID ZMPT ou o respetivo agente que lhe tenha enviado a sugestão.
AMI: 17432
Ref. Externa: ZMPT583891
Id: 1567741
Inicie sessão para guardar este imóvel e aceder à sua lista de favoritos em qualquer dispositivo.
6 Quartos
4 WCs
Área bruta : 239 m²
Identificação do imóvel: ZMPT583603Excelente oportunidade de investimento em Valbom, situada na Rua dos Pescadores nº 232, a apenas 150 metros da marginal do Rio Douro.Trata-se de uma moradia multifamiliar composta por 4 habitações independentes, distribuídas da seguinte forma:- T1 - R/C- Composto por: Sala, arrumos, quarto, cozinha e wc;- 61,00m² área privativa- T1 - 1ºandar esquerdo- Composto por: Sala e cozinha, arrumos, quarto e wc;- 40,70m² área privativa- 3,00m² área dependente- T1 - 1º andar direito- Composto por: Sala, cozinha, quarto e wc (dependente)- 32,70m² área privativa- 3,00m² área dependente- T3 - 2º andar- Composto por: Sala, cozinha, hall, 3 quartos, banho e wc- 105,50m² área privativa- 3,00m² área dependenteÁreas Gerais:Área total do terreno: 512,00m²Área de implantação: 114,50m²Área bruta de construção: 248,90m²Área bruta dependente: 9,00m²Área bruta privativa: 239,90m²Beneficia de vistas desafogadas sobre o Rio Douro e de excelente exposição solar (nascente, sul e poente), fatores que aumentam significativamente o seu potencial de rentabilidade após requalificação.Inserido num lote de terreno com 512,00 m², este imóvel permite diferentes estratégias de investimento, arrendamento tradicional, arrendamento turístico (mediante licenciamento) ou revenda após obras.As habitações necessitam de obras gerais, sendo ideal para investidores ou para quem procura um projeto de reabilitação com elevado potencial.Nota importante: Uma das habitações encontra-se com contrato vitalício em vigor, com renda mensal de 150€.Um imóvel com localização privilegiada, vistas únicas e enorme potencial, ideal para investimento ou projeto de reabilitação.Agende já a uma visita e apresente a sua proposta.JT3 razões para comprar com a Zome+ acompanhamentoCom uma preparação e experiência única no mercado imobiliário, os consultores Zome põem toda a sua dedicação em dar-lhe o melhor acompanhamento, orientando-o com a máxima confiança, na direção certa das suas necessidades e ambições.Daqui para a frente, vamos criar uma relação próxima e escutar com atenção as suas expectativas, porque a nossa prioridade é a sua felicidade! Porque é importante que sinta que está acompanhado, e que estamos consigo sempre.+ simplesOs consultores Zome têm uma formação única no mercado, ancorada na partilha de experiência prática entre profissionais e fortalecida pelo conhecimento de neurociência aplicada que lhes permite simplificar e tornar mais eficaz a sua experiência imobiliária.Deixe para trás os pesadelos burocráticos porque na Zome encontra o apoio total de uma equipa experiente e multidisciplinar que lhe dá suporte prático em todos os aspetos fundamentais, para que a sua experiência imobiliária supere as expectativas.+ felizO nosso maior valor é entregar-lhe felicidade!Liberte-se de preocupações e ganhe o tempo de qualidade que necessita para se dedicar ao que lhe faz mais feliz.Agimos diariamente para trazer mais valor à sua vida com o aconselhamento fiável de que precisa para, juntos, conseguirmos atingir os melhores resultados.Com a Zome nunca vai estar perdido ou desacompanhado e encontrará algo que não tem preço: a sua máxima tranquilidade!É assim que se vai sentir ao longo de toda a experiência: Tranquilo, seguro, confortável e... FELIZ!Notas:1. Caso seja um consultor imobiliário, este imóvel está disponível para partilha de negócio. Não hesite em apresentar aos seus clientes compradores e fale connosco para agendar a sua visita.2. Para maior facilidade na identificação deste imóvel, por favor, refira o respetivo ID ZMPT ou o respetivo agente que lhe tenha enviado a sugestão.
AMI: 17432
Ref. Externa: ZMPT583603
Id: 1567711
Inicie sessão para guardar este imóvel e aceder à sua lista de favoritos em qualquer dispositivo.
4 Quartos
6 WCs
Área útil : 300 m²
Moradia T4 localizada em Jovim, na Rua de Cabanas, com terreno de 8382,70m2; A necessitar de obras de renovação, com projecto aprovado para Lar de Idosos, sendo uma boa oportunidade de investimento; Com 3 pisos, composta por: Cave com adega e arrumos; Rés do chão com 4 quartos e WC's; 1º andar com 4 quartos, WC'S, Sala, Cozinha e Varandas, 2 Garagens fechadas; Contacte-nos e marque a sua visita! Fazemos a gestão de todo o processo de financiamento sempre com as melhores condições do mercado. Se ainda não encontrou o imóvel com as características que necessita contacte-nos, temos imóveis em carteira que poderão ser uma solução e terá sempre a ajuda de um dos nossos profissionais! Se está a pensar em comprar, mas precisa primeiro de vender a sua casa, também o ajudamos nesse sentido, sempre sem exclusividade e com comissão ajustada! Não hesite em nos contactar!
AMI: 19157
Ref. Externa: 3251
Id: 1567651
Inicie sessão para guardar este imóvel e aceder à sua lista de favoritos em qualquer dispositivo.
4 Quartos
2 WCs
Área bruta : 247 m²
Moradia em banda com áreas fantásticas! O imóvel situa-se numa urbanização muito tranquila, exclusivamente de moradias, com uma excelente localização:. . Marina do Freixo - 1 Km. . Entrada para VCI / autoestradas - 1,5 km. . Escola 1º CEB - 400m. . Piscinas de Valbom - 650m. . Farmácia - 400m. . Transportes públicos - 400m. DESCRIÇÃO DA MORADIA:. - Piso -1: área total de 82,5m2. Garagem para 3 carros, generosa lavandaria, escritório e despensa/arrumos. - Piso 0: hall de entrada; sala comum com 38m2; com chão em madeira nobre (cambala), cozinha equipada com 12m2; wc de serviço e acesso ao exterior. - Piso 1: 4 quartos - quarto 1, suite (wc completo) com 14,5m2, varanda e roupeiro; quarto 2 c/ roupeiro (12m2); quarto 3 com 11m2; quarto 4 com 12m2. WC completo de apoio aos quartos.. - Piso 2: generoso salão com 27m2 revestido a madeira. Arrumos das zonas em que o pé direito é mais baixo. Pequeno terraço.. - Área exterior: pequeno jardim na frente da moradia; espaço exterior nas traseiras com cerca de 70m2 e churrasqueira. Acesso a partir da garagem e da cozinha. . A moradia está totalmente revestida com isolamento térmico e acústico (copoto). CE - C . Este imóvel encontra-se em bom estado de conservação, sendo necessário um pintura geral interior.. Para marcação de visitas por favor contactar +351 963 025 452..
AMI: 15391
Ref. Externa: MR0926/12314
Id: 1564648
Inicie sessão para guardar este imóvel e aceder à sua lista de favoritos em qualquer dispositivo.
3 Quartos
3 WCs
Área bruta : 288 m²
Moradia de Tipologia 3 renovada, de três frentes solares e terraço! Encontra-se localizada numa zona residencial em Valbom - Gondomar, com ótimos acessos ao Porto, Gaia, apenas a 1.8 Km do Freixo e da VCI. Nas proximidades encontramos ainda, comércio, escolas, hipermercados, transportes públicos. É o imóvel ideal para quem procura tranquilidade e qualidade de vida! Comum total de 288m² , destaca-se pelas vistas desafogadas e as boas áreas, pautam pela boa luminosidade em todas as suas divisões. A moradia encontra-se dividida: 1º andar: Sala com 46m², de duas frentes solares, recuperador de calor e varanda; Cozinha com excelente arrumação e totalmente equipada, com varanda e acesso a Terraço; Casa de banho de serviço. 2º Andar: Suíte com roupeiro embutido; Dois quartos, um deles com roupeiro embutido e varanda comum; Casa de Banho completa de apoio aos quartos. No piso inferior - Garagem e Área exterior: Garagem fechada com 49m²; Lavandaria e Casa de banho completa de apoio à zona exterior. Fantástico terraço, com Arrumos, Piscina e Churrasqueira, para momentos de lazer!! Como características principais: Portões automáticos; Tetos falsos com focos embutidos; Instalação de Ar condicionado; Recuperador de calor; Caixilharia com vidro duplo. Certificado energético: D Válido até 29/06/2035 Licença de Utilização: 36/85 emitida a 1985/03/29 Para mais informações, contacte a nossa equipa!
AMI: 14355
Ref. Externa: MM409/25VAL/CM1
Id: 1563037
Inicie sessão para guardar este imóvel e aceder à sua lista de favoritos em qualquer dispositivo.
3 Quartos
Área útil : 59 m²
Moradia para Restauro em Lote de 1.314 m² – Jovim, Gondomar Excelente oportunidade para viver ou investir! Moradia para restauro inserida num generoso lote de 1.314 m², localizada numa zona tranquila de Jovim, Gondomar, com ótimos acessos e proximidade a todo o tipo de serviços, comércio e vias rápidas. O terreno permite possibilidade de destaque, com viabilidade para construção de mais uma ou duas moradias, mantendo ainda a renovação da moradia existente — uma oportunidade rara para quem procura um projeto de valorização imobiliária com elevado potencial de retorno. Ideal para: ✔️ Habitação própria em zona calma e valorizada ✔️ Investidores e construtores ✔️ Projetos de reabilitação e desenvolvimento imobiliário Aqui encontra o equilíbrio perfeito entre tranquilidade, localização e rentabilidade. Não perca esta oportunidade única de transformar potencial em valor. ? Agende já a sua visita e venha conhecer este excelente investimento!
AMI: 16876
Ref. Externa: 11159
Id: 1558325
Inicie sessão para guardar este imóvel e aceder à sua lista de favoritos em qualquer dispositivo.
5 Quartos
2 WCs
Área útil : 304 m²
Exclusividade e Elegância na Margem do Douro: Moradiade Luxo T5 Localização Premium | Praia do Gramido Localizada num dos cenários mais privilegiados da região, esta moradia de luxo T5 redefine o conceito de bem-viver. Situada na primeira linha da Praia do Gramido, em Valbom, esta propriedade destaca-se pela sua arquitetura harmoniosa e por uma vista panorâmica e ininterrupta sobre o Rio Douro, garantindo um estilo de vida onde o conforto e a natureza se encontram em perfeita simbiose. Distribuição Funcional e Design de Interiores O imóvel foi concebido para oferecer uma experiência de habitação de alto padrão, onde a distinção dos espaços assegura total conforto: Área Social: Composta por uma sala de estar de atmosfera panorâmica e uma sala de jantar independente, ambas orientadas para a máxima valorização daluminosidade natural e da vista rio. Cozinha: Espaço de design moderno, totalmente equipado com tecnologia de vanguarda. Suítes e Aposentos: Quatro quartos com excelentes áreas, incluindo duas suítes. Aconfiguração inclui ainda um escritório versátil, adaptado às exigências profissionais contemporâneas. Wellness & Service: A moradia contempla um ginásio privativo, lavandaria independente e uma garagem fechada com generosa capacidade. Espaço Exterior: Um Refúgio Privativo O exterior foi desenhado para o lazer e a privacidade, apresentando: Piscina de Água Salgada: Sistema de tratamento por clorador de sal para máxima qualidade de água. Living Exterior: Jardim envolvente de baixa manutenção e uma zona de barbecue coberta, perfeitamente equipada para o entretenimento social em qualquer época do ano. Infraestrutura e Sistemas de Alta Gama A construção pauta-se pela utilização de materiais nobres e soluções técnicas de última geração: Conforto Térmico: Climatização integral via Ar Condicionado e Aquecimento Central. Segurança: Sistemas de videovigilância e alarme de intrusão. Automação: Estores elétricos e sistemas de domótica integrada. Enquadramento Geográfico e Acessibilidade A localização é um dos pilares de valorização deste imóvel, oferecendo oequilíbrio ideal entre a serenidade ribeirinha e a agilidade urbana: 4 minutos: Acesso à VCI e Ponte do Freixo (Nó de ligação A1, A3 e A4). 7 minutos: Centro da Cidade do Porto e Distrito de Negócios. Esta é uma solução imobiliária exclusiva, destinada a quem procura um ativo de elevada qualidade com uma vista sobre o Douro. Para mais informações ou marcação de visita, entre em contacto. ENGLISH Exclusivity and Elegance on the Banks of the Douro: 5-Bedroom Luxury Villa Premium Location | Gramido Beach Located in one of the most privileged settings in the region, this luxury 5-bedroom villa redefines the concept of high-end living. Situated on the frontline of Gramido Beach, in Valbom, this property stands out for its harmonious architecture and an uninterrupted panoramic view over the Douro River, ensuring a lifestyle where comfort and nature meet in perfect symbiosis. Functional Distribution and Interior Design The property was designed to offer a high-standard living experience, where the distinction of spaces ensures total comfort: Social Area: Comprising a living room with a panoramic atmosphere and an independent dining room, both oriented to maximize natural light and river views. Kitchen: Modern design space, fully equipped with cutting-edge technology. Suites and Quarters: Four bedrooms with excellent areas, including two suites. The layout also includes a versatile office, adapted to contemporary professional demands. Wellness & Service: The villa includes a private gym, independent laundry room, and a closed garage with generous capacity. Outdoor Space: A Private Retreat The exterior was designed for leisure and privacy, featuring: Saltwater Swimming Pool: Salt chlorinator treatment system for maximum water quality. Outdoor Living: Low-maintenance surrounding garden and a covered barbecue area, perfectly equipped for social entertainment at any time of the year. High-End Infrastructure and Systems The construction is characterized by the use of noble materials and state-of-the-art technical solutions: Thermal Comfort: Full climate control via Air Conditioning and Central Heating. Security: Video surveillance systems and intrusion alarm. Automation: Electric shutters and integrated home automation systems. Geographic Framework and Accessibility The location is one of the pillars of this property's value, offering the ideal balance between riverside serenity and urban agility: 4 minutes: Access to the VCI and Freixo Bridge (Connection hub for A1, A3, and A4). 7 minutes: Porto City Center and Business District. This is an exclusive real estate solution, intended for those seeking a high-quality asset with a view over the Douro. For more information or to schedule a visit, please get in touch. ;ID RE/MAX: 123551488-34
AMI: 7772
Ref. Externa: 123551488-34
Id: 1558206
Inicie sessão para guardar este imóvel e aceder à sua lista de favoritos em qualquer dispositivo.
4 Quartos
4 WCs
Área bruta : 253 m²
Exclusivo Sampaio Imobiliária! Moradia T4 localizada em Jovim, bem servida de serviços e comércio nas proximidades; 2 km do Intermarché e do Supermercado Santa Justa; 2,5 km do Rio Douro; 3,5 km da Ic29/A43; Com bons acessos à Estrada D. Miguel e à Marginal; Composta por: Rés-do-chão: Hall; Cozinha equipada; Sala com recuperador de calor e varanda; WC; 1º andar: Hall; 4 quartos com roupeiros embutidos, um deles suite e 2 com varanda; WC; Garagem fechada para 2 carros; Sótão com terraço, WC e arrumos; Alpendre com churrasqueira e forno a lenha; Jardim;
AMI: 19157
Ref. Externa: 3728
Id: 1556512
Inicie sessão para guardar este imóvel e aceder à sua lista de favoritos em qualquer dispositivo.
Estes agentes são especialistas nesta zona:
Inicie sessão para ocultar este imóvel das suas pesquisas e manter a sua lista de resultados organizada.
Guardar favoritos
Este imóvel foi guardados nos seus favoritos com sucesso.
Para poder guardar pesquisa deverá ter a sua sessão iniciada.
Caso não tenha uma conta, deverá criar uma.
A sua pesquisa foi guardada com sucesso!
© Copyright 2023 | CASACERTA. All rights reserved
Este site utiliza cookies. Ao navegar no site estará a consentir a sua utilização.
Para mais informações sobre os cookies pode consultar a
política de privacidade.