Lista
Comprar
Arrendar
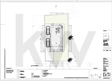
Área de terreno : 1200 m²
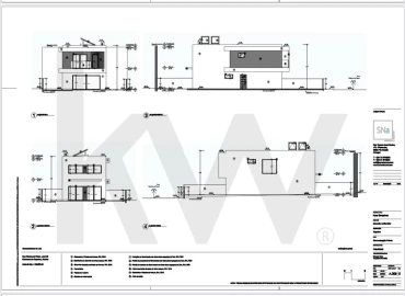
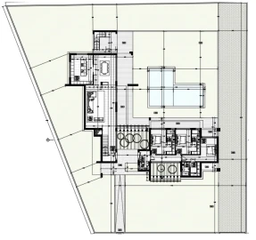
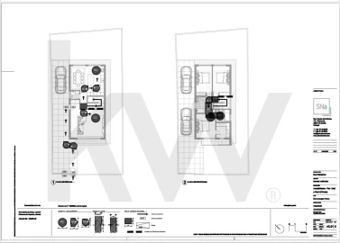
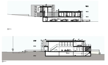
Excelente oportunidade para adquirir um terreno único e exclusivo na prestigiada Herdade da Aroeira, uma das mais conceituadas zonas residenciais da Grande Lisboa. Com uma área total de 1200 m², este terreno oferece o cenário ideal para concretizar o projeto da sua moradia de sonho, beneficiando da tranquilidade, segurança e sofisticação que caracterizam esta emblemática herdade. Detalhes do Terreno: Área Total: 1200 m² Área Bruta de Construção: 672 m² Área de Implantação: 224 m² Projeto Aprovado: Construção com comunicação prévia (consulte as imagens do projeto disponível) Pontos de Destaque: Localização privilegiada na Herdade da Aroeira Inserido num ambiente de beleza natural excecional Proximidade a praias deslumbrantes da Costa da Caparica Acesso direto a campos de golfe de renome internacional Condomínio de referência, com elevada valorização imobiliária A Herdade da Aroeira é reconhecida pela sua combinação única de natureza, lazer e privacidade, oferecendo uma qualidade de vida incomparável a poucos minutos de Lisboa. Este é um investimento exclusivo, perfeito para quem procura um terreno para construção personalizada, num dos locais mais requisitados e prestigiados da região. Não perca esta oportunidade única! Contacte-nos para mais informações ou para agendar uma visita ao local.
AMI: 12518
Ref. Externa: KWPT-015045
Id: 1710189
Inicie sessão para guardar este imóvel e aceder à sua lista de favoritos em qualquer dispositivo.
Área de terreno : 1440 m²
Lote de terreno na Herdade da Aroeira com vista para o campo de golf. O lote tem uma área de 1440m2, uma área bruta de construção de 445m2 e uma área útil de construção de 335m2. A Herdade da Aroeira é um condomínio exclusivo e luxuoso de 360 hectares, com uma localização única, rodeado de natureza, a 5 minutos da praia e a 25 kms de Lisboa, conta com 2 campos de golfe, 4 campos de ténis e escola de golfe, Clubhouse, parque infantil, hotel, zona comercial, que inclui supermercado, farmácia, café e restaurante, cabeleireiro, centro de yoga, centro médico e papelaria. O campo de Golf da Herdade da Aroeira foi desenhado por Frank Pennink e apelidado pela imprensa britânica de 'Wentworth de Lisboa', funde-se na perfeição com a natureza selvagem que o rodeia, tornando-o num percurso único em Portugal. Na Aroeira e zona envolvente, reina a tranquilidade e privilegia-se o contacto com a natureza, as caminhadas, os percursos pedestres e passeios de bicicleta, a observação da fauna e da flora característica desta região; a Arriba Fóssil, com as suas formas invulgares em tons dourados, completa este quadro de beleza única.
AMI: 8486
Ref. Externa: LANE_7273
Id: 1707923
Inicie sessão para guardar este imóvel e aceder à sua lista de favoritos em qualquer dispositivo.
Área de terreno : 1400 m²
Terreno para construção com 1.400 m², localizado na Herdade da Aroeira, uma zona residencial exclusiva e muito procurada na margem sul. Com uma vista desafogada sobre o campo de golfe, este lote situa-se numa localização privilegiada dentro da herdade, oferecendo um enquadramento natural e uma envolvência tranquila. Viver na Herdade da Aroeira é ter acesso a um ambiente seguro e reservado, com infraestruturas de qualidade, dois campos de golfe de 18 buracos, clubhouse, hotel, restaurantes, ténis e serviços de apoio, tudo integrado numa vasta área de pinhal junto à costa. A apenas 25 minutos de Lisboa e a poucos minutos das praias da Fonte da Telha e da Costa de Caparica, a Herdade da Aroeira combina proximidade à cidade com o conforto de uma vida junto à natureza. Este terreno representa uma excelente oportunidade para quem pretende construir uma moradia à medida, num dos locais mais valorizados da margem sul.
AMI: 3497
Ref. Externa: 35115
Id: 1707439
Inicie sessão para guardar este imóvel e aceder à sua lista de favoritos em qualquer dispositivo.
Área de terreno : 1253 m²
Terreno para construção com uma área de 1.253 m2, a 10mins da praia da Costa da Caparica. Ideal para quem procura investir num projeto residencial ,perto do mercado da Charneca da Caparica com fácil acesso a transportes, comércio e serviços. A localização estratégica e a possibilidade de construção de uma grande e espaçosa moradia tornam este terreno uma excelente opção para quem deseja valorizar o seu investimento. Este terreno com uma área de 1.253 m², permite a construção de uma moradia, com uma área bruta de construção de 626,50m2 com uma área de implantação de 375,90m². Conta com infraestruturas essenciais, incluindo água, eletricidade e saneamento. Apenas 20 minutos de Lisboa, em pouco tempo poderá afastar-se do ritmo acelerado da capital. Uma oportunidade única para construir a sua casa de sonho. A Castelhana agora é Dils. A Castelhana é um nome de referência no setor imobiliário português há mais de 25 anos e agora é Dils, uma empresa Italiana com mais de 50 anos de história e com escritórios em Milão, Roma e Amesterdão e agora em Lisboa, Porto, Algarve e Estoril. Em Lisboa, a nossa sede encontra-se no Chiado, um dos bairros mais emblemáticos e tradicionais da cidade. No Porto, estamos na icónica Avenida da Boavista. Na região do Algarve, temos um escritório junto à Marina de Vilamoura, e no Estoril, ao lado do famoso Casino do Estoril. Sob a marca Dils, somos especializados na consultoria para empresas, organizações e investidores institucionais, oferecendo serviços de compra, venda, arrendamento e desenvolvimento de imóveis residenciais. Estamos à sua disposição, com uma equipa dedicada para oferecer o melhor suporte no seu próximo investimento imobiliário. Quando o mundo muda, é hora de reescrever as regras. It's time to imagine your future space.
AMI: 3497
Ref. Externa: 31469
Id: 1707432
Inicie sessão para guardar este imóvel e aceder à sua lista de favoritos em qualquer dispositivo.
Área de terreno : 2519 m²
Terreno em gaveto com muro de vedação, 2.519 m2, com óptima localização inserido numa zona de pinhal de Aroeira a 2km da praia da Fonte da Telha, linha da Costa da Caparica excelente para construção de moradia para habitação própria, de férias ou investimento. O projecto de arquitecturas e especialidades foi já submetido na Câmara e aguarda-se sua aprovação. Acessibilidades 20Km de Lisboa 6KM das praias da Caparica 4 KM do Aroeira Golf Resort 8KM da Estação de comboios Fertagus (a 15 minutos de Lisboa) 5KM da A33 (auto-estrada Montijo-Charneca da Caparica) 8KM da A2 (auto-estrada Lisboa-Algarve) Aroeira Localização: Margem sul do Tejo, na freguesia de Charneca de Caparica e Sobreda Proximidade: Praia da Fonte da Telha, Verdizela, Belverde Acesso: Comboio Fertagus (Lisboa-Setúbal) e autocarros Moradias unifamiliares e geminadas Parque Metropolitano da Biodiversidade a 400m Trilhos para caminhadas, jogging e ciclismo Comodidades A Aroeira, sendo um local sereno e agradável, encontra-se próxima de comércio e serviços, nomeadamente hipermercados, ramo hoteleiro e restauração, cabeleireiro, saúde/beleza Lavandaria, loja de vinhos, papelaria, talho Osteopatia, colónia de férias, alojamento para férias Casas de repouso, lojas de piscinas, jardinagem, animais. Parque Desportivo Municipal, parque infantil, Ténis Colégio Internacional Guadalupe, Infantário Imaginário Aroeira Golf Resort (2 campos de 18 buracos) Hotel com SPA PRECISA DE FINANCIAMENTO? Beneficie de um serviço de Intermediação de Crédito rápido e eficaz! Temos Intermediários de Crédito devidamente autorizados pelo Banco de Portugal, tratamos de todo o seu processo bancário de forma a garantir as melhores soluções para si. PORQUÊ COMPRAR COM ARCADA? Gostamos de ajudar todos os clientes a encontrar o imóvel de sonho! É por isso que trabalhamos com cada cliente individualmente, dedicando o tempo necessário para entender o seu estilo de vida, necessidades e desejos. Apresentação das melhores soluções financeiras para aquisição do imóvel, tendo todo apoio no processo (se requerido); Presença na avaliação do imóvel; Apoio jurídico e marcação a realização do CPCV (Contrato Promessa Compra e Venda); Apoio na marcação e realização da escritura pública de compra e venda; Para mais informações, contacte! Pretendemos criar valor na vida de quem nos procura e superar as expectativas de quem confia em nós. Não perca esta oportunidade e marque já a sua visita!!!
AMI: 13500
Ref. Externa: 1210654/24 SX
Id: 1706770
Inicie sessão para guardar este imóvel e aceder à sua lista de favoritos em qualquer dispositivo.
Área de terreno : 5060 m²
Oportunidade única na Aroeira! Terreno com área total de 5.060 m2, para loteamento e construção de 3 prédios com 12 apartamentos. (PIP em processo de aprovação) Localização privilegiada e boa exposição solar à venda na Avenida do Mar, junto à Herdade da Aroeira. Este terreno está inserido numa zona de moradias, perto das praias, cada vez mais procurada, com ótimos acessos, apenas a 20km de Lisboa e muito próximo de todo tipo de comércios, restaurantes, escolas, transportes públicos, etc. Aroeira é ideal para quem quer viver perto da Capital Europeia mais ensolarada e em constante crescimento, tendo uma qualidade de vida única e incomparável ao lado das praias e da natureza. Localização : - 300m do supermercado Aldi Aroeira - 500m da prestigiada Herdade da Aroeira - 2,5km da praia da Fonte da Telha - 3km dos supermercados Pingo Doce e Lidl Belverde - 4,5km do supermercado Continente Charneca da Caparica - 11km do Hospital Cuf Almada - 14km do Hospital Garcia de Orta Almada - 20km de Lisboa Marque já a sua vista e venha descobrir esta oportunidade !
AMI: 16381
Ref. Externa: ADM123/24
Id: 1706062
Inicie sessão para guardar este imóvel e aceder à sua lista de favoritos em qualquer dispositivo.
Área de terreno : 280 m²
Terreno de 280m2, com uma área de construção de 168m2. Sobreda, que em 2003 se tornou freguesia extinta, ficando assim agregada à Charneca de Caparica, formando então, a União das Freguesias de Charneca de Caparica e Sobreda. Uma localidade histórica, em que a primeira referência aconteceu no século XIV, pelas mãos do grande cronista Fernão Lopes, sobre o ataque feito a Almada, levado a cabo por Nuno Álvares Pereira. Construção civil, comércio, carpintaria e metalurgia, são as principais atividades económicas desenvolvidas na localidade. Todos os dias realiza-se o Mercado do Levante, uma feira realizada no Mercado Municipal, que se situa no Centro Terciário da Vila. Tem como tradição anualmente, realizar uma a festa 'Saberes, Sabores e Memórias', no Solar dos Zagallo, que visa dar relevo às coisas boas, a terra tem para oferecer. O artesanato, nomeadamente a azulejaria, pintura a óleo, cana de bambu e cerâmica, também têm lugar na Sobreda. Uma freguesia que fica a 15 minutos da capital, e a 10 minutos das praias. Com bastantes zonas de comércio, com todas as comodidades e acessos perto. A Sobreda, espera por si! ---------------------------------------------------------------------- Land of 280m2, with a construction area of 168m2. Sobreda, which in 2003 became an extinct parish, thus being added to Charneca de Caparica, then forming the Union of Parishes of Charneca de Caparica and Sobreda. A historical location, in which the first reference took place in the fourteenth century, by the hands of the great chronicler Fernão Lopes, about the attack made on Almada, carried out by Nuno Álvares Pereira. Civil construction, commerce, carpentry and metallurgy are the main economic activities developed in the locality. Every day the Levante Market is held, a fair held at the Municipal Market, which is located in the Tertiary Center of the Village. It is a tradition to annually hold a party 'Knowledge, Flavors and Memories', at Solar dos Zagallo, which aims to highlight the good things the land has to offer. Handicrafts, namely tiles, oil painting, bamboo cane and ceramics, also take place in Sobreda. A parish that is 15 minutes from the capital, and 10 minutes from the beaches. With plenty of shopping areas, with all amenities and access nearby. Sobreda awaits you! ---------------------------------------------------------------------- Terrain de 280 m2, avec une superficie construite de 168 m2. Sobreda, qui en 2003 est devenue une paroisse éteinte, étant ainsi rattachée à Charneca de Caparica, formant alors l'Union des paroisses de Charneca de Caparica et Sobreda. Un lieu historique, dont la première référence a eu lieu au XIVe siècle, par le grand chroniqueur Fernão Lopes, à l'attaque menée contre Almada, menée par Nuno Álvares Pereira. La construction civile, le commerce, la menuiserie et la métallurgie sont les principales activités économiques développées dans la localité. Chaque jour, le Marché du Levante a lieu, une foire se tient au Marché Municipal, situé dans le centre tertiaire du village. Il est traditionnel d'organiser chaque année une fête « Connaissance, Saveurs et Souvenirs » au Solar dos Zagallo, qui vise à mettre en avant les bonnes choses que la terre a à offrir. Des objets artisanaux, notamment les carrelages, la peinture à l'huile, la canne en bambou et la céramique, ont également lieu à Sobreda. Une paroisse située à 15 minutes de la capitale et à 10 minutes des plages. Avec de nombreux espaces commerciaux, toutes les commodités et accès à proximité. Sobreda vous attend !
AMI: 5401
Ref. Externa: 17822
Id: 1704583
Inicie sessão para guardar este imóvel e aceder à sua lista de favoritos em qualquer dispositivo.
Área de terreno : 315 m²
Terreno com 315m2, situado em Vale de Cavala, a 5 minutos das belas praias da Costa de Caparica. Tem projeto de arquitetura aprovado e as especialidades já submetidas na Câmara Municipal. A área bruta de implantação é de 80m2 e a área bruta do 1º piso de 79m2, o que perfaz a área total de construção de 159m2. O projeto em questão é para uma moradia de 2 pisos, em que o piso do R/C é composto por sala e cozinha em open space com área total de 35m2, quarto com 11m2 e WC social de 4m2. O 1º andar é composto por 2 quartos de 11m2 cada, um WC de apoio com 5m2 e uma suite de 16m2 com closet de 6m2 e WC de 6m2. Tem zona de garagem para estacionamento de 1 viatura. Exposição Solar: Nascente - Poente Atualmente a Charneca de Caparica conta com uma diversidade de comércio, tanto local, como grandes superfícies. Conta com uma vasta afluência de transportes públicos e rápidos acessos. Dispõe também de ginásios e complexos desportivos, jardins públicos e bastantes áreas de lazer infantis. Inclui-se também nesta freguesia a zona privilegiada da 'Herdade da Aroeira', uma zona de muito procura pelos turistas e pelos habitantes locais, por ter os melhores campos de golfe, hotéis, zona comercial e por estar rodeada de natureza e a 2km das praias. Qualquer dos motivos para visitar a Charneca de Caparica, é ótimo! ----------------------------------------------------------------------------- Land with 315m2, located in Vale de Cavala, 5 minutes from the beautiful beaches of Costa de Caparica. It has an approved architectural project and the specialities already submitted to the City Council. The gross implantation area is 80m2 and the gross area of the 1st floor is 79m2, which makes the total construction area of 159m2. The project in question is for a 2-storey villa, in which the ground floor consists of a living room and kitchen in open space with a total area of 35m2, bedroom with 11m2 and social toilet of 4m2. The 1st floor consists of 2 bedrooms of 11m2 each, a support WC with 5m2 and a suite of 16m2 with dressing room of 6m2 and WC of 6m2. It has a garage area for parking 1 car. Sun Exposure: East - West Currently Charneca de Caparica has a diversity of commerce, both local and large supermarkets. It has a wide influx of public transport and quick access. It also has gyms and sports complexes, public gardens and plenty of children's play areas. Also included in this parish is the privileged area of 'Herdade da Aroeira', an area of great demand by tourists and locals, for having the best golf courses, hotels, shopping area and for being surrounded by nature and 2km from the beaches. Any reason to visit Charneca de Caparica, it's great! --------------------------------------------------------------------------------- Terrain de 315m2, situé dans la Vale de Cavala, à 5 minutes des magnifiques plages de la Costa de Caparica. Il dispose d'un projet architectural approuvé et des spécialités déjà soumises au conseil municipal. La surface brute d'implantation est de 80 m² et la surface brute du 1er étage est de 79 m², ce qui porte la surface totale de construction à 159 m². Le projet en question concerne une villa de 2 étages, dont le rez-de-chaussée comprend un salon et une cuisine en espace ouvert d'une superficie totale de 35 m2, une chambre de 11 m2 et des toilettes sociales de 4 m2. Le rez-de-chaussée comprend 2 chambres de 11 m2 chacune, une toilette de soutien de 5 m2 et une suite de 16 m2 avec cabine d'essayage de 6 m2 et des toilettes de 6 m2. Il y a un garage pour garer 1 voiture. Exposition au soleil : Est - Ouest Actuellement, Charneca de Caparica bénéficie d'une grande diversité de commerces, tant locaux que grands supermarchés. Elle bénéficie d'un large afflux de transports en commun et d'un accès rapide. Il dispose également de gymnases et de complexes sportifs, de jardins publics et de nombreuses aires de jeux pour enfants. On trouve également dans cette paroisse la zone privilégiée de « Herdade da Aroeira », une zone très demandée par les touristes et les habitants, pour ses meilleurs parcours de golf, hôtels, zones commerciales et pour être entourée de nature et à 2 km des plages. Toute raison de visiter Charneca de Caparica, c'est super
AMI: 5401
Ref. Externa: 15133
Id: 1704581
Inicie sessão para guardar este imóvel e aceder à sua lista de favoritos em qualquer dispositivo.
Área de terreno : 1583 m²
Terreno com 1583m2 à venda na prestigiada zona da Charneca da Caparica, apenas a 5 minutos das praias da Costa de Caparica. Este lote oferece um projeto aprovado para uma moradia de 2 pisos, com 5 quartos, ideal para quem procura um espaço moderno e funcional. A casa contará com uma sala e cozinha em open space, perfeita para momentos em família, 3 quartos no piso térreo e mais 2 no 1º andar, além de uma garagem para duas viaturas. O terreno inclui ainda uma piscina e um campo multiusos, proporcionando um estilo de vida ativo e ao ar livre. Exposição Solar: Nascente - Poente Próximo de comércio local, Pingo Doce, Serviços e Transportes Públicos. --------------------------------------------------------------------------------------------------- Land with 1583m2 for sale in the prestigious area of Charneca da Caparica, just 5 minutes from the beaches of Costa de Caparica. This plot offers an approved project for a 2-storey villa, with 5 bedrooms, ideal for those looking for a modern and functional space. The house will have an open space living room and kitchen, perfect for family moments, 3 bedrooms on the ground floor and 2 more on the 1st floor, as well as a garage for two cars. The land also includes a swimming pool and a multi-purpose court, providing an active and outdoor lifestyle. Sun Exposure: East - West Close to local shops, Pingo Doce, Services and Public Transport. --------------------------------------------------------------------------------------------------- Terrain de 1583m2 à vendre dans le prestigieux quartier de Charneca da Caparica, à seulement 5 minutes des plages de Costa de Caparica. Ce terrain offre un projet approuvé pour une villa de 2 étages, avec 5 chambres, idéale pour ceux qui recherchent un espace moderne et fonctionnel. La maison disposera d'un salon et d'une cuisine à aire ouverte, parfaits pour les moments en famille, de 3 chambres au rez-de-chaussée et 2 autres au 1er étage, ainsi que d'un garage pour deux voitures. Le terrain comprend également une piscine et un terrain polyvalent, offrant un style de vie actif et en plein air. Exposition au soleil : Est - Ouest Proche des commerces de proximité, de Pingo Doce, des services et des transports en commun.
AMI: 5401
Ref. Externa: 15672
Id: 1704573
Inicie sessão para guardar este imóvel e aceder à sua lista de favoritos em qualquer dispositivo.
Área de terreno : 300 m²
Terreno de 300m2, com projeto aprovado para construcão de uma moradia isolada T3, com garagem de 15m2, lavandaria de 4m2, wc de apoio ao exterior de 3m2 e piscina. O piso 0 é composto por um hall de 4m2; sala de 14m2 em open space com a cozinha de 18m2; wc social completo de 3m2 com janela; escritório de 20m2. O piso 1 é composto por uma suite de 16m2 com varanda de 8m2 e um wc de 9m2 completo e com janela; suite de 10m2 com um wc de 3m2 completo e com janela; suite de 10m2 com um wc de 3m2 completo e com janela. O piso 2 é composto por um terraço de 18m2 com um espaço coberto de 14m2. Taxas de construção já a pagamento. Atualmente a Charneca de Caparica tem imenso comércio, tanto local, como grandes superfícies. Dispõe também de ginásios e complexos desportivos. Conta com uma vasta afluência de transportes públicos, e acessos rápidos. Jardins públicos, com bastantes áreas de lazer infantis, o que também nos faz pensar numa zona bastante privilegiada 'Herdade da Aroeira'. Uma zona muito procurada por turistas por ter os melhores campos de golfe, hotéis, zona comercial, ou por estar rodeada de natureza e a 2km das praias. Qualquer dos motivos para visitar a Charneca de Caparica, é ótimo! -------------------------------------------------------------------------------- Land of 300m2, with an approved project for the construction of a 3 bedroom detached house, with a 15m2 garage, 4m2 laundry, 3m2 outdoor toilet and swimming pool. Floor 0 consists of a 4m2 hall; 14m2 living room in open space with 18m2 kitchen; complete social toilet of 3m2 with window; 20m2 office. The 1st floor consists of a 16m2 suite with an 8m2 balcony and a 9m2 bathroom complete with window; 10m2 suite with a 3m2 full bathroom and window; Suite of 10m2 with a bathroom of 3m2 complete and with window. The 2nd floor consists of a terrace of 18m2 with a covered space of 14m2. Construction fees already payable. Currently Charneca de Caparica has a lot of commerce, both local and large surfaces. It also has gyms and sports complexes. It has a vast influx of public transport, and quick access. Public gardens, with plenty of children's play areas, which also makes us think of a very privileged area 'Herdade da Aroeira'. An area much sought after by tourists for having the best golf courses, hotels, shopping area, or for being surrounded by nature and 2km from the beaches. Any reason to visit Charneca de Caparica, it's great! -------------------------------------------------------------------------------- Terrain de 300m2, avec un projet approuvé pour la construction d'une maison individuelle de 3 chambres, avec un garage de 15m2, une buanderie de 4m2, des toilettes extérieures de 3m2 et une piscine. L'étage 0 se compose d'un hall de 4m2 ; Salon de 14m2 en open space avec cuisine de 18m2 ; toilettes sociales complètes de 3m2 avec fenêtre ; Bureau de 20m2. Le 1er étage se compose d'une suite de 16m2 avec un balcon de 8m2 et une salle de bain de 9m2 avec fenêtre ; Suite de 10m2 avec une salle de bain complète de 3m2 et une fenêtre ; Suite de 10m2 avec une salle de bain de 3m2 complète et avec fenêtre. Le 2ème étage se compose d'une terrasse de 18m2 avec une surface couverte de 14m2. Frais de construction déjà payables. Actuellement, Charneca de Caparica a beaucoup de commerce, à la fois local et de grandes surfaces. Il dispose également de gymnases et de complexes sportifs. Il dispose d'un grand afflux de transports en commun et d'un accès rapide. Jardins publics, avec de nombreuses aires de jeux pour enfants, ce qui nous fait également penser à une zone très privilégiée « Herdade da Aroeira ». Une région très recherchée par les touristes pour avoir les meilleurs terrains de golf, hôtels, zones commerçantes, ou pour être entourée par la nature et à 2 km des plages. Quelle que soit la raison de visiter Charneca de Caparica, c'est génial !
AMI: 5401
Ref. Externa: 16822
Id: 1704570
Inicie sessão para guardar este imóvel e aceder à sua lista de favoritos em qualquer dispositivo.
Área de terreno : 402 m²
Terreno com 403m2, de gaveto, situado na Sobreda, a 5 minutos do Almada Fórum, 15 minutos das praias e 20 minutos de Lisboa. Está inserido numa zona com alvará de loteamento com as infraestruturas pagas, permitindo a quem queira construir fazer um projeto e submetê-lo por comunicação prévia. Próximo de comércio local, supermercados, serviços e transportes públicos. --------------------------------------------------------------------------------------------------- Land with 403m2, with corner, located in Sobreda, 5 minutes from Almada Forum, 15 minutes from the beaches and 20 minutes from Lisbon. It is located in an area with a subdivision permit with paid infrastructure, allowing anyone who wants to build to make a project and submit it by prior communication. Close to local shops, supermarkets, services and public transport. --------------------------------------------------------------------------------------------------- Terrain de 403m2, avec coin, situé à Sobreda, à 5 minutes du Forum d'Almada, à 15 minutes des plages et à 20 minutes de Lisbonne. Il est situé dans une zone avec un permis de lotissement avec une infrastructure payante, permettant à toute personne souhaitant construire de réaliser un projet et de le soumettre par communication préalable. Proche des commerces de proximité, des supermarchés, des services et des transports en commun.
AMI: 5401
Ref. Externa: 16261
Id: 1704568
Inicie sessão para guardar este imóvel e aceder à sua lista de favoritos em qualquer dispositivo.
Área de terreno : 5200 m²
Terreno na Aroeira com 5200m2, a 3 minutos da Praia da Fonte da Telha e do Golfe da Herdade da Aroeira, com a possibilidade de fazer um loteamento de moradias, em perfeita harmonia com a natureza. O local onde o mesmo se insere, encontra-se em fase final de requalificação de acessos e infraestruturas, com facilidade de acesso aos principais eixos viários com ligação a Lisboa, Almada e a Sul. Venha conhecer esta oportunidade de investimento! --------------------------------------------------------------------------------------------------- Land in Aroeira with 5200m2, 3 minutes from Fonte da Telha Beach and Herdade da Aroeira Golf, with the possibility of making a subdivision of villas, in perfect harmony with nature. The place where it is located is in the final stages of requalification of accesses and infrastructures, with easy access to the main road axes connecting to Lisbon, Almada and the South. Come and see this investment opportunity! --------------------------------------------------------------------------------------------------- Terrain à Aroeira de 5200m2, à 3 minutes de la plage de Fonte da Telha et du golf Herdade da Aroeira, avec la possibilité de faire un lotissement de villas, en parfaite harmonie avec la nature. L'endroit où il se trouve est en phase finale de requalification des accès et des infrastructures, avec un accès facile aux principaux axes routiers reliant Lisbonne, Almada et le sud. Venez voir cette opportunité d'investissement !
AMI: 5401
Ref. Externa: 14507
Id: 1704565
Inicie sessão para guardar este imóvel e aceder à sua lista de favoritos em qualquer dispositivo.
Área de terreno : 1307 m²
Excelente oportunidade para adquirir um terreno único e exclusivo na prestigiada Herdade da Aroeira, uma das mais conceituadas zonas residenciais da Grande Lisboa. Projeto aprovado para uma moradia T6 Sublime e Exclusiva com ABC: 538,15 m2, ABP: 289,66 m2, ABD: 248,49 m2, composta de cave, r/c e 1º andar, piscina infinita de 72,5 m2 e excelente exposição solar com todas as assoalhadas viradas a Sul. Moradia absolutamente extraordinária, onde a sofisticação, o conforto e a exclusividade se unem de forma harmoniosa. Inserida num cenário de tranquilidade e requinte, esta propriedade destaca-se por uma arquitetura contemporânea e uma distribuição de espaços pensada ao detalhe. Com excelentes áreas em todas as assoalhadas, esta moradia oferece uma fluidez perfeita entre os ambientes, promovendo conforto, funcionalidade e privacidade. Todas as divisões estão viradas a sul, beneficiando de uma exposição solar excecional ao longo de todo o dia, o que garante luminosidade natural e uma envolvência acolhedora em todos os espaços. O jardim magnífico, envolvente e cuidado, é um convite ao relaxamento, oferecendo um refúgio de serenidade e bem-estar. No exterior, destaca-se ainda a piscina infinita, que se funde com a paisagem, proporcionando momentos únicos de lazer. Para complementar esta proposta exclusiva, a moradia dispõe de uma garagem de grandes dimensões, ideal para quem valoriza espaço e comodidade. Mais do que uma casa... é um verdadeiro estilo de vida, onde cada detalhe foi pensado para proporcionar o máximo de qualidade, privacidade e elegância. Cave: Garagem de 80m2 | Zona de 83,5 m2 com possibilidade de várias utilizações, como ginásio, sala de cinema, sala de jogos, etc. | Lavandaria 13,5 m2 | I.S. 4 m2 | Pátio 20 m2 | Área técnica 22 m2 | R/C: Sala com cozinha em open space de 78 m2 | 4 suites | escritório | I.S. social | Bengaleiro | 1º andar: Master suite de 33m2 com walking closet | I.S. de 10m2 | solário de 63 m2 | terraço de 28 m2 | Exterior: Piscina infinita de 72,5 m2 | Magnifico jardim | Cozinha | Barbecue | Forno de lenha | I.S. apoio à piscina| Viva o luxo. Experimente a exclusividade. Esta não é apenas uma moradia é uma declaração de elegância, conforto e prestígio. Entre em contacto connosco para mais informações e descubra como esta propriedade pode tornar-se o seu próximo investimento de vida. As oportunidades verdadeiramente excecionais são raras. Esta é uma delas. O Condomínio da Herdade da Aroeira localiza-se apenas a 600 metros da praia e a 15 minutos de Lisboa. Tranquilidade e exclusividade são as palavras que caracterizam este Condomínio, servido por Campo de Golf, Hotel, Piscina, Lagos, zona Comercial. A Herdade da Aroeira possui 350 hectares, milhares de pinheiros e vários lagos. Com dois Campos de Golfe de 18 buracos, escola de golfe, um club house com restaurante, loja de golfe, moradias e apartamentos, piscina tropical, quatro campos de ténis, parque infantil, zona comercial com diversos serviços e comércio. A Herdade da Aroeira beneficia de um microclima que permite a prática do golfe durante todo o ano, oferecendo um desafio estimulante a jogadores de qualquer nível. Inaugurado em 1973, o campo de 18 buracos de campeonato Aroeira I, foi desenhado pelo Arquiteto Frank Pennick, é considerado pelos especialistas, como um dos melhores campos da Europa. Consta na lista dos 100 melhores campos Europeus. A mediação na compra, na venda e no arrendamento de imóveis, em consonância com um serviço de excelência, profissional e de qualidade, são os pilares da Portugal Investe. Existimos há mais de 20 anos com o mesmo propósito, a Satisfação dos nossos Clientes, ser o seu parceiro de confiança, que o acompanha no mundo da mediação imobiliária. Sabemos escutá-lo e estamos permanentemente atento às suas necessidades. Sensíveis aos seus desejos, os nossos profissionais colocam ao seu dispor um conjunto de soluções adequadas às suas necessidades específicas, quer na compra, venda ou arrendamento de um imóvel, sempre regidos pelos princípios de transparência, ética, sigilo e excelência. A dinâmica do mercado imobiliário requer uma grande quantidade de trâmites legais, pelo que deve ser acompanhado por profissionais especializados, diligentes e credíveis. Pode encontrá-los na Portugal Investe - Mediação Imobiliária. Portugal Investe - AMI 2165
AMI: 1028
Ref. Externa: 0090-24
Id: 1703974
Inicie sessão para guardar este imóvel e aceder à sua lista de favoritos em qualquer dispositivo.
Área de terreno : 1484 m²
Lote de terreno na Herdade da Aroeira com 1.483,87m2. O valor indicado é o preço de venda apenas do lote de terreno. Imagem meramente ilustrativa da possibilidade de construção neste lote. Zonas onde dispomos de lotes para construção com alvará de loteamento CAMARA MUNICIPAL DE ALMADA Américo Piedade Aroeira Casal do Poço Chão da Viúva Funchalinho - Quinta de Baixo Funchalinho - Quinta de Santana Herdade Aroeira Lugar da Alagoa - Casal das Bouças Marco Cabaço Mário Casimiro Marisol Pinheirinho Quinta da Brieira - Vale Cavala Quinta da Carcereira Quinta da Estrela - Casal das Casas Velhas Quinta da Genovesa - Sobreda Quinta da Mafalda Quinta das Areias Quinta das Chinelinhas Quinta das Rabanas Quinta de S. Gabriel Quinta de S. João - Sobreda Quinta de Santana Quinta do Baralho Quinta do Chiado - Quinta S. Nicolau Quinta do Francelino - Vale Fetal Quinta do Gil - Quinta do Alexandrino Quinta do Lagar Quinta do Pedro Manso - Vale Mourelos Quinta do Sacouto Quinta Santo António da Romeira Quinta Vale de Grou Quinta Vale Flor de Baixo Quinta Vale Mourelos Quintinhas Vale Cavala Vale Fetal CAMARA MUNICIPAL DO SEIXAL Belverde Foros de Catrapona Pinhal Conde da Cunha Pinhal General Quinta da Americana Quinta da Queimada 1 - Alvará concluído em breve. Quinta das Laranjeiras Quinta de Valadares Quinta do Tomé Quinta dos Eucaliptos Redondos Vale Boeiro - Marisol Verdizela Vila Alegre
AMI: 8027
Ref. Externa: GT22072
Id: 1703101
Inicie sessão para guardar este imóvel e aceder à sua lista de favoritos em qualquer dispositivo.
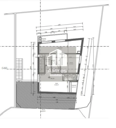
Área de terreno : 1640 m²
Lote com 1640 m2 na Herdade da Aroeira vista Golf. Com projeto Aprovado para Moradia T4 com AI 243m2 e ABC 309m2.
AMI: 8027
Ref. Externa: DT25005
Id: 1703097
Inicie sessão para guardar este imóvel e aceder à sua lista de favoritos em qualquer dispositivo.
Área de terreno : 1483 m²
Lote de terreno na Herdade da Aroeira com 1.483,87m2. AI - 20% ABC - 20%
AMI: 8027
Ref. Externa: DT25045
Id: 1703082
Inicie sessão para guardar este imóvel e aceder à sua lista de favoritos em qualquer dispositivo.
Área de terreno : 2500 m²
Lote urbano com 2500 m2, na Aroeira, Charneca de Caparica. Para construção de uma moradia térrea geminada PROJETO EM APROVAÇÃO Área total do terreno: 2.500 m2 Área bruta de construção: 320 m2 Boa localização, zona residencial em desenvolvimento, a 5 minutos da praia da Fonte da Telha e a 10 minutos da Costa de Caparica. A Realiza é Intermediário de Crédito devidamente autorizado pelo Banco de Portugal. Fazemos a gestão de todo o seu processo de financiamento bancário.
AMI: 15163
Ref. Externa: 12828
Id: 1702872
Inicie sessão para guardar este imóvel e aceder à sua lista de favoritos em qualquer dispositivo.
Área de terreno : 634 m²
Excelente oportunidade de investimento na Charneca da Caparica, zona da Aroeira, uma das áreas residenciais mais procuradas da Margem Sul, conhecida pela tranquilidade, proximidade às praias e forte valorização imobiliária. Trata-se da venda conjunta de dois terrenos urbanos, com 317 m² cada, totalizando 634 m² de área de terreno. No local existe atualmente uma edificação não licenciada, permitindo diferentes estratégias de investimento, como reabilitação ou desenvolvimento de novo projeto habitacional. Existe projeto para construção de duas moradias independentes com piscina, tipologia muito procurada no mercado residencial da região. A localização destaca-se por ser residencial, calma e familiar, próxima de colégios, supermercados, comércio local, transportes e diversos serviços. Encontra-se também a poucos minutos das praias da Costa da Caparica e muito próxima da Herdade da Aroeira, uma das zonas mais valorizadas da região. A zona oferece excelente qualidade de vida, combinando proximidade ao mar, natureza e bons acessos a Lisboa, tornando este imóvel particularmente atrativo para desenvolvimento imobiliário. Principais características: Dois terrenos urbanos vendidos em conjunto Área total de 634 m² Moradia não licenciada Potencial para construção de duas moradias independentes Possibilidade de moradias com piscina Localização próxima da Aroeira e Costa da Caparica Zona residencial tranquila e valorizada Próximo de escolas, comércio, serviços e transportes Condições de venda: Negócio direcionado preferencialmente a investidores ou construtores, com venda a pronto pagamento. Uma excelente oportunidade para quem procura desenvolver um projeto habitacional numa das zonas mais valorizadas da Charneca da Caparica.
AMI: 9532
Ref. Externa: 10170
Id: 1701884
Inicie sessão para guardar este imóvel e aceder à sua lista de favoritos em qualquer dispositivo.
Área de terreno : 524 m²
Terreno Urbano com Projeto para Moradia Unifamiliar - Almada Excelente oportunidade para construir a casa dos seus sonhos! Apresentamos este terreno urbano com 524,30 m², já com enquadramento urbanístico definido para habitação unifamiliar, ideal para quem procura tranquilidade, privacidade e qualidade de vida, sem abdicar da proximidade aos principais serviços e acessos. O lote permite a construção de uma moradia de 2 pisos acima da cota de soleira, com possibilidade de cave (garagem e/ou arrumos, mediante justificação da topografia), respeitando uma altura máxima de fachada de 6,50 m. A área de implantação do edifício é de 157,29 m², com uma área bruta de construção de 314,58 m², de acordo com o índice de construção de 0,60 (não ultrapassando os 320 m²), proporcionando um excelente equilíbrio entre espaço interior e áreas exteriores. O projeto contempla: 1 fogo (moradia unifamiliar) 2 lugares de estacionamento no interior do lote Percentagem de ocupação do lote: 30% Implantação integrada com o enquadramento envolvente Cumprimento integral do RUMA e restantes regulamentos municipais O terreno passou a urbano em dezembro de 2021 e encontra-se apto para licenciamento, mediante apresentação da certidão predial, conforme exigido. Uma oportunidade única para desenvolver uma moradia moderna e personalizada, numa zona em crescimento do concelho de Almada perfeita tanto para habitação própria como para investimento. Para mais informações ou agendamento de visita, não hesite em contactar.
AMI: 9585
Ref. Externa: L1201/26
Id: 1699999
Inicie sessão para guardar este imóvel e aceder à sua lista de favoritos em qualquer dispositivo.
Área de terreno : 1120 m²
Inserido na Herdade da Aroeira, encontramos este terreno com 1120m2, com uma área de construção de 284m2. A Aroeira é uma localidade na margem sul do rio Tejo, mais propriamente na freguesia de Charneca de Caparica. Inserida num vasto pinhal, o Pinhal da Aroeira, na sua envolvente, ficam as praias da Fonte da Telha, as praias da Costa da Caparica e a a Mata Nacional dos Medos. A Herdade da Aroeira fica a 25km do centro de Lisboa e a apenas 600 metros da praia, é um dos maiores complexos residenciais e de golfe do país. Um local sossegado, seguro, confortável e verde, ideal para habitação permanente ou para fins de semana em família.
AMI: 12981
Ref. Externa: KWPT-028697
Id: 1685996
Inicie sessão para guardar este imóvel e aceder à sua lista de favoritos em qualquer dispositivo.
Estes agentes são especialistas nesta zona:
Inicie sessão para ocultar este imóvel das suas pesquisas e manter a sua lista de resultados organizada.
© Copyright 2023 | CASACERTA. All rights reserved
Guardar favoritos
Este imóvel foi guardados nos seus favoritos com sucesso.
Para poder guardar pesquisa deverá ter a sua sessão iniciada.
Caso não tenha uma conta, deverá criar uma.
A sua pesquisa foi guardada com sucesso!
Este site utiliza cookies. Ao navegar no site estará a consentir a sua utilização.
Para mais informações sobre os cookies pode consultar a
política de privacidade.