Voltar
Terreno para Venda em Colares Foto 1
Terreno para Venda em Colares Foto 2
Terreno para Venda em Colares Foto 3
Terreno para Venda em Colares Foto 4
Terreno para Venda em Colares Foto 5

Terreno para Venda em Colares

1.800.000 €

Tipo
Terreno
Negócio
Venda
Condição
Para Obras
Certificado Energético
Não aplicável
Área do Terreno
5760 m²

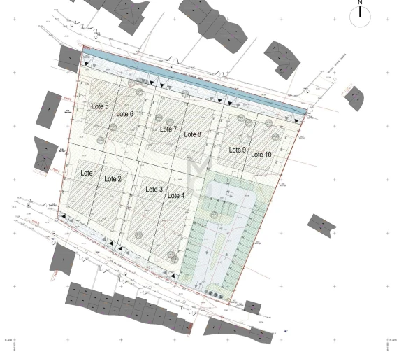
Terreno de 5.760 m² com PIP aprovado para loteamento de 10 moradias

Terreno de 5.760m2 com PIP para Loteamento de 10 moradias, aprovado pela CM Sintra em Junho 2024.

A área total do terreno é de 5.760m², estando aprovada a divisão em 10 diferentes lotes de terreno para construção de moradias, com uma área total de 3.905m2. Estão previstos 1.855m2 para cedências de arruamentos, passeios, estacionamentos , espaços verdes e infra-estruturas complementares.

Cada um dos lotes previstos permite a construção de uma moradia geminada, com uma área bruta de construção máxima total de 1900m2 (para o conjunto dos lotes), distribuída por dois pisos acima do solo e uma área de implantação de 1100m2, coincidindo com a área permitida de construção abaixo do solo.

O terreno beneficia de acesso por duas ruas, ambas estão servidas de rede de electricidade, rede de águas e rede de telecomunicações. Existe igualmente rede de saneamento a sul, permitindo a ligação de uma rede local que sirva os lotes a norte de forma gravítica através cedências de passagem.

Consultar os quadros nas fotografias para mais informação.

A informação apresentada não é vinculativa e deverá ser sempre confirmada.

Localização

Colares, Sintra, Lisboa

Informação do anúncio

ID do anúncio 1449820
Referência Externa TER_10225
Atualizado em 05/11/2025 03:17:18
Miriam Guerreiro AMI 17356
Referência do imóvel: TER_10225
Phone
Chamada para a rede móvel nacional
Miriam Guerreiro AMI 17356
Referência do imóvel: TER_10225
Phone
Chamada para a rede móvel nacional
1 / 25
Terreno para Venda em Colares Foto 1
Terreno para Venda em Colares Foto 2
Terreno para Venda em Colares Foto 3
Terreno para Venda em Colares Foto 4
Terreno para Venda em Colares Foto 5
Terreno para Venda em Colares Foto 6
Terreno para Venda em Colares Foto 7
Terreno para Venda em Colares Foto 8
Terreno para Venda em Colares Foto 9
Terreno para Venda em Colares Foto 10
Terreno para Venda em Colares Foto 11
Terreno para Venda em Colares Foto 12
Terreno para Venda em Colares Foto 13
Terreno para Venda em Colares Foto 14
Terreno para Venda em Colares Foto 15
Terreno para Venda em Colares Foto 16
Terreno para Venda em Colares Foto 17
Terreno para Venda em Colares Foto 18
Terreno para Venda em Colares Foto 19
Terreno para Venda em Colares Foto 20
Terreno para Venda em Colares Foto 21
Terreno para Venda em Colares Foto 22
Terreno para Venda em Colares Foto 23
Terreno para Venda em Colares Foto 24
Terreno para Venda em Colares Foto 25
Clicky