Terreno para Venda em Alvor
545.000 €
Tipo
Terreno
Negócio
Venda
Área do Terreno
200 m²
Terreno para construção em Alvor
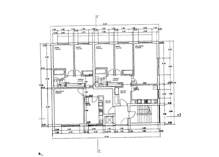
Lote para Construção de Prédio com 6 Pisos e 12 Apartamentos T2 – Urbanização das Sesmarias, Alvor
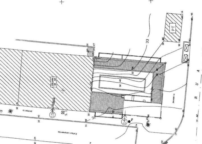
Apresenta-se este lote urbano com 200 m², localizado na Rua das Tílias, Urbanização das Sesmarias, Alvor, numa zona residencial consolidada, com bons acessos e excelente potencial de valorização.
De acordo com o alvará de loteamento, o terreno permite:
• Área de implantação: 200 m²
• Área bruta de construção total: 1.200 m²
• Número máximo de pisos: 6 + cave para estacionamentos,
• Número total de fogos: 12 apartamentos T2 (possibilidade de alteração de tipologias)
A distribuição prevista contempla dois apartamentos T2 por piso, com as seguintes áreas:
• T2 Esquerdo: área bruta 92,53 m² | área útil 77,78 m² | duas frentes com varandas a Nascente e Poente
• T2 Direito: área bruta 84,26 m² | área útil 70,83 m² | orientação Nascente/Sul, com varanda a Nascente
Localização
Situado numa zona residencial tranquila e com boa envolvente urbana, este lote beneficia de excelente exposição solar e proximidade ao centro de Alvor, às praias, comércio local e serviços essenciais.
A Urbanização das Sesmarias é uma das áreas mais procuradas de Alvor para investimento em habitação permanente ou turística, pela sua localização estratégica entre Portimão, Alvor e a EN125.
Oportunidade de investimento
Com potencial para desenvolvimento de edifício residencial de 6 pisos e 12 fogos, este lote constitui uma excelente opção para promotores ou investidores que procuram um projeto com proximidade ao litoral e elevada procura habitacional e turística na região de Alvor.
Na iad partilhamos negócios com qualquer consultor ou agência imobiliária. Promovemos os imoveis em mais de 200 portais imobiliários nacionais e internacionais. Se é profissional do sector e tem um cliente comprador qualificado, contacte-me e agende a sua visita.
#ref: 745394
Apresenta-se este lote urbano com 200 m², localizado na Rua das Tílias, Urbanização das Sesmarias, Alvor, numa zona residencial consolidada, com bons acessos e excelente potencial de valorização.
De acordo com o alvará de loteamento, o terreno permite:
• Área de implantação: 200 m²
• Área bruta de construção total: 1.200 m²
• Número máximo de pisos: 6 + cave para estacionamentos,
• Número total de fogos: 12 apartamentos T2 (possibilidade de alteração de tipologias)
A distribuição prevista contempla dois apartamentos T2 por piso, com as seguintes áreas:
• T2 Esquerdo: área bruta 92,53 m² | área útil 77,78 m² | duas frentes com varandas a Nascente e Poente
• T2 Direito: área bruta 84,26 m² | área útil 70,83 m² | orientação Nascente/Sul, com varanda a Nascente
Localização
Situado numa zona residencial tranquila e com boa envolvente urbana, este lote beneficia de excelente exposição solar e proximidade ao centro de Alvor, às praias, comércio local e serviços essenciais.
A Urbanização das Sesmarias é uma das áreas mais procuradas de Alvor para investimento em habitação permanente ou turística, pela sua localização estratégica entre Portimão, Alvor e a EN125.
Oportunidade de investimento
Com potencial para desenvolvimento de edifício residencial de 6 pisos e 12 fogos, este lote constitui uma excelente opção para promotores ou investidores que procuram um projeto com proximidade ao litoral e elevada procura habitacional e turística na região de Alvor.
Na iad partilhamos negócios com qualquer consultor ou agência imobiliária. Promovemos os imoveis em mais de 200 portais imobiliários nacionais e internacionais. Se é profissional do sector e tem um cliente comprador qualificado, contacte-me e agende a sua visita.
#ref: 745394
Localização
Alvor, Portimão, Faro
Informação do anúncio
ID do anúncio
1454265
Referência Externa
745394
Atualizado em
03/05/2026 23:29:36
Terreno para Venda em Alvor
Vídeo