Voltar
Terreno para Venda em Castêlo da Maia Foto 1
Terreno para Venda em Castêlo da Maia Foto 2
Terreno para Venda em Castêlo da Maia Foto 3
Terreno para Venda em Castêlo da Maia Foto 4
Terreno para Venda em Castêlo da Maia Foto 5

Terreno para Venda em Castêlo da Maia

1.350.000 €

Tipo
Terreno
Negócio
Venda
Área Bruta
19822 m²
Área Útil
19822 m²
Condição
Novo
Certificado Energético
Não se aplica
Área do Terreno
19822 m²

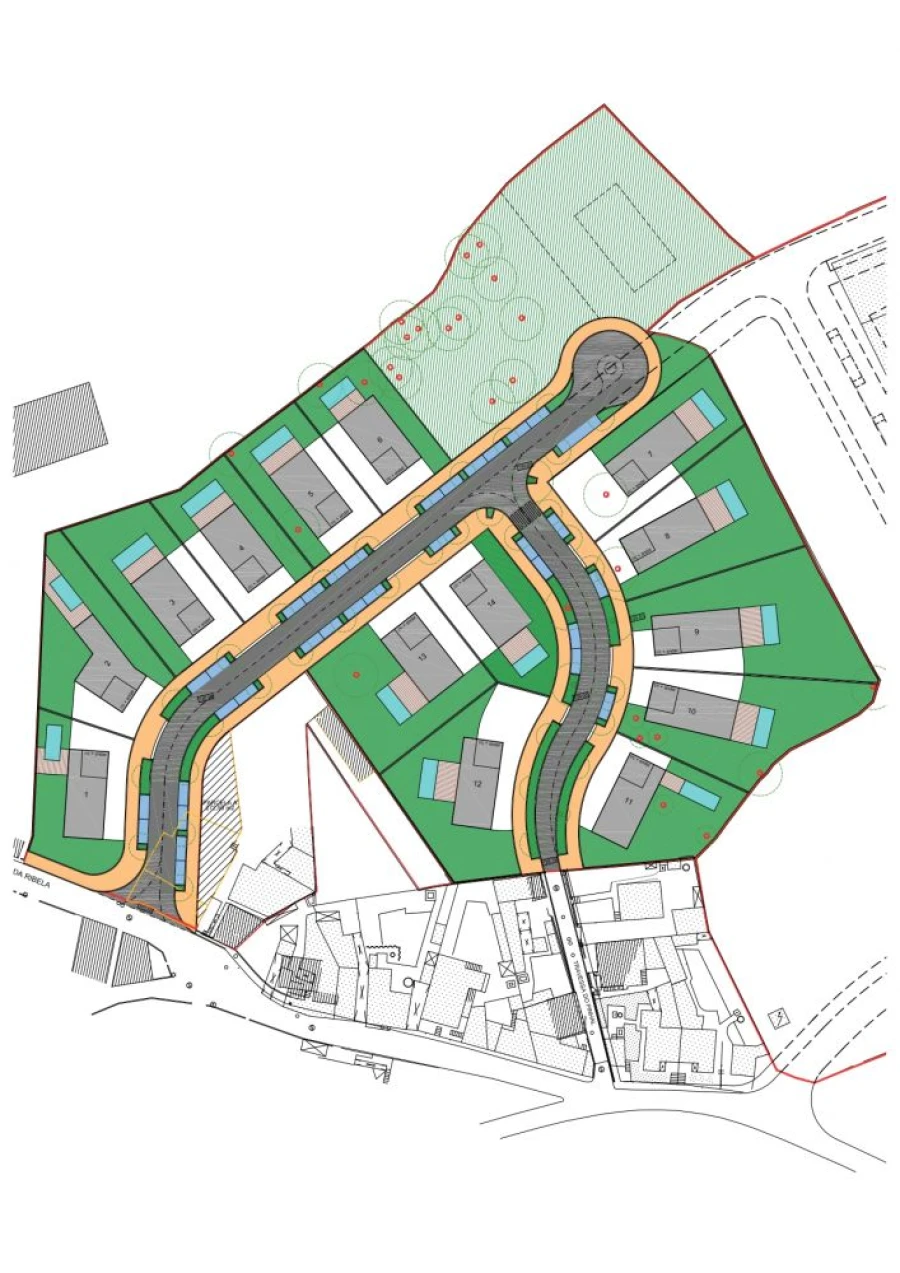
Terreno c/ PIP aprovado - 14 lotes

Terreno c/ PIP aprovado para 14 lores de moradias | Esfera Imobiliária

✔️ PIP aprovado conforme planta nas fotos e disponível para consulta e estudo;
✔️ Cada lote permite até 320 m2 de ABC e piscina individual com estacionamento coberto para 2 automóveis;
✔️ Lotes isolados (4 frentes) desde 658m2 até 1167m2 - total de construção de 5040m2;
✔️ junto ao Parque de Avioso com acesso pedonal;
✔️ a 300 metros do Agra Club;
✔️ oportunidade para investidores / promotores que actuem neste segmento e que procuram um projecto diferenciador;
✔️ analisamos permutas.

Se tem interesse nesta operação imóvel, não hesite: entre em contacto connosco, para agendar reunião de apresentação.

Localização

Castêlo da Maia, Maia, Porto

Informação do anúncio

ID do anúncio 1458007
Referência Externa 145.18.JS.02
Atualizado em 04/03/2026 09:30:10
Esfera Imobiliária AMI 12393
Referência do imóvel: 145.18.JS.02
Esfera Imobiliária AMI 12393
Referência do imóvel: 145.18.JS.02
1 / 6
Terreno para Venda em Castêlo da Maia Foto 1
Terreno para Venda em Castêlo da Maia Foto 2
Terreno para Venda em Castêlo da Maia Foto 3
Terreno para Venda em Castêlo da Maia Foto 4
Terreno para Venda em Castêlo da Maia Foto 5
Terreno para Venda em Castêlo da Maia Foto 6
Planta 1 / 2
Terreno para Venda em Castêlo da Maia Planta 1
Terreno para Venda em Castêlo da Maia Planta 2
Clicky