Voltar
Terreno para Venda em Ajuda Foto 1
Terreno para Venda em Ajuda Foto 2
Terreno para Venda em Ajuda Foto 3
Terreno para Venda em Ajuda Foto 4
Terreno para Venda em Ajuda Foto 5

Terreno para Venda em Ajuda

3.000.000 €

Tipo
Terreno
Negócio
Venda
Área Bruta
2000 m²
Área Útil
2000 m²
Condição
Novo
Certificado Energético
Isento
Área do Terreno
2000 m²

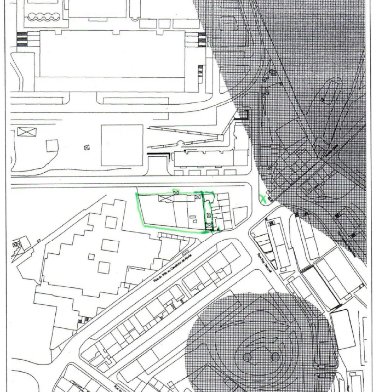
Terreno Rústico, Polo Universitário Ajuda, Lisboa

Terreno rústico c/ possibilidade de passar a urbano, com área total de 2000 m²

Excelente localização entre o Polo Universitário da Ajuda (em expansão), a Fundação Liga, a Associação Humanitária dos
Bombeiros da Ajuda e o Parque Florestal de Monsanto. Mais afastado mas suficientemente próximo localiza-se o Palácio Nacional da Ajuda.

O terreno tem uma configuração de cerca de 22 metros de profundidade e 55 metros de largura utilizável.

Face às demais condições e limitações constantes dos artigos 49°, 53°, 54° e 55° do Regulamento do Plano Diretor Municipal de Lisboa, considera-se a possibilidade de construção de um edifício de habitação com cinco pisos, uma frente de cerca de 50 metros e uma profundidade de 15 metros, ficando o remanescente do lote como logradouro.

Esta perspectiva de edificação está conforme a indicação inserida no artigo 54° do Regulamento do PDM, na alínea c) do seu ponto 2), de o IUB (Índice de Utilização Bruto) máximo ser de 2 m²/m² que daria para os 2.000 m2 totais do terreno uma ocupação em habitação de ± 4.000 m²

Interessante não é? Solicite-nos a avaliação que temos disponível.

Categoria Energética: Isento

ID-I.92.21418

Localização

Ajuda, Lisboa, Lisboa

Informação do anúncio

ID do anúncio 1479479
Referência Externa I.92.21418
Atualizado em 20/11/2025 09:30:49
GOLD CRAFT Real Estate AMI 21418
Referência do imóvel: I.92.21418
Phone
Chamada para a rede móvel nacional
GOLD CRAFT Real Estate AMI 21418
Referência do imóvel: I.92.21418
Phone
Chamada para a rede móvel nacional
1 / 12
Terreno para Venda em Ajuda Foto 1
Terreno para Venda em Ajuda Foto 2
Terreno para Venda em Ajuda Foto 3
Terreno para Venda em Ajuda Foto 4
Terreno para Venda em Ajuda Foto 5
Terreno para Venda em Ajuda Foto 6
Terreno para Venda em Ajuda Foto 7
Terreno para Venda em Ajuda Foto 8
Terreno para Venda em Ajuda Foto 9
Terreno para Venda em Ajuda Foto 10
Terreno para Venda em Ajuda Foto 11
Terreno para Venda em Ajuda Foto 12
Clicky