Moradia T4 para Venda em Aguas Santas
695.000 €
Tipo
Moradia
Negócio
Venda
Ano de Construção
2025
Quartos
4
Casas de Banho
4
Área Bruta
345 m²
Área Útil
333 m²
Condição
Novo
Certificado Energético
A
Área do Terreno
346 m²
Moradia T4 | 3 Suítes | Varanda | Piscina | Maia
Moradia T4 de Luxo em Nogueira – Maia, com Piscina e Acabamentos Premium.
Apresentamos esta exclusiva moradia T4 em Nogueira – Maia, um imóvel contemporâneo que combina arquitetura moderna, áreas amplas e acabamentos de excelência. Com certificação energética A, esta residência foi projetada ao pormenor para oferecer o máximo de conforto, sofisticação e funcionalidade, proporcionando um estilo de vida elevado para si e para a sua família.
Distribuição do Imóvel :
Cave
•Garagem (box) para 4 viaturas – 60,91 m²
•Vão de escadas – 6,40 m²
•Arrumos 1 – 12,17 m²
•Arrumos 2 – 7,96 m²
•Sala das máquinas – 7,96 m²
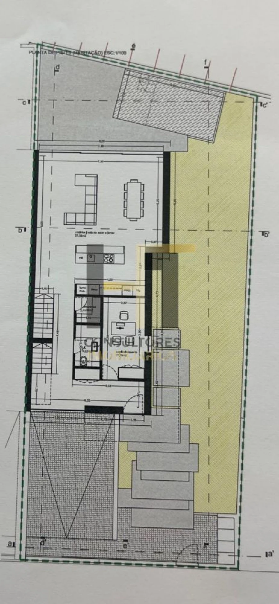
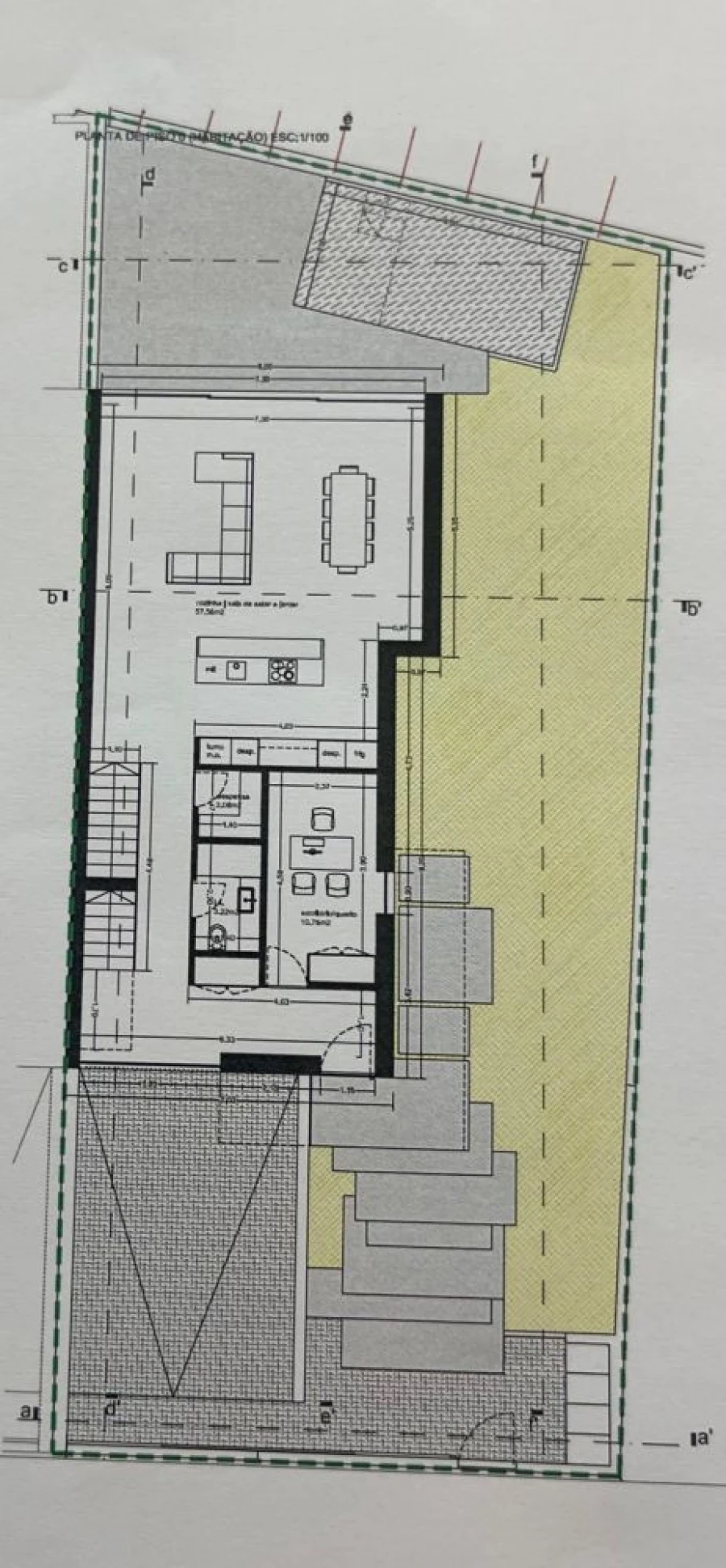
Rés-do-chão
•Sala e cozinha em open space, totalmente equipada, com acesso direto ao jardim e piscina – 57,56 m²
•Despensa – 2,06 m²
•WC de serviço – 3,22 m²
•Quarto/escritório – 10,76 m²
•Hall de entrada – 4,48 m²
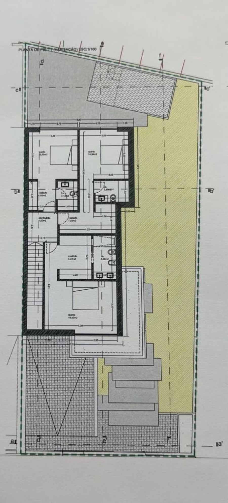
1.º Piso
•Suíte Master com varanda – 19,52 m²
•Closet – 7,23 m²
•WC privativo – 4,98 m²
•Suíte 2
•Quarto – 14,36 m²
•Closet – 7,82 m²
•WC – 4,98 m²
•Suíte 3
•Quarto – 12,80 m²
•WC – 3,12 m²
•Hall de circulação – 1,80 m²
Acabamentos de Excelência
Cada pormenor desta moradia foi cuidadosamente selecionado para garantir elegância, durabilidade e conforto:
•Porta de entrada: segurança reforçada em alumínio lacado
•Caixilharias: alumínio com corte térmico e vidro duplo laminado Guardian Sun
•Estores: elétricos interiores blackout
•Carpintarias: portas, rodapés e armários em carvalho envernizado mate, com puxadores embutidos
•Escadas: degraus suspensos em madeira de carvalho, com LED embutido e guardas em vidro
•Pavimentos: vinil de tom carvalho nas áreas principais; cerâmico de grande formato nas zonas técnicas
•Iluminação: focos e fitas LED estrategicamente integrados
•Cozinha: totalmente equipada com eletrodomésticos Haier/Teka, móveis em carvalho ou lacados e tampos em Compact Quartz
•WCs: louças suspensas, torneiras de design, bases de duche em vidro laminado e revestimentos cerâmicos 60x120 cm
Conforto e Segurança
Esta moradia garante elevado desempenho energético e total segurança através de:
•Sistema de climatização por condutas Haier
•Bomba de calor para AQS
•Vídeo porteiro em todos os pisos
•Sistema de vigilância CCTV com acesso remoto
•Alarme de intrusão, incêndio e inundação
•Garagem preparada para carregamento de veículos elétricos
Exterior
O exterior foi pensado para proporcionar momentos de lazer e bem-estar:
•Piscina 6 m x 3 m, com acabamento em tela
•Jardim relvado com rega automática
•Acessos automóvel e pedonal .
Localização Privilegiada
Situada numa zona residencial tranquila e bem servida de acessos, a moradia localiza-se a:
•1 min de transportes públicos
•4 min da A41, A3 e A4
•4 min do MaiaShopping e Maia Jardim
•1 min do Colégio Novo da Maia
•7 min do centro da Maia
Uma Casa Criada para Superar Expectativas !
Esta moradia T4 em Nogueira – Maia destaca-se pela amplitude das divisões, pelos acabamentos premium e por uma arquitetura funcional e contemporânea, ideal para famílias que valorizam conforto, segurança e modernidade.
Para mais informações ou agendar visita, entre em contacto.
Apresentamos esta exclusiva moradia T4 em Nogueira – Maia, um imóvel contemporâneo que combina arquitetura moderna, áreas amplas e acabamentos de excelência. Com certificação energética A, esta residência foi projetada ao pormenor para oferecer o máximo de conforto, sofisticação e funcionalidade, proporcionando um estilo de vida elevado para si e para a sua família.
Distribuição do Imóvel :
Cave
•Garagem (box) para 4 viaturas – 60,91 m²
•Vão de escadas – 6,40 m²
•Arrumos 1 – 12,17 m²
•Arrumos 2 – 7,96 m²
•Sala das máquinas – 7,96 m²
Rés-do-chão
•Sala e cozinha em open space, totalmente equipada, com acesso direto ao jardim e piscina – 57,56 m²
•Despensa – 2,06 m²
•WC de serviço – 3,22 m²
•Quarto/escritório – 10,76 m²
•Hall de entrada – 4,48 m²
1.º Piso
•Suíte Master com varanda – 19,52 m²
•Closet – 7,23 m²
•WC privativo – 4,98 m²
•Suíte 2
•Quarto – 14,36 m²
•Closet – 7,82 m²
•WC – 4,98 m²
•Suíte 3
•Quarto – 12,80 m²
•WC – 3,12 m²
•Hall de circulação – 1,80 m²
Acabamentos de Excelência
Cada pormenor desta moradia foi cuidadosamente selecionado para garantir elegância, durabilidade e conforto:
•Porta de entrada: segurança reforçada em alumínio lacado
•Caixilharias: alumínio com corte térmico e vidro duplo laminado Guardian Sun
•Estores: elétricos interiores blackout
•Carpintarias: portas, rodapés e armários em carvalho envernizado mate, com puxadores embutidos
•Escadas: degraus suspensos em madeira de carvalho, com LED embutido e guardas em vidro
•Pavimentos: vinil de tom carvalho nas áreas principais; cerâmico de grande formato nas zonas técnicas
•Iluminação: focos e fitas LED estrategicamente integrados
•Cozinha: totalmente equipada com eletrodomésticos Haier/Teka, móveis em carvalho ou lacados e tampos em Compact Quartz
•WCs: louças suspensas, torneiras de design, bases de duche em vidro laminado e revestimentos cerâmicos 60x120 cm
Conforto e Segurança
Esta moradia garante elevado desempenho energético e total segurança através de:
•Sistema de climatização por condutas Haier
•Bomba de calor para AQS
•Vídeo porteiro em todos os pisos
•Sistema de vigilância CCTV com acesso remoto
•Alarme de intrusão, incêndio e inundação
•Garagem preparada para carregamento de veículos elétricos
Exterior
O exterior foi pensado para proporcionar momentos de lazer e bem-estar:
•Piscina 6 m x 3 m, com acabamento em tela
•Jardim relvado com rega automática
•Acessos automóvel e pedonal .
Localização Privilegiada
Situada numa zona residencial tranquila e bem servida de acessos, a moradia localiza-se a:
•1 min de transportes públicos
•4 min da A41, A3 e A4
•4 min do MaiaShopping e Maia Jardim
•1 min do Colégio Novo da Maia
•7 min do centro da Maia
Uma Casa Criada para Superar Expectativas !
Esta moradia T4 em Nogueira – Maia destaca-se pela amplitude das divisões, pelos acabamentos premium e por uma arquitetura funcional e contemporânea, ideal para famílias que valorizam conforto, segurança e modernidade.
Para mais informações ou agendar visita, entre em contacto.
Localização
Aguas Santas, Maia, Porto
Informação do anúncio
ID do anúncio
1492803
Referência Externa
HT00128
Atualizado em
25/02/2026 09:33:03
Anunciante
Chamada para a rede móvel nacional
Patrícia Tiago Unipessoal, lda
AMI 22918
Referência do imóvel:
HT00128
Consultor
HT Consultores
Moradia T4 para Venda em Aguas Santas