Terreno para Venda em Peso da Régua e Godim
57.500 €
Tipo
Terreno
Negócio
Venda
Condição
Certificado Energético
NC
Área do Terreno
246 m²
Terreno para venda
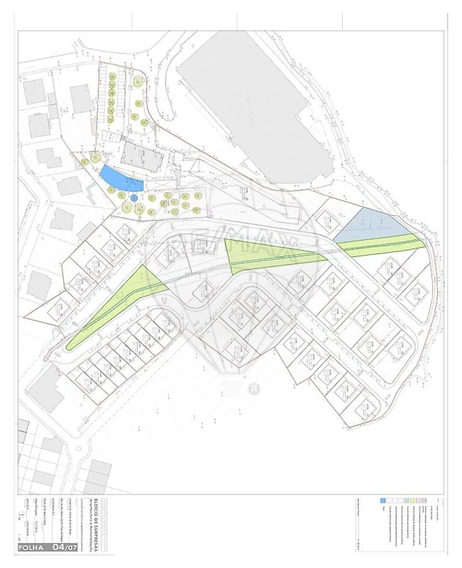
Lote para Construção em Peso da Régua – Próximo do centro
Excelente oportunidade de investimento na cidade do Peso da Régua.
Lote nº 4
Situado em zona residencial tranquila e a poucos minutos do centro, com proximidade a todos os serviços essenciais:
Escolas, supermercados, farmácias, comércio, transportes e zonas de lazer.
Características urbanísticas:
Área total do lote: 246,84m²
Área de implantação: 119m²
Área bruta de construção: 357m²
Permite a construção de moradia espaçosa, ideal para habitação própria ou projeto de
investimento.
Com bons acessos, ótima exposição solar e inserido numa zona em valorização, este lote reúne condições ideais para quem pretende construir com qualidade numa das
cidades mais procuradas da região do Douro.
;ID RE/MAX: 126401191-10
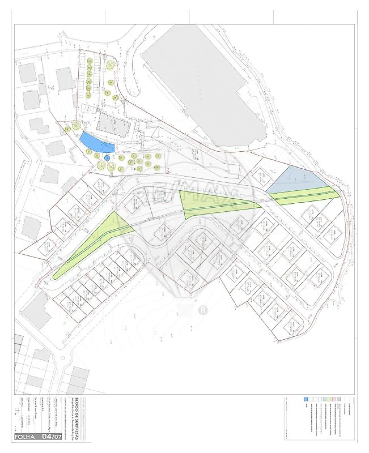
Excelente oportunidade de investimento na cidade do Peso da Régua.
Lote nº 4
Situado em zona residencial tranquila e a poucos minutos do centro, com proximidade a todos os serviços essenciais:
Escolas, supermercados, farmácias, comércio, transportes e zonas de lazer.
Características urbanísticas:
Área total do lote: 246,84m²
Área de implantação: 119m²
Área bruta de construção: 357m²
Permite a construção de moradia espaçosa, ideal para habitação própria ou projeto de
investimento.
Com bons acessos, ótima exposição solar e inserido numa zona em valorização, este lote reúne condições ideais para quem pretende construir com qualidade numa das
cidades mais procuradas da região do Douro.
;ID RE/MAX: 126401191-10
Localização
Peso da Régua e Godim, Peso da Régua, Vila Real
Informação do anúncio
ID do anúncio
1649360
Referência Externa
126401191-10
Atualizado em
24/05/2026 12:51:47
Anunciante
Chamada para a rede fixa nacional
Collection Vantagem Oporto
AMI 7772
Referência do imóvel:
126401191-10
Terreno para Venda em Peso da Régua e Godim