Apartamento T2 para Arrendamento em Campo de Ourique
1.950 €
Tipo
Apartamento
Negócio
Arrendamento
Ano de Construção
2026
Quartos
2
Área Bruta
65 m²
Área Útil
51 m²
Certificado Energético
D
T2 no Rato com varandas
Apartamento no terceiro andar de um edifício de placa, com construção recente de 2020. O imóvel apresenta-se em excelente estado de conservação, aliando a solidez da construção moderna à traça característica da zona de São, Bento.
Este imóvel destaca-se pelo seu design contemporâneo e funcionalidade, com acabamentos de qualidade superior. As carpintarias em madeiras lacadas e os tetos falsos conferem um ambiente sofisticado e luminoso. Equipado com ar condicionado, caixilharia em PVC com vidro duplo e cozinha totalmente equipada com marca Bosch, esta é uma proposta que privilegia o conforto térmico e a eficiência energética.
Orientado a Norte/Sul, garantindo uma luminosidade equilibrada ao longo do dia, este T2 conta com uma área bruta privativa de 60,70 m². O imóvel encontra-se Pronto a Habitar, não necessitando de qualquer intervenção.
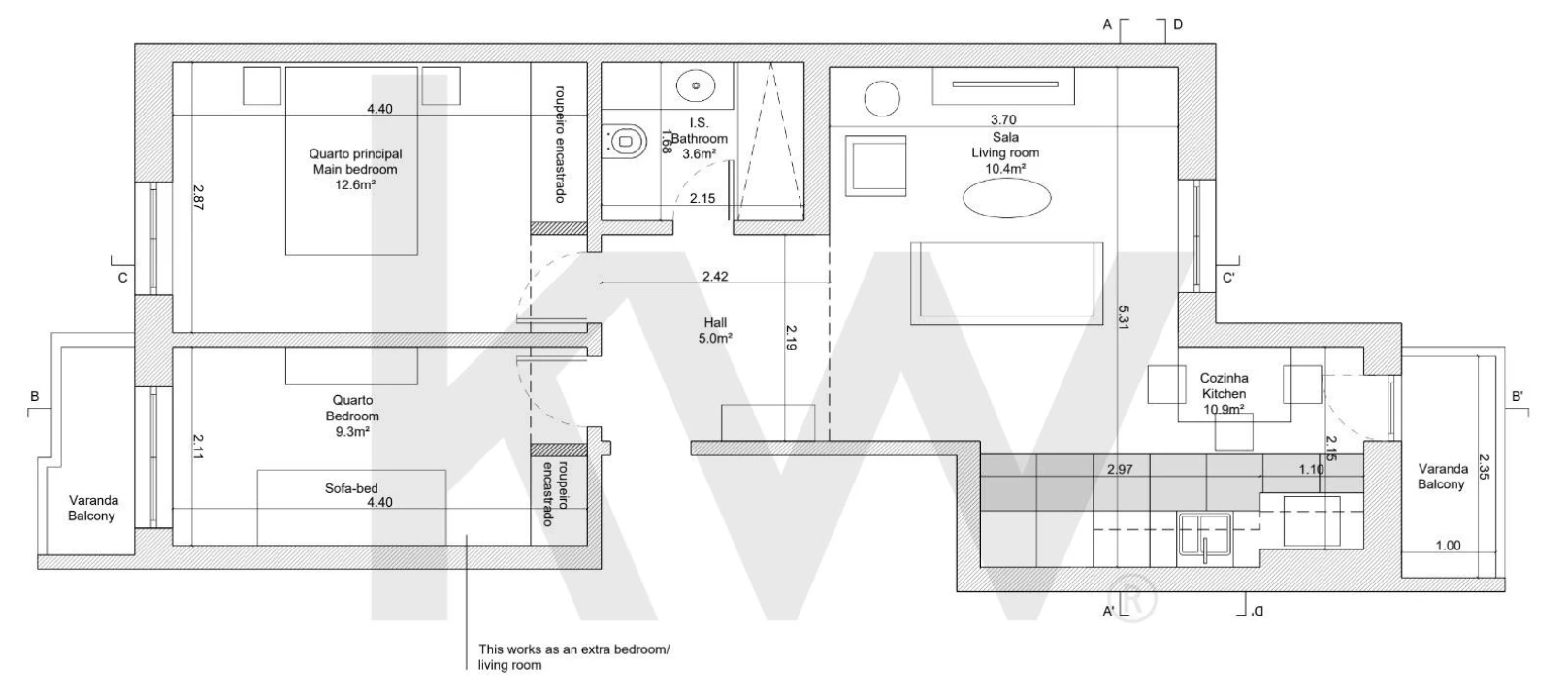
O espaço está inteligentemente distribuído da seguinte forma:
● Sala: 10,4 m²
● Cozinha: 10,9 m² (com acesso à varanda)
● Quarto 1: 12,6 m² (com roupeiro embutido)
● Quarto 2: 9,3 m² (com acesso à varanda)
● W.C.: 3,6 m²
● Varanda Cozinha: 2,35 m²
● Varanda Quarto: 2,45 m²
● Circulação: 5 m²
● Pé Direito: 2,70 m (aprox.)
Localizado na Travessa de Santa Quitéria, entre a Av. Álvares Cabral e São Bento, um dos bairros mais desejados de Lisboa. Viver aqui é usufruir de uma "vila dentro da cidade", onde o comércio tradicional, os cafés gourmet e o famoso Mercado de Campo de Ourique estão a curta distância a pé. É uma zona que combina a tranquilidade residencial com a vibração cosmopolita da capital.
Proximidade às distâncias-chave:
● Centro da Cidade / Zona Nobre: A poucos minutos do Rato e das Amoreiras.
● Escolas e Colégios de Referência: Zona servida por algumas das melhores instituições de ensino de Lisboa (ex: Salesianos de Lisboa, Escola Secundária Pedro Nunes).
● Acessos Rodoferroviários e Transportes: Facilidade de acesso à rede de autocarros e ao icónico elétrico 28, com ligação rápida à A5 e Eixo Norte-Sul.
● Serviços: Rodeado de supermercados, farmácias, bancos e uma oferta gastronómica inigualável.
[EN]
T2 in Rato with Balconies
This third-floor apartment in a reinforced concrete building, recently constructed in 2020. The property is in excellent condition, blending the structural solidity of modern construction with the characteristic architectural style of the São Bento area.
This home stands out for its contemporary design and functionality, featuring premium finishes. The lacquered wood cabinetry and false ceilings provide a sophisticated and bright ambiance. Equipped with air conditioning, PVC window frames with double glazing, and a kitchen fully fitted with Bosch appliances, this property prioritizes thermal comfort and energy efficiency.
With a North/South orientation ensuring balanced natural light throughout the day, this 2-bedroom apartment has a private gross area of 60.70 m². The property is move-in ready, requiring no further intervention.
The layout is thoughtfully structured as follows:
● Living Room: 10.4 m²
● Kitchen: 10.9 m² (with balcony access)
● Bedroom 1: 12.6 m² (with built-in wardrobe)
● Bedroom 2: 9.3 m² (with balcony access)
● Bathroom: 3.6 m²
● Kitchen Balcony: 2.35 m²
● Bedroom Balcony: 2.45 m²
● Hallway/Circulation: 5 m²
● Ceiling Height: approx. 2.70 m
The apartment is located on Travessa de Santa Quitéria, between Av. Álvares Cabral and São Bento, one of Lisbon’s most desirable neighborhoods. Living here means enjoying a "village within the city," where traditional shops, gourmet cafes, and the famous Campo de Ourique Market are just a short walk away. It is an area that perfectly combines residential tranquility with the capital's cosmopolitan vibe.
Proximity to Key Landmarks:
1. City Center / Prime Area: Just minutes from Rato and Amoreiras.
2. Top-Tier Schools: Served by some of Lisbon’s best educational institutions (e.g., Salesianos de Lisboa, Pedro Nunes Secondary School).
3. Transport & Accessibility: Easy access to the bus network and the iconic Tram 28, with quick connections to the A5 highway and Eixo Norte-Sul.
4. Services: Surrounded by supermarkets, pharmacies, banks, and an unparalleled gastronomic scene.
Licença de utilização: 23 de 1960
Este imóvel destaca-se pelo seu design contemporâneo e funcionalidade, com acabamentos de qualidade superior. As carpintarias em madeiras lacadas e os tetos falsos conferem um ambiente sofisticado e luminoso. Equipado com ar condicionado, caixilharia em PVC com vidro duplo e cozinha totalmente equipada com marca Bosch, esta é uma proposta que privilegia o conforto térmico e a eficiência energética.
Orientado a Norte/Sul, garantindo uma luminosidade equilibrada ao longo do dia, este T2 conta com uma área bruta privativa de 60,70 m². O imóvel encontra-se Pronto a Habitar, não necessitando de qualquer intervenção.
O espaço está inteligentemente distribuído da seguinte forma:
● Sala: 10,4 m²
● Cozinha: 10,9 m² (com acesso à varanda)
● Quarto 1: 12,6 m² (com roupeiro embutido)
● Quarto 2: 9,3 m² (com acesso à varanda)
● W.C.: 3,6 m²
● Varanda Cozinha: 2,35 m²
● Varanda Quarto: 2,45 m²
● Circulação: 5 m²
● Pé Direito: 2,70 m (aprox.)
Localizado na Travessa de Santa Quitéria, entre a Av. Álvares Cabral e São Bento, um dos bairros mais desejados de Lisboa. Viver aqui é usufruir de uma "vila dentro da cidade", onde o comércio tradicional, os cafés gourmet e o famoso Mercado de Campo de Ourique estão a curta distância a pé. É uma zona que combina a tranquilidade residencial com a vibração cosmopolita da capital.
Proximidade às distâncias-chave:
● Centro da Cidade / Zona Nobre: A poucos minutos do Rato e das Amoreiras.
● Escolas e Colégios de Referência: Zona servida por algumas das melhores instituições de ensino de Lisboa (ex: Salesianos de Lisboa, Escola Secundária Pedro Nunes).
● Acessos Rodoferroviários e Transportes: Facilidade de acesso à rede de autocarros e ao icónico elétrico 28, com ligação rápida à A5 e Eixo Norte-Sul.
● Serviços: Rodeado de supermercados, farmácias, bancos e uma oferta gastronómica inigualável.
[EN]
T2 in Rato with Balconies
This third-floor apartment in a reinforced concrete building, recently constructed in 2020. The property is in excellent condition, blending the structural solidity of modern construction with the characteristic architectural style of the São Bento area.
This home stands out for its contemporary design and functionality, featuring premium finishes. The lacquered wood cabinetry and false ceilings provide a sophisticated and bright ambiance. Equipped with air conditioning, PVC window frames with double glazing, and a kitchen fully fitted with Bosch appliances, this property prioritizes thermal comfort and energy efficiency.
With a North/South orientation ensuring balanced natural light throughout the day, this 2-bedroom apartment has a private gross area of 60.70 m². The property is move-in ready, requiring no further intervention.
The layout is thoughtfully structured as follows:
● Living Room: 10.4 m²
● Kitchen: 10.9 m² (with balcony access)
● Bedroom 1: 12.6 m² (with built-in wardrobe)
● Bedroom 2: 9.3 m² (with balcony access)
● Bathroom: 3.6 m²
● Kitchen Balcony: 2.35 m²
● Bedroom Balcony: 2.45 m²
● Hallway/Circulation: 5 m²
● Ceiling Height: approx. 2.70 m
The apartment is located on Travessa de Santa Quitéria, between Av. Álvares Cabral and São Bento, one of Lisbon’s most desirable neighborhoods. Living here means enjoying a "village within the city," where traditional shops, gourmet cafes, and the famous Campo de Ourique Market are just a short walk away. It is an area that perfectly combines residential tranquility with the capital's cosmopolitan vibe.
Proximity to Key Landmarks:
1. City Center / Prime Area: Just minutes from Rato and Amoreiras.
2. Top-Tier Schools: Served by some of Lisbon’s best educational institutions (e.g., Salesianos de Lisboa, Pedro Nunes Secondary School).
3. Transport & Accessibility: Easy access to the bus network and the iconic Tram 28, with quick connections to the A5 highway and Eixo Norte-Sul.
4. Services: Surrounded by supermarkets, pharmacies, banks, and an unparalleled gastronomic scene.
Licença de utilização: 23 de 1960
Localização
Campo de Ourique, Lisboa, Lisboa
Informação do anúncio
ID do anúncio
1700010
Referência Externa
KWPT-029887
Atualizado em
06/05/2026 00:09:15
Anunciante
Chamada para a rede fixa nacional
KW Alfa Lisboa
AMI 18161
Referência do imóvel:
KWPT-029887
Apartamento T2 para Arrendamento em Campo de Ourique