Voltar
Apartamento T1 para Venda em Queluz e Belas Foto 1
Apartamento T1 para Venda em Queluz e Belas Foto 2
Apartamento T1 para Venda em Queluz e Belas Foto 3
Apartamento T1 para Venda em Queluz e Belas Foto 4
Apartamento T1 para Venda em Queluz e Belas Foto 5

Apartamento T1 para Venda em Queluz e Belas

550.000 €

Tipo
Apartamento
Negócio
Venda
Ano de Construção
2027
Quartos
1
Área Bruta
143 m²
Área Útil
73 m²
Condição
Em construção
Certificado Energético
A

Apartamento T1 com garagem, NOVO no Belas Clube de Campo, Grande Lisboa

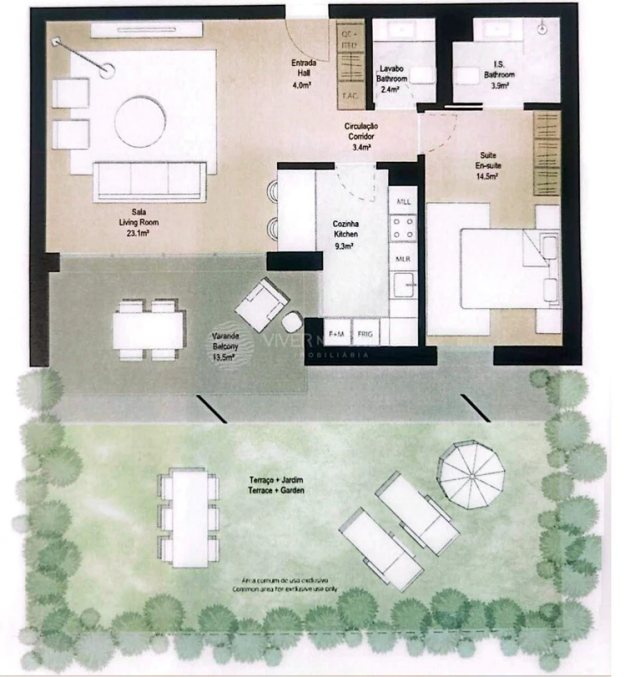
Amplo apartamento de 1 quarto com uma área bruta privativa de 143m2, em fase de construção (obra avançada) com garagem, arrecadação, TERRAÇO e JARDIM, pensado para quem valoriza qualidade e exclusividade, integrados com a natureza plena envolvente.

Este apartamento T1 de luxo encontra-se inserido num dos mais prestigiados e exclusivos condomínios do país: O Belas Club de Campo, fazendo parte integrante de um dos projetos mais exclusivos do Native.

Destaca-se pelo seu extraordinário ESPAÇO EXTERIOR de 70 m² (sendo 56 m² de JARDIM + 14 m² de TERRAÇO - privativos) projetando desta forma e redimensionando todo o espaço à volta.

Cada detalhe foi pensado para proporcionar uma experiência residencial distinta, sofisticada e exclusiva.

Desenhado por quem sabe e acredita que 'habitar vai muito além do conforto dentro de quatro paredes', o renomado arquiteto Miguel Saraiva que apresenta uma proposta moderna, jovem e dinâmica.

Para além do seu magnífico espaço exterior, integram ainda o apartamento 1 (uma) garagem coberta privativa e arrecadação no piso -1 para além de poder desfrutar de um conjunto de comodidades exclusivas, incluindo piscina exterior, espaços multiusos e amplos jardins comuns.

O condomínio do Belas Club de Campo oferece ainda acesso a um vasto conjunto de serviços e infraestruturas, como ginásio com piscina aquecida, cafés, minimercado, parafarmácia, correios, lavandarias, escola multilingue e multicultural desde creche até ao 3º ciclo, e equipamentos desportivos. Beneficiando de um enquadramento único, marcado por extensas áreas verdes, campo de golfe, quadras de basquete e de Padle, Club House, restaurante, segurança 24h e uma forte sensação de pertença a uma comunidade.

A sua localização ímpar faz faz desta a escolha mais assertiva para viver estando a poucos minutos de Lisboa, Cascais e Oeiras através de excelentes acessos pelas auto-estradas A5, A16 e CREL.

O aeroporto de Lisboa Humberto Delgado fica apenas a 20 min de distância (25km).

Conclusão de obra: JUNHO_2027
*Obras em fase avançada.Condições de pagamentos facilitadas.

A VIVER NAS ONDAS é uma imobiliária com 19 anos de experiência que também atua como INTERMEDIÁRIA de CRÉDITO, devidamente autorizada pelo Banco de Portugal (Reg. 3151).

A nossa equipa é composta por profissionais apaixonados e dedicados, prontos para tornar os seus sonhos em realidade.

Assumimos a responsabilidade de cuidar de todo o processo de financiamento, caso necessite, proporcionando-lhe tranquilidade e segurança. Estamos empenhados em encontrar as melhores soluções de crédito habitação disponíveis no mercado, e trabalhamos incansavelmente para alcançar esse objetivo.

Cuidamos de todos os detalhes do processo, desde a análise das suas necessidades financeiras até a apresentação das opções de financiamento mais adequadas ao seu perfil.

A nossa missão é oferecer um serviço de excelência, colocando os seus interesses em primeiro lugar. Trabalhamos com empenho e dedicação para tornar o processo de obtenção de crédito habitação mais simples e eficaz para si.

Localização

Queluz e Belas, Sintra, Lisboa

Informação do anúncio

ID do anúncio 1708445
Referência Externa EA-1275
Atualizado em 19/03/2026 13:39:14
Viver Nas Ondas - Mediação Imobiliária, Lda AMI 7530
Referência do imóvel: EA-1275
Phone
Chamada para a rede móvel nacional
Viver Nas Ondas - Portugal
Viver Nas Ondas - Portugal
Phone
Chamada para a rede móvel nacional
Viver Nas Ondas - Mediação Imobiliária, Lda AMI 7530
Referência do imóvel: EA-1275
Phone
Chamada para a rede móvel nacional
Viver Nas Ondas - Portugal
Viver Nas Ondas - Portugal
Phone
Chamada para a rede móvel nacional
1 / 14
Apartamento T1 para Venda em Queluz e Belas Foto 1
Apartamento T1 para Venda em Queluz e Belas Foto 2
Apartamento T1 para Venda em Queluz e Belas Foto 3
Apartamento T1 para Venda em Queluz e Belas Foto 4
Apartamento T1 para Venda em Queluz e Belas Foto 5
Apartamento T1 para Venda em Queluz e Belas Foto 6
Apartamento T1 para Venda em Queluz e Belas Foto 7
Apartamento T1 para Venda em Queluz e Belas Foto 8
Apartamento T1 para Venda em Queluz e Belas Foto 9
Apartamento T1 para Venda em Queluz e Belas Foto 10
Apartamento T1 para Venda em Queluz e Belas Foto 11
Apartamento T1 para Venda em Queluz e Belas Foto 12
Apartamento T1 para Venda em Queluz e Belas Foto 13
Apartamento T1 para Venda em Queluz e Belas Foto 14
Apartamento T1 para Venda em Queluz e Belas
Clicky