Terreno para Venda em Custóias, Leça do Balio e Guifões
78.000 €
Tipo
Terreno
Negócio
Venda
Área Útil
164 m²
Condição
Não Aplicável
Certificado Energético
Isento
Área do Terreno
164 m²
Terreno para moradia em Leça do Balio
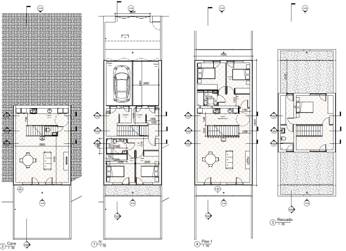
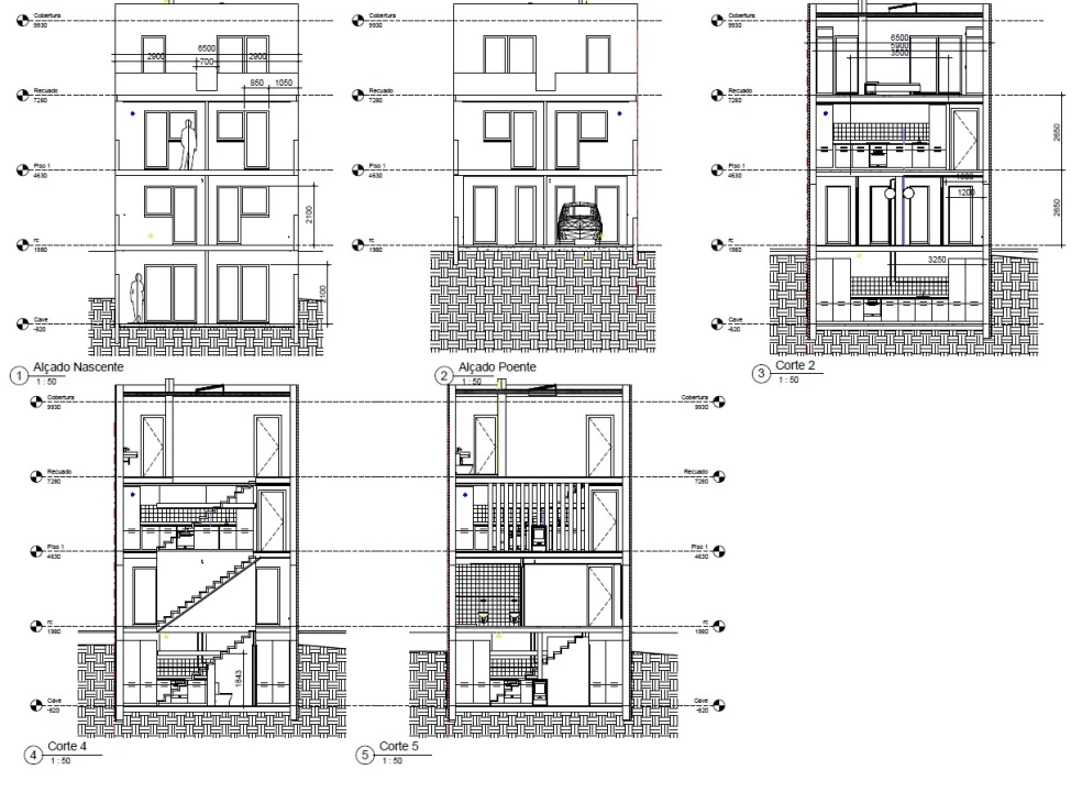
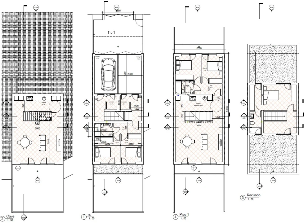
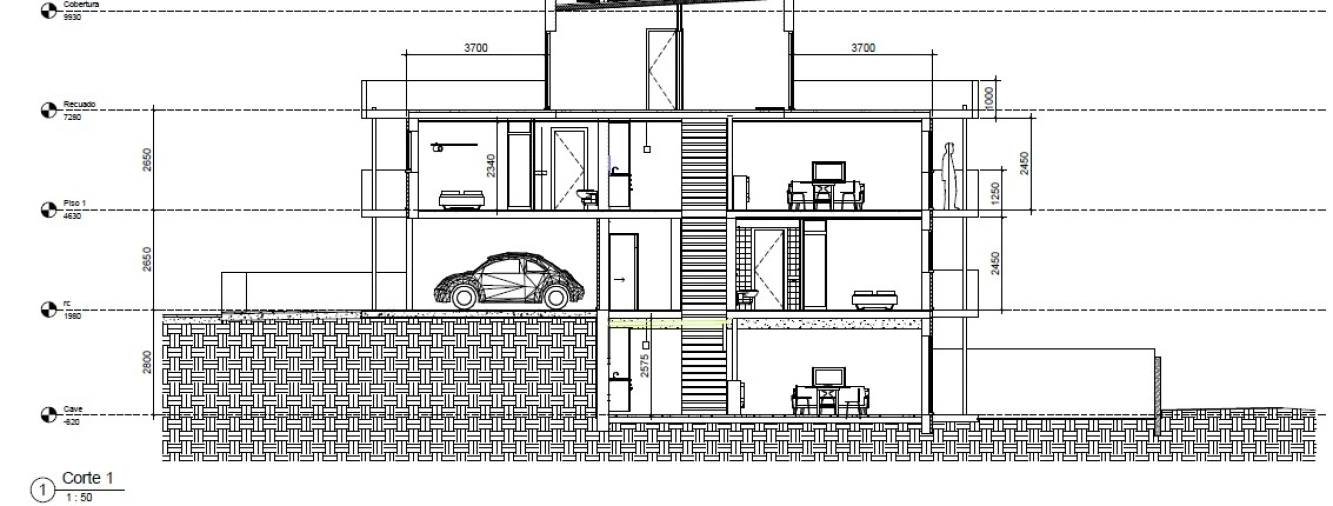
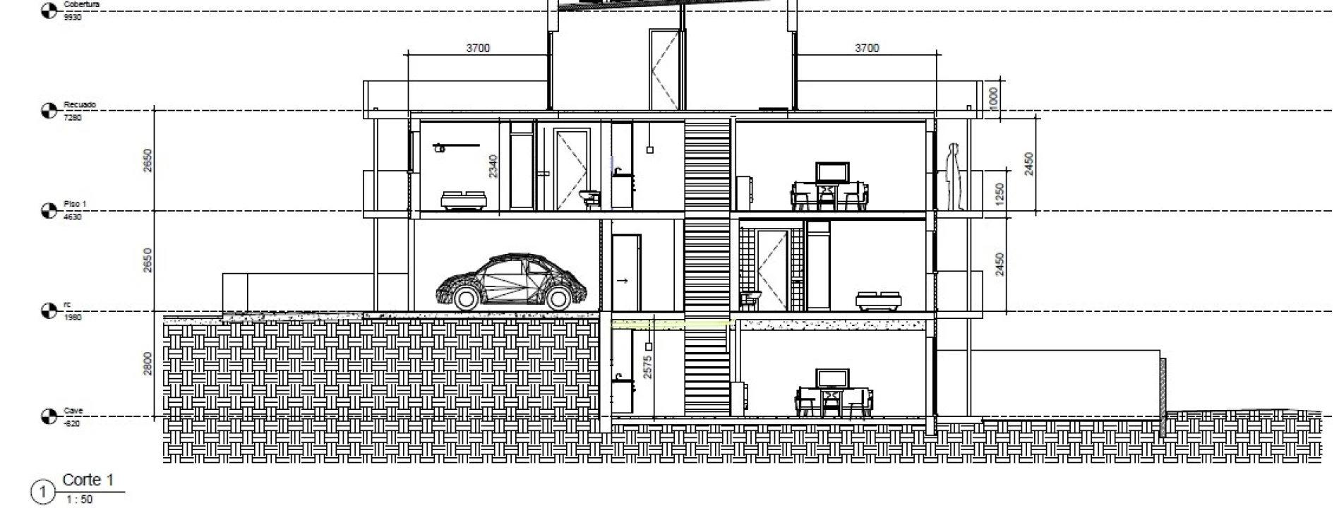
Terreno com 164 m², ideal para moradia unifamiliar em banda, com uma capacidade construtiva total de 325 m², distribuída por 234 m² acima do solo e 91 m² abaixo do solo.
Localização privilegiada em Leça do Balio, a poucos minutos da estação de metro de Custió, garantindo excelentes acessos ao Porto e arredores, e com rápida ligação ao centro da Maia, onde encontra comércio, serviços, escolas e todas as comodidades do dia a dia.
Uma opção ideal para quem procura qualidade de vida, acessibilidade e potencial de valorização, seja para habitação própria ou investimento.
Para mais informações e/ou agendar visita, contacte-nos!
A Real Objectiva é uma empresa implantada no norte de Portugal, vocacionada para a venda e arrendamento de imóveis. Fruto dos seus 26 anos de trabalho, pautados pelo rigor e profissionalismo alcançou resultados reconhecidos pelo mercado em que se insere, atuando de forma transversal no mercado habitacional e no mercado industrial.
Missão:
Praticar um conceito de mediação imobiliária baseada na relação cliente/empresa consolidada pelo papel do consultor especialista e capaz de permitir a superação das expectativas de todos os intervenientes.
Posicionamento:
Vendemos casas
Vendemos armazéns, escritórios, lojas e terrenos
Especialistas do mercado imobiliário
Princípios de Atuação:
Competência
Confidencialidade
Idoneidade
Disponibilidade
Modelos de Ação:
Rigor e profissionalismo
Especialistas na angariação e na mediação imobiliária
Estudamos o mercado e propomo-nos a encontrar soluções adequadas
Avaliações rigorosas e alvo de estudo pormenorizado
Cuidado extremo nas visitas
Localização privilegiada em Leça do Balio, a poucos minutos da estação de metro de Custió, garantindo excelentes acessos ao Porto e arredores, e com rápida ligação ao centro da Maia, onde encontra comércio, serviços, escolas e todas as comodidades do dia a dia.
Uma opção ideal para quem procura qualidade de vida, acessibilidade e potencial de valorização, seja para habitação própria ou investimento.
Para mais informações e/ou agendar visita, contacte-nos!
A Real Objectiva é uma empresa implantada no norte de Portugal, vocacionada para a venda e arrendamento de imóveis. Fruto dos seus 26 anos de trabalho, pautados pelo rigor e profissionalismo alcançou resultados reconhecidos pelo mercado em que se insere, atuando de forma transversal no mercado habitacional e no mercado industrial.
Missão:
Praticar um conceito de mediação imobiliária baseada na relação cliente/empresa consolidada pelo papel do consultor especialista e capaz de permitir a superação das expectativas de todos os intervenientes.
Posicionamento:
Vendemos casas
Vendemos armazéns, escritórios, lojas e terrenos
Especialistas do mercado imobiliário
Princípios de Atuação:
Competência
Confidencialidade
Idoneidade
Disponibilidade
Modelos de Ação:
Rigor e profissionalismo
Especialistas na angariação e na mediação imobiliária
Estudamos o mercado e propomo-nos a encontrar soluções adequadas
Avaliações rigorosas e alvo de estudo pormenorizado
Cuidado extremo nas visitas
Localização
Custóias, Leça do Balio e Guifões, Matosinhos, Porto
Informação do anúncio
ID do anúncio
1709611
Referência Externa
RO2762
Atualizado em
19/03/2026 15:40:43
Terreno para Venda em Custóias, Leça do Balio e Guifões
Vídeo