Voltar
Terreno para Venda em Palmela Foto 1
Terreno para Venda em Palmela Foto 2
Terreno para Venda em Palmela Foto 3
Terreno para Venda em Palmela Foto 4
Terreno para Venda em Palmela Foto 5

Terreno para Venda em Palmela

250.000 €

Tipo
Terreno
Negócio
Venda
Área Bruta
735 m²
Condição
Não Aplicável
Certificado Energético
Isento
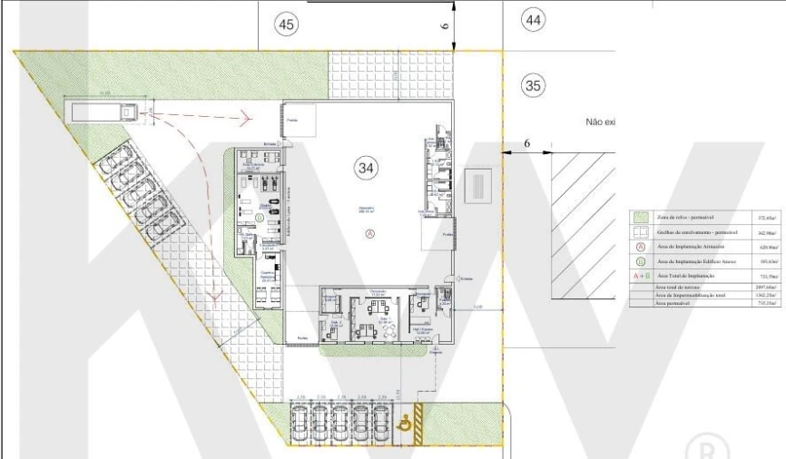
Área do Terreno
2098 m²

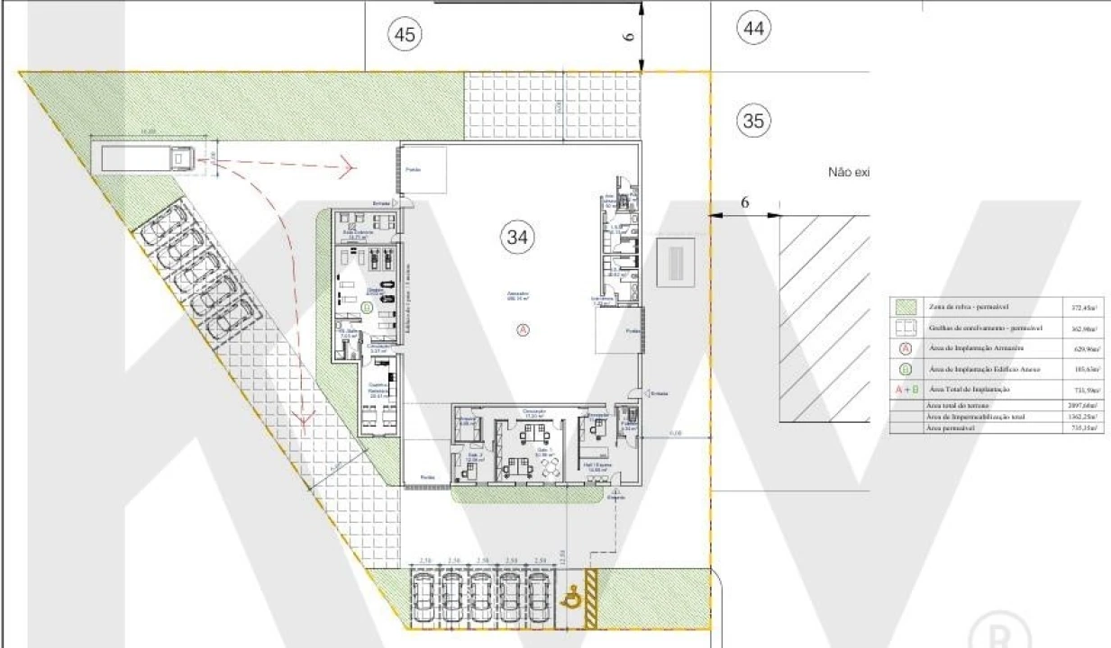
Terreno para construção de armazém | Zona industrial Vale do Alecrim, Palmela

Terreno com 2.097,60 m² para venda, localizado na zona industrial de Vale do Alecrim, em Palmela, junto ao Pinhal Novo. A sua localização estratégica garante acessos rápidos às principais vias de comunicação e a um ambiente empresarial consolidado.

O terreno dispõe de projeto de arquitetura e especialidades já elaborados, preparado para dar entrada na Câmara Municipal em regime de Comunicação Prévia, o que permite ao futuro proprietário iniciar o processo de construção com significativa redução de prazos e burocracia.

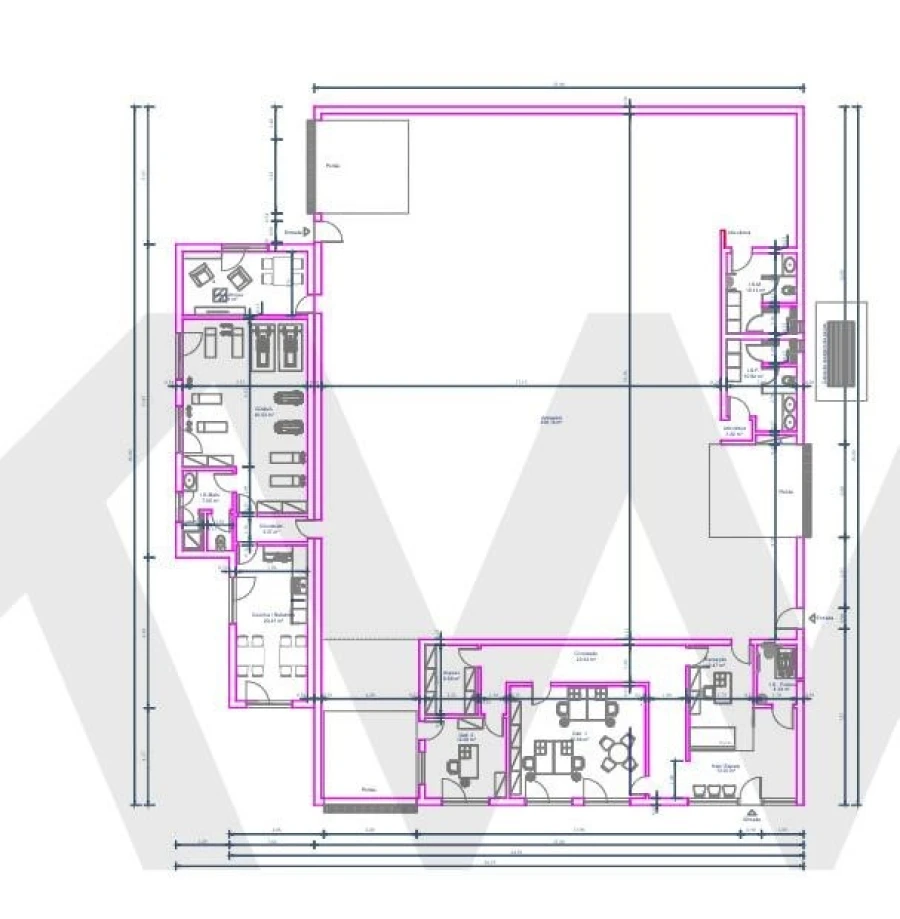
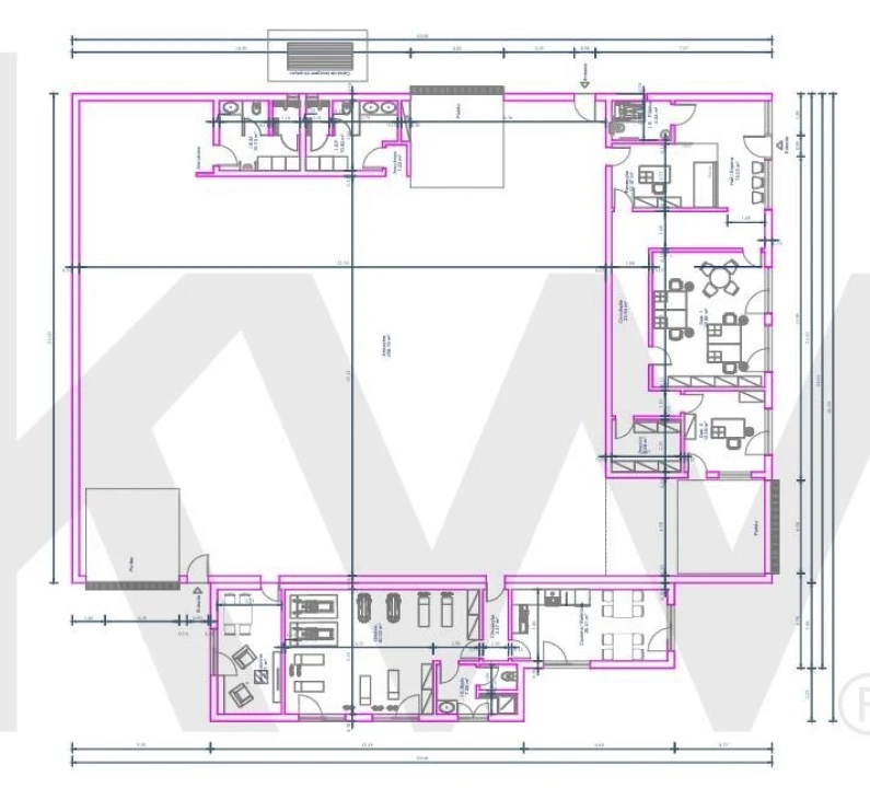
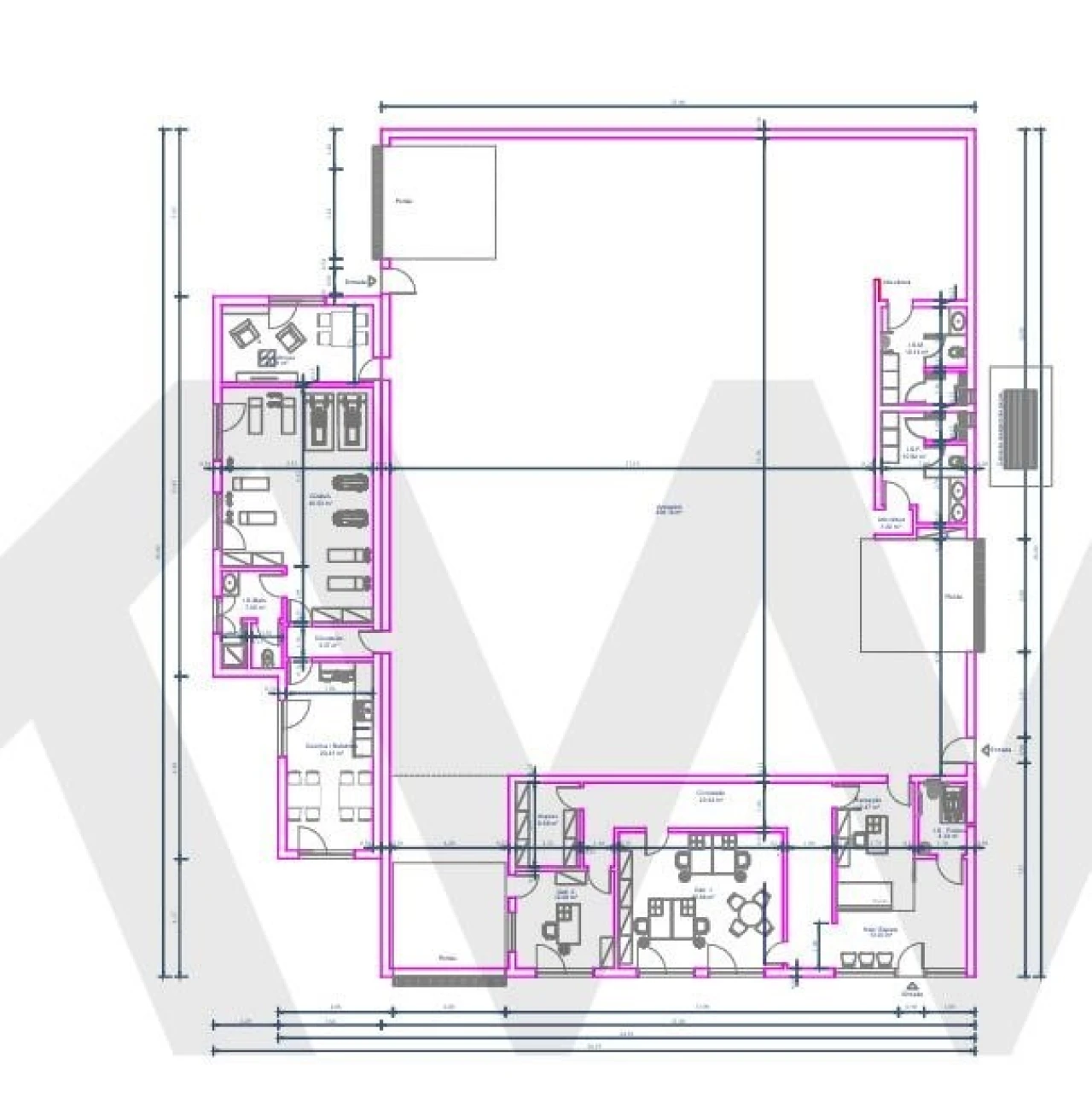
Principais características do projeto:
- Construção de edifício industrial no loteamento do Vale do Alecrim;
- Área total de implantação: 733,59 m² (629,96 m² destinados a armazém e 103,63 m² a edifício anexo);
- Área bruta de construção: 735,35 m²;
- Programa funcional: inclui armazém, receção, gabinetes, salas de convívio, ginásio, refeitório e balneários;
- Áreas permeáveis e estacionamento previsto no plano de implantação.

Estado atual do processo:
- Projeto de arquitetura e especialidades concluídos e acompanhados de caderno de quantidades e medições;
- Documentação pendente para submissão: certidão atualizada da CRP em nome do proprietário, alvará de construção e seguros, nomeação de diretores de obra e fiscalização, entre outros elementos administrativos;
- Após entrega, a Câmara Municipal dispõe de um prazo de 20 dias úteis para resposta (prorrogável até 60 dias em caso de necessidade de pareceres externos). Se não houver indeferimento, a comunicação é considerada admitida, possibilitando o início da obra após o pagamento das taxas.

Sobre a zona:
O Vale do Alecrim, no Pinhal Novo, integra-se num dos polos industriais mais dinâmicos do concelho de Palmela. A proximidade à A2, A12 e à estação ferroviária do Pinhal Novo assegura ligações rápidas tanto à margem norte como ao sul do Tejo, incluindo Lisboa, Setúbal e Montijo. A zona caracteriza-se por reunir várias empresas de diferentes setores, oferecendo um ambiente propício ao crescimento e à instalação de novos projetos empresariais.

Trata-se de uma oportunidade para quem procura instalar uma unidade industrial em Palmela, com um projeto sólido já desenvolvido e em fase adiantada de tramitação.

Quando escolhe trabalhar com a nossa Equipa obtém:
- Um serviço fornecido por uma equipa multidisciplinar;
- Agentes profissionais e conhecedores do mercado;
- Compromisso em negociar em seu interesse;
- Sistemas e ferramentas mais evoluídos no mercado;
- O apoio de uma empresa de confiança.

Conte com a nossa ajuda para aprovar o seu financiamento. Contacte-nos para mais informações.

Partilhamos com todas as imobiliárias / profissionais em regime de 50% / 50% Para mais informações, visite o nosso site KW Portugal. Na KW Portugal acreditamos na partilha como uma forma de prestar o melhor serviço ao cliente e por isso se é profissional do sector e tem um cliente comprador qualificado, contacte e agende a sua visita!

Localização

Palmela, Palmela, Setúbal

Informação do anúncio

ID do anúncio 1710226
Referência Externa KWPT-021696
Atualizado em 19/03/2026 16:46:02
KW LEAD AMI 12518
Referência do imóvel: KWPT-021696
Phone
Chamada para a rede fixa nacional
KW LEAD SANTOS
KW LEAD SANTOS
Phone
Chamada para a rede fixa nacional
KW LEAD AMI 12518
Referência do imóvel: KWPT-021696
Phone
Chamada para a rede fixa nacional
KW LEAD SANTOS
KW LEAD SANTOS
Phone
Chamada para a rede fixa nacional
1 / 17
Terreno para Venda em Palmela Foto 1
Terreno para Venda em Palmela Foto 2
Terreno para Venda em Palmela Foto 3
Terreno para Venda em Palmela Foto 4
Terreno para Venda em Palmela Foto 5
Terreno para Venda em Palmela Foto 6
Terreno para Venda em Palmela Foto 7
Terreno para Venda em Palmela Foto 8
Terreno para Venda em Palmela Foto 9
Terreno para Venda em Palmela Foto 10
Terreno para Venda em Palmela Foto 11
Terreno para Venda em Palmela Foto 12
Terreno para Venda em Palmela Foto 13
Terreno para Venda em Palmela Foto 14
Terreno para Venda em Palmela Foto 15
Terreno para Venda em Palmela Foto 16
Terreno para Venda em Palmela Foto 17
Clicky