Voltar
Moradia T4 para Venda em Campanhã Foto 1
Moradia T4 para Venda em Campanhã Foto 2
Moradia T4 para Venda em Campanhã Foto 3
Moradia T4 para Venda em Campanhã Foto 4
Moradia T4 para Venda em Campanhã Foto 5

Moradia T4 para Venda em Campanhã

630.000 €

Tipo
Moradia
Negócio
Venda
Ano de Construção
1949
Quartos
4
Casas de Banho
2
Área Bruta
190 m²
Área Útil
170 m²
Condição
Certificado Energético
C

Moradia T4 para venda

MORADIA T4+1 RENOVADA com 3 frentes, 2 varandas, garagem fechada e logradouro, em Campanhã, Porto

Localização e envolvente:

Localizado na Campanhã, Porto, em zona de habitação unifamiliar. Junto aos principais acessos à VCI.

Na envolvente existe oferta de serviços e transportes públicos (metro, comboio e autocarros).

Principais características:

- Moradia Renovada (2025)

- Tipologia T4 + quarto/escritório no piso 0

- 3 pisos

- 3 frentes (orientação nascente/sul/poente)

- suite

- logradouro

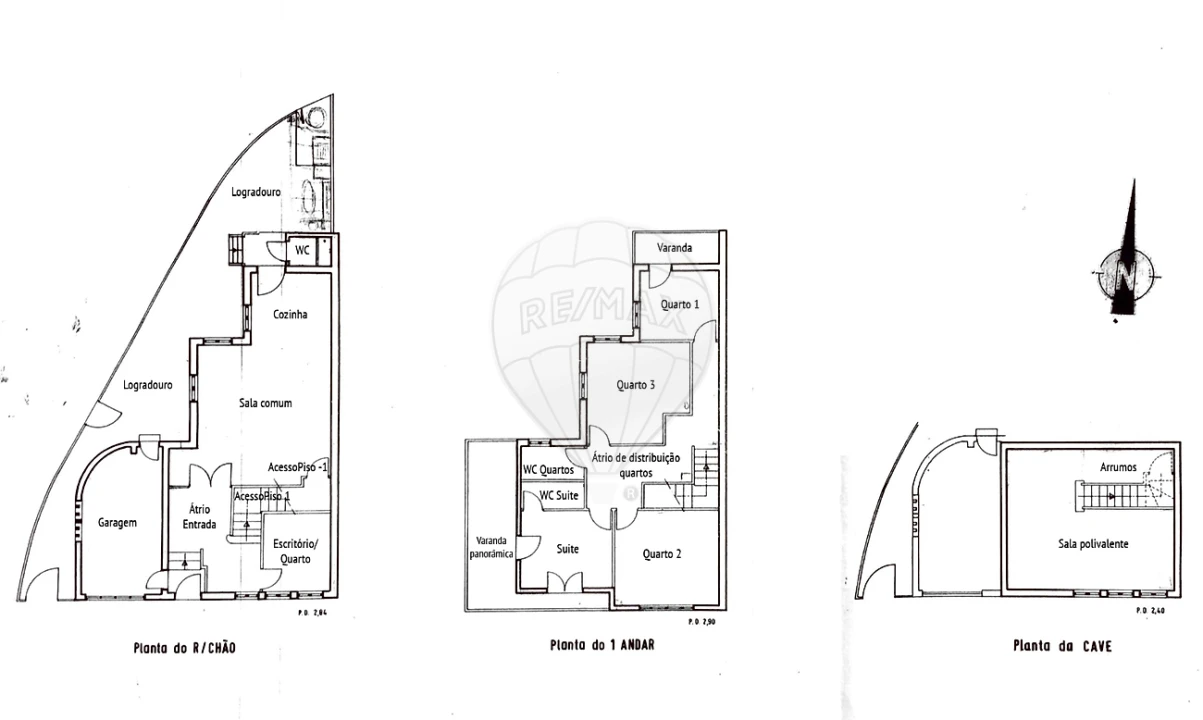
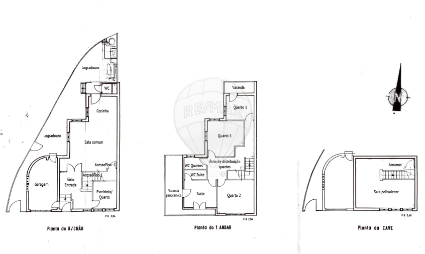
Piso 0 (zona social):

- átrio de entrada (13,80m2) com distribuição para a garagem, sala comum, escritório e escadaria de acesso ao piso 1

- sala comum em open space com a cozinha (27,00m2), equipada com placa de indução (AEG), forno (TEKA), microondas (TEKA), exaustor (BEKO), frigorífico (BOSCH) e máquina de lavar louça (BOSCH), com acesso ao logradouro

- escritório/quarto (7,50m2) com armário embutido

- escadaria de acesso ao Piso -1

- escadaria de acesso ao Piso 1

- garagem fechada (13,80m2)

- instalação sanitária de serviço com lavatório, sanita / lavandaria

Piso 1 (zona privada):

- átrio de distribuição (17,30m2) dos quartos

- quarto (8,00m2) com armário embutido e com acesso a uma varanda

- varanda

- quarto (17,00m2) com armário embutido

- quarto (15,40m2) com armário embutido

- instalação sanitária (3,20m2) de apoio aos quartos com lavatório com móvel inferior, sanita e base de duche

- suite (10,50m2) com acesso a uma varanda panorâmica e instalação sanitária (2,80m2) com lavatório com móvel inferior, sanita e base de duche

- varanda panorâmica

Piso -1:

- cave com divisão para arrumos

Outras características e valências:

- zona social e privada com pavimento vinílico

- cave com pavimento cerâmico

- instalações sanitárias com pavimento e revestimento cerâmico

- zona privada com tecto falso com focos embutidos

- todas as divisões revestidas a pladur

- cozinha com balcão em pedra natural (Granito)

- caixilharias em PVC oscilobatentes com vidro triplo

- instalação sanitária de apoio aos quartos com iluminação e ventilação natural

- cave com iluminação e ventilação natural

- bomba de calor (300L)

- garagem fechada com portão automático

- pré-instalação de ar condicionado

- estores elétricos

- instalação elétrica nova, com quadros independentes por piso

- videoporteiro

Pontos de interesse:

- a 400m do Continente

- a 850m do Shopping Parque Nascente

- a 900m do Mercadona

- a 1,1km do Mercado Abastecedor

- a 1,3km do Fitness Hut Antas

- a 1,3km do Estádio do Dragão

- a 1,4km do Shopping Alameda

- a 1,4km do Parque Urbano de Rio Tinto

- a 1,6km da Escola Nicolau Nasoni

- a 1,6km do Parque Oriental da Cidade do Porto

Transportes e acessos:

- a 50m do autocarro/bus

- a 120m da N12 (Estrada da Circunvalação)

- a 850m do metro (Estação Contumil)

- a 1,1km do acesso à A20/VCI

- a 1,6km do acesso à A43

- a 1,6m do metro (Estação Nasoni)

- a 2,3km do comboio (Estação Contumil)

- a 2,6km do acesso à A3

- a 2,9km do metro (Estação Campanhã)

- a 3,1km do comboio (Estação Campanhã)

- a 4,1km da Ponte do Freixo

- a 4,8km da N14 (Via Norte)

- a 6,7km do acesso à A28

- a 15,6km do Aeroporto Francisco Sá Carneiro

Áreas (de acordo com a Caderneta Predial Urbana):

- Área total do terreno: 115,0000 m²

- Área de implantação do edifício: 90,0000 m²

- Área bruta de construção: 190,0000 m²

- Área bruta dependente: 20,0000 m²

- Área bruta privativa: 170,0000 m²

Outros valores:

- Valor do Condomínio: não se aplica

- Valor do IMI: aprox. 210,60€ (anual)

Nota: para maior facilidade na identificação deste imóvel, por favor, refira o respectivo ID. Em caso de agendamento de visita, faça-se acompanhar de um documento de identificação. Muito obrigado!

***

;ID RE/MAX: 126401038-270

Localização

Campanhã, Porto, Porto

Informação do anúncio

ID do anúncio 1739048
Referência Externa 126401038-270
Atualizado em 04/04/2026 13:53:05
Collection Vantagem Oporto AMI 7772
Referência do imóvel: 126401038-270
Phone
Chamada para a rede fixa nacional
Collection Vantagem Oporto AMI 7772
Referência do imóvel: 126401038-270
Phone
Chamada para a rede fixa nacional
1 / 37
Moradia T4 para Venda em Campanhã Foto 1
Moradia T4 para Venda em Campanhã Foto 2
Moradia T4 para Venda em Campanhã Foto 3
Moradia T4 para Venda em Campanhã Foto 4
Moradia T4 para Venda em Campanhã Foto 5
Moradia T4 para Venda em Campanhã Foto 6
Moradia T4 para Venda em Campanhã Foto 7
Moradia T4 para Venda em Campanhã Foto 8
Moradia T4 para Venda em Campanhã Foto 9
Moradia T4 para Venda em Campanhã Foto 10
Moradia T4 para Venda em Campanhã Foto 11
Moradia T4 para Venda em Campanhã Foto 12
Moradia T4 para Venda em Campanhã Foto 13
Moradia T4 para Venda em Campanhã Foto 14
Moradia T4 para Venda em Campanhã Foto 15
Moradia T4 para Venda em Campanhã Foto 16
Moradia T4 para Venda em Campanhã Foto 17
Moradia T4 para Venda em Campanhã Foto 18
Moradia T4 para Venda em Campanhã Foto 19
Moradia T4 para Venda em Campanhã Foto 20
Moradia T4 para Venda em Campanhã Foto 21
Moradia T4 para Venda em Campanhã Foto 22
Moradia T4 para Venda em Campanhã Foto 23
Moradia T4 para Venda em Campanhã Foto 24
Moradia T4 para Venda em Campanhã Foto 25
Moradia T4 para Venda em Campanhã Foto 26
Moradia T4 para Venda em Campanhã Foto 27
Moradia T4 para Venda em Campanhã Foto 28
Moradia T4 para Venda em Campanhã Foto 29
Moradia T4 para Venda em Campanhã Foto 30
Moradia T4 para Venda em Campanhã Foto 31
Moradia T4 para Venda em Campanhã Foto 32
Moradia T4 para Venda em Campanhã Foto 33
Moradia T4 para Venda em Campanhã Foto 34
Moradia T4 para Venda em Campanhã Foto 35
Moradia T4 para Venda em Campanhã Foto 36
Moradia T4 para Venda em Campanhã Foto 37
Clicky