Apartamento T3 para Venda em Silveira
415.000 €
Tipo
Apartamento
Negócio
Venda
Ano de Construção
2009
Quartos
3
Casas de Banho
2
Área Útil
212 m²
Certificado Energético
B-
Apartamento T3 em Silveira de 212,00 m²
Apartamento Duplex T3 Renovado com Vista Mar – Santa Cruz, Torres Vedras
Área bruta de construção : 212 m²
Área útil: 168 m²
Tipologia: T3 Duplex
Andar: 2.º (sem elevador)
Localização: Santa Cruz – Torres Vedras
A apenas 500 m da praia | Condomínio fechado com piscinas
________________________________________
✅ Destaques:
•Vista mar incrível
•3 quartos | 2 salas | 3 casas de banho
•Condomínio com 2 piscinas, parque infantil e jardins
•2 lugares de estacionamento em garagem fechada
•2 varandas (uma com vista mar)
•Zona calma, próxima de escolas, comércios e praia
________________________________________
Distribuição:
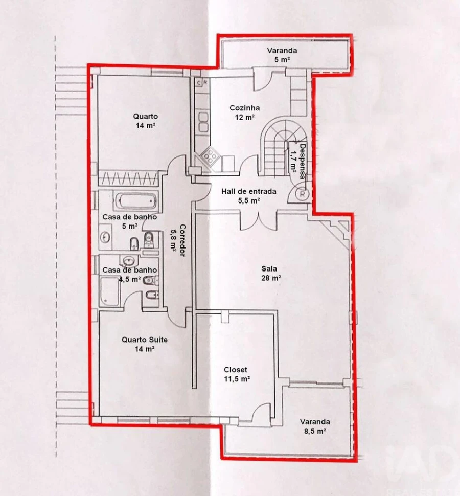
1.º Piso:
•Sala com varanda e vista mar
•Cozinha equipada
•Suíte com varanda, vista mar e casa de banho com duche
•Quarto com roupeiro embutido
•Casa de banho com banheira e máquina de lavar roupa
•Despensa
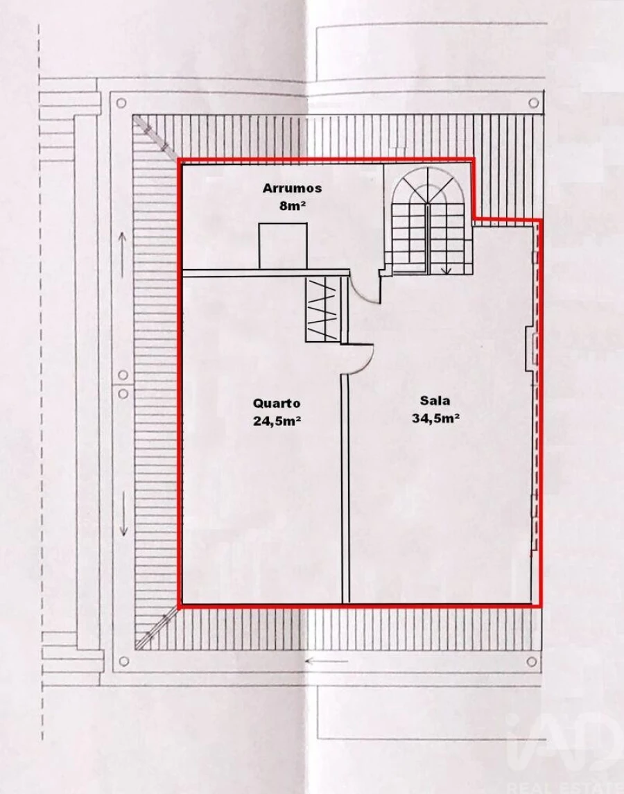
2.º Piso:
•Sala ampla
•Quarto com roupeiro embutido
•Arrecadação
________________________________________
️ Equipamentos:
•Janelas PVC com vidros duplos Schüco A+
•Lareira com ventilação
•Estores elétricos
•Porta blindada
•Vídeo porteiro Golmar com monitor de 7"
•Pré-instalação de aquecimento central
•2 lugares de garagem fechada
•Arrecadação
•Sala comum para eventos
•Ampla piscina (10m x 25 m)
________________________________________
Localização privilegiada:
•A 1 km do centro de Santa Cruz
•A 1,5 km do Externato de Penafirme
•A 13 km de Torres Vedras
•A 60 km do Aeroporto Internacional de Lisboa
•A poucos passos das praias e serviços
________________________________________
✨ Venha descobrir este apartamento único com excelente luminosidade e vista deslumbrante sobre o mar!
Referência IAD Portugal: 119708
Consultor : Cyril Tercier – AMI 11220
✆ +351 915 307 575
#ref: 119708
Área bruta de construção : 212 m²
Área útil: 168 m²
Tipologia: T3 Duplex
Andar: 2.º (sem elevador)
Localização: Santa Cruz – Torres Vedras
A apenas 500 m da praia | Condomínio fechado com piscinas
________________________________________
✅ Destaques:
•Vista mar incrível
•3 quartos | 2 salas | 3 casas de banho
•Condomínio com 2 piscinas, parque infantil e jardins
•2 lugares de estacionamento em garagem fechada
•2 varandas (uma com vista mar)
•Zona calma, próxima de escolas, comércios e praia
________________________________________
Distribuição:
1.º Piso:
•Sala com varanda e vista mar
•Cozinha equipada
•Suíte com varanda, vista mar e casa de banho com duche
•Quarto com roupeiro embutido
•Casa de banho com banheira e máquina de lavar roupa
•Despensa
2.º Piso:
•Sala ampla
•Quarto com roupeiro embutido
•Arrecadação
________________________________________
️ Equipamentos:
•Janelas PVC com vidros duplos Schüco A+
•Lareira com ventilação
•Estores elétricos
•Porta blindada
•Vídeo porteiro Golmar com monitor de 7"
•Pré-instalação de aquecimento central
•2 lugares de garagem fechada
•Arrecadação
•Sala comum para eventos
•Ampla piscina (10m x 25 m)
________________________________________
Localização privilegiada:
•A 1 km do centro de Santa Cruz
•A 1,5 km do Externato de Penafirme
•A 13 km de Torres Vedras
•A 60 km do Aeroporto Internacional de Lisboa
•A poucos passos das praias e serviços
________________________________________
✨ Venha descobrir este apartamento único com excelente luminosidade e vista deslumbrante sobre o mar!
Referência IAD Portugal: 119708
Consultor : Cyril Tercier – AMI 11220
✆ +351 915 307 575
#ref: 119708
Localização
Silveira, Torres Vedras, Lisboa
Informação do anúncio
ID do anúncio
715910
Referência Externa
119708
Atualizado em
03/05/2026 23:20:04
Apartamento T3 para Venda em Silveira
Vídeo