Terreno para Venda em Amarante (São Gonçalo), Madalena, Cepelos e Gatão
50.000 €
Tipo
Terreno
Negócio
Venda
Condição
Usado
Área do Terreno
750 m²
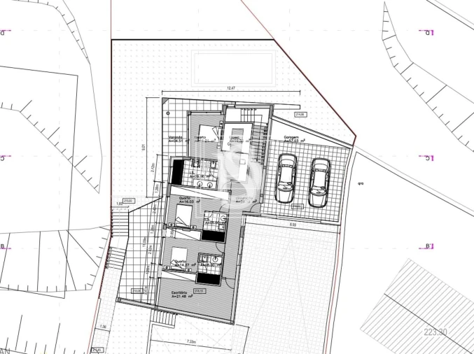
TERRENO PARA CONSTRUÇÃO - CEPELOS
Terreno com 750m² em Cepelos, esta zona é bastante valorizada em termos habitacionais, pela proximidade ao centro da cidade.
Atualmente com projeto aprovado para uma moradia que se desenvolve em dois pisos, -1 e 0.
Este terreno tem um excelente enquadramento sobre parte da cidade, está munido de boas acessibilidades e infra-estruturas.
A 45 minutos do Porto;
A 25 minutos de Baião;
A 25 minutos de Vila Real;
ABRIMOS PORTAS AO SEU FUTURO!
Decisões & Variáveis - Mediação Imobiliária, Lda | Lic. AMI 9581
Localização
Amarante (São Gonçalo), Madalena, Cepelos e Gatão, Amarante, Porto
Este site utiliza cookies. Ao navegar no site estará a consentir a sua utilização. Para mais informações sobre os cookies pode consultar a
política de privacidade.