Andar de Moradia T2 em construção na Gafanha da Nazaré!
Andar de Moradia T2 em construção na Gafanha da Nazaré!
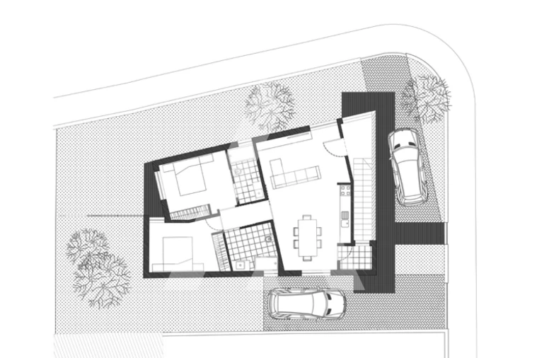
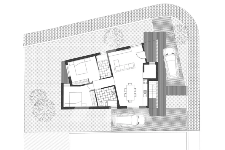
Ao entrar, é imediatamente notável a sensação de espaço e luminosidade que permeia todos os ambientes. O design open space da sala e da cozinha, totalmente equipada, cria um ambiente perfeito para receber amigos e familiares. A sala, ampla e bem iluminada, é o lugar ideal para momentos de lazer e relaxamento. Tem ainda um espaço direcionado para uma lavandaria.
O quarto principal é uma suíte, que inclui uma casa de banho privativa e acesso ao espaço exterior. O segundo quarto, igualmente espaçoso e bem iluminado, oferece um ambiente acolhedor e sereno. Há uma segunda casa de banho moderna que serve o restante piso, garantindo conforto e funcionalidade para todos os residentes.
No exterior, a moradia oferece ainda mais possibilidades para desfrutar do ar livre. Há uma área de estacionamento e uma zona de jardim ou pequena horta, onde poderá cultivar plantas, flores ou até mesmo vegetais, promovendo uma ligação especial com a natureza e proporcionando um espaço adicional para atividades ao ar livre e convivência.
Composto por:
- Sala e cozinha em open space;
- Um quarto com roupeiro embutido;
- Uma suíte com varanda;
- Casa de banho completa;
- Lavandaria;
- Estacionamento privativo;
- Espaço exterior.
O equilíbrio perfeito entre a vida urbana e a tranquilidade de um lugar mais calmo. Localizado na pitoresca Gafanha da Nazaré, próxima de Aveiro e das praias, esta residência é ideal para quem procura um estilo de vida harmonioso.
Este site utiliza cookies. Ao navegar no site estará a consentir a sua utilização. Para mais informações sobre os cookies pode consultar a
política de privacidade.