Terreno para Venda em Monsul Foto 1
Terreno para Venda em Monsul Foto 2
Terreno para Venda em Monsul Foto 3
Terreno para Venda em Monsul Foto 4
Terreno para Venda em Monsul Foto 5

Terreno para Venda em Monsul

84.000 €

Tipo
Terreno
Negócio
Venda
Ano de Construção
2024
Certificado Energético
N/A
Área do Terreno
1390 m²

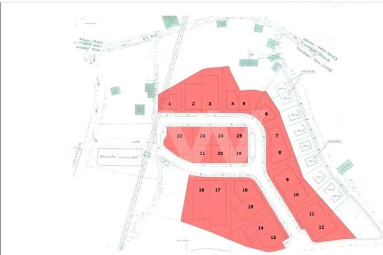
Lote de Terreno Industrial

Lotes industriais situados numa zona estratégica, formando o Parque Industria de Monsul, apoiando de forma central, Amares, Braga, Póvoa de Lanhoso e Águas Santas, através da Estrada Nacional 205.
Inserido em zona com excelentes acessos e visibilidade, com um potencial de negócios fantástico, onde poderá iniciar ou consolidar a sua empresa e elevá-la a um patamar superior.
Este lote faz parte de um conjunto de 25, dos quais se encontram disponíveis ainda 15.
Antecipe-se, invista num produto com elevada rentabilidade e futuro garantido.

Localização

Monsul, Póvoa de Lanhoso, Braga

Informação do anúncio

ID do anúncio 1427590
Referência Externa 1214-2179
Atualizado em 04/05/2026 00:04:00
KW Alfa Lisboa AMI 18161
Referência do imóvel: 1214-2179
Phone
Chamada para a rede fixa nacional
KW Pro Campo Pequeno
KW Pro Campo Pequeno
Phone
Chamada para a rede fixa nacional
KW Alfa Lisboa AMI 18161
Referência do imóvel: 1214-2179
Phone
Chamada para a rede fixa nacional
KW Pro Campo Pequeno
KW Pro Campo Pequeno
Phone
Chamada para a rede fixa nacional
1 / 9
Terreno para Venda em Monsul Foto 1
Terreno para Venda em Monsul Foto 2
Terreno para Venda em Monsul Foto 3
Terreno para Venda em Monsul Foto 4
Terreno para Venda em Monsul Foto 5
Terreno para Venda em Monsul Foto 6
Terreno para Venda em Monsul Foto 7
Terreno para Venda em Monsul Foto 8
Terreno para Venda em Monsul Foto 9
Clicky